VI
High Ash Drive, Leeds, West Yorkshire, LS17
By Virtue Estate Agents
£ 699,999
Reviews
3 out of 5 stars
Virtue Estate Agents says ..
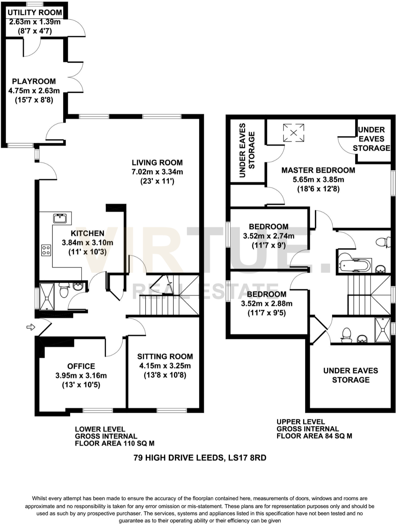
Virtue Real Estate have been exclusively instructed to offer for sale this chain free, five bedroom detached bungalow in a highly sought after area of LS17.
Property Oracle says ..
Therefore, we give this property 7 / 10. *Disclaimer: This is our option and does constitute a recommendation or financial advice. Do your own research. *
- Price
- 6
- Condition
- 9
- Location
- 8
- Land
- 7
- Bedrooms
- 5
- Bathrooms
- 3
- Sqft (est)
- 1,281.03
The heatmap indicates the level of crime in the area. The color of the heatmap indicates the crime severity and recency.
Metrics Year-on-Year
- Average area value
- 489,764.00 £Increased by 13.96 %
- Est sale value
- 513,693.03 £Increased by 17.60 %
- Average area rental value
- 1,313.00 £/moDecreased by 4.72 %
- Est letting value
- 1,281.03 £/moUnchanged by 0.00 %
- Est rental Yield
- 3.22 %Decreased by 16.36 %
- Crime Rate
- 2.00 %Unchanged by 0.00 %
from 429,756.00 £
from 436,831.23 £
from 1,378.00 £/mo
from 1,281.03 £/mo
from 3.85 %
from 2.00 %
Agent Activity
Virtue Estate Agents marked this listing as sold.
Virtue Estate Agents created the listing.
Nearby Schools
| Name | Type | Ofsted | Distance |
|---|---|---|---|
| Wigton Moor Primary School | Community School | Outstanding | 0.42 KM |
| Highfield Primary School | Community School | Outstanding | 0.82 KM |
| The Grammar School At Leeds | Other Independent School | 0.89 KM | |
| Talbot Primary School | Community School | Good | 1.62 KM |
| Leeds Menorah School | Other Independent School | Inadequate | 1.75 KM |
Images
Nearby Streets
| Name | Average Price | Average Sqft | Distance |
|---|---|---|---|
| West Dene | £ 795,000 | 0 | 0.00 KM |
| Brookside | £ 375,000 | 0 | 0.00 KM |
| Alwoodley Chase | £ 325,000 | 0 | 0.00 KM |
| Farfield Court | £ 235,441 | 0 | 0.00 KM |
| A61 | £ 650,000 | 0 | 0.00 KM |
Nearby Transport
| Name | NLC | TLC | Distance |
|---|---|---|---|
| Leeds | 8487 | LDS | 7.40 KM |
| Burley Park | 8500 | BUY | 8.01 KM |
| Headingley | 8498 | HDY | 9.18 KM |
| Cross Gates | 8473 | CRG | 9.54 KM |
Nearby Listings
| Address | Price | Type | Score | Distance |
|---|---|---|---|---|
| High Ash Drive, Leeds, West Yorkshire, LS17 | £ 699,999 | BUY | 7 / 10 | 0.00 KM |
| High Ash Drive, Alwoodley, LS17 | £ 350,000 | BUY | 7 / 10 | 0.03 KM |
| High Ash Drive, Leeds | £ 175,000 | BUY | Unknown | 0.07 KM |
| Linton Crescent, Alwoodley, Leeds | £ 465,000 | BUY | Unknown | 0.15 KM |
| High Ash Crescent, Alwoodley | £ 499,950 | BUY | 7 / 10 | 0.16 KM |
Nearby Properties
| Address | Price | Distance |
|---|---|---|
| 67 High Ash Drive | £ 220,000 | 0.02 KM |
| 83 High Ash Drive | £ 275,000 | 0.02 KM |
| 107 High Ash Drive | £ 249,999 | 0.02 KM |
| 91 High Ash Drive | £ 255,000 | 0.02 KM |
| 85 High Ash Drive | £ 405,000 | 0.02 KM |