TA
Pine Green, Old Park Farm, Dudley
By Taylors Estate Agents
£ 249,950
Reviews
3 out of 5 stars
Taylors Estate Agents says ..
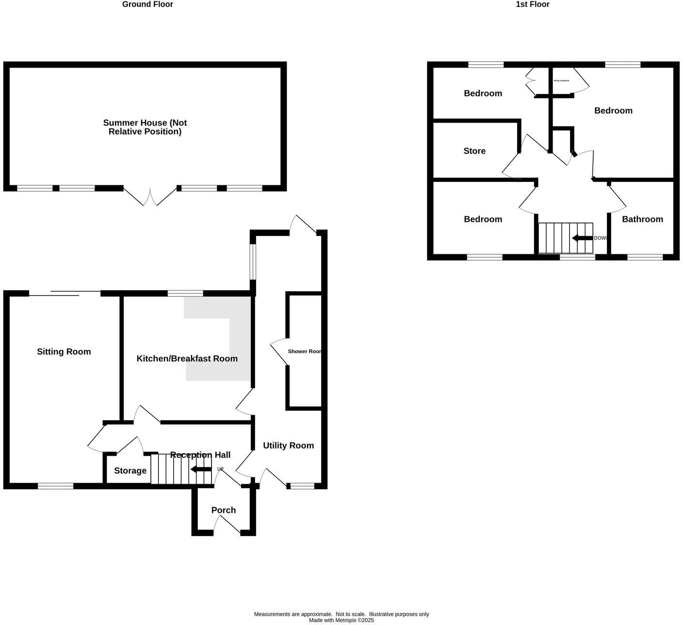
MODERNISED THROUGHOUT SEMI DETACHED HOME, offering DECEPTIVELY SPACIOUS living on the popular ’Greens’ neighbourhood in Dudley. Being gas centrally heated & double glazed, this EXTENDED home briefly comprises; hallway, lounge, fitted kitchen, utility room with shower r...
Property Oracle says ..
Therefore, we give this property 7 / 10. *Disclaimer: This is our option and does constitute a recommendation or financial advice. Do your own research. *
- Price
- 6
- Condition
- 8
- Location
- 7
- Land
- 7
- Bedrooms
- 3
- Bathrooms
- 1
- Sqft (est)
- 1,128.00
The heatmap indicates the level of crime in the area. The color of the heatmap indicates the crime severity and recency.
Metrics Year-on-Year
- Average area value
- 251,238.00 £Increased by 11.09 %
- Est sale value
- 296,664.00 £Increased by 20.64 %
- Average area rental value
- 1,036.00 £/moIncreased by 11.76 %
- Est letting value
- 1,128.00 £/mo
- Est rental Yield
- 4.95 %Increased by 0.61 %
- Crime Rate
- 5.00 %Unchanged by 0.00 %
from 226,159.00 £
from 245,904.00 £
from 927.00 £/mo
from 0.00 £/mo
from 4.92 %
from 5.00 %
Agent Activity
Taylors Estate Agents created the listing.
Nearby Schools
| Name | Type | Ofsted | Distance |
|---|---|---|---|
| Bramford Primary School | Academy Sponsor Led | Good | 0.53 KM |
| Sycamore Short Stay School | Pupil Referral Unit | Good | 0.62 KM |
| Wrens Nest Primary School | Community School | Good | 0.70 KM |
| Wrens Nest Children'S Centre | Children's Centre | 0.85 KM | |
| The Wenlock School | Other Independent Special School | Good | 0.90 KM |
Images
Nearby Streets
| Name | Average Price | Average Sqft | Distance |
|---|---|---|---|
| Pool Street | £ 0 | 0 | 0.00 KM |
| Griffiths Road | £ 0 | 0 | 0.00 KM |
| Broom Road | £ 0 | 0 | 0.00 KM |
| Stanton Avenue | £ 0 | 0 | 0.00 KM |
| Tamar Drive | £ 0 | 0 | 0.00 KM |
Nearby Transport
| Name | NLC | TLC | Distance |
|---|---|---|---|
| Coseley | 1143 | CSY | 2.30 KM |
| Tipton | 1159 | TIP | 3.83 KM |
| Dudley Port | 1212 | DDP | 5.66 KM |
| Wolverhampton | 1218 | WVH | 6.74 KM |
| Cradley Heath | 4639 | CRA | 6.83 KM |
Nearby Listings
| Address | Price | Type | Score | Distance |
|---|---|---|---|---|
| Pine Green, Old Park Farm, Dudley | £ 249,950 | BUY | 7 / 10 | 0.00 KM |
| Pine Green, Dudley, DY1 | £ 139,000 | BUY | 6 / 10 | 0.10 KM |
| Pine Green, Dudley, West Midlands | £ 190,000 | BUY | 5 / 10 | 0.10 KM |
| Poplar Green, Dudley, DY1 | £ 195,000 | BUY | 6 / 10 | 0.17 KM |
| Turley Street, Dudley | £ 290,000 | BUY | 7 / 10 | 0.17 KM |
Nearby Properties
| Address | Price | Distance |
|---|---|---|
| 2 Pine Green | £ 105,000 | 0.02 KM |
| 9 Pine Green | £ 84,000 | 0.02 KM |
| 10 Pine Green | £ 107,000 | 0.02 KM |
| 4 Pine Green | £ 121,000 | 0.02 KM |
| 22 Pine Green | £ 113,000 | 0.10 KM |