TR
Kimberley Avenue, London, SE15
By Truepenny's Property Consultants
£ 375,000
Reviews
3 out of 5 stars
Truepenny's Property Consultants says ..
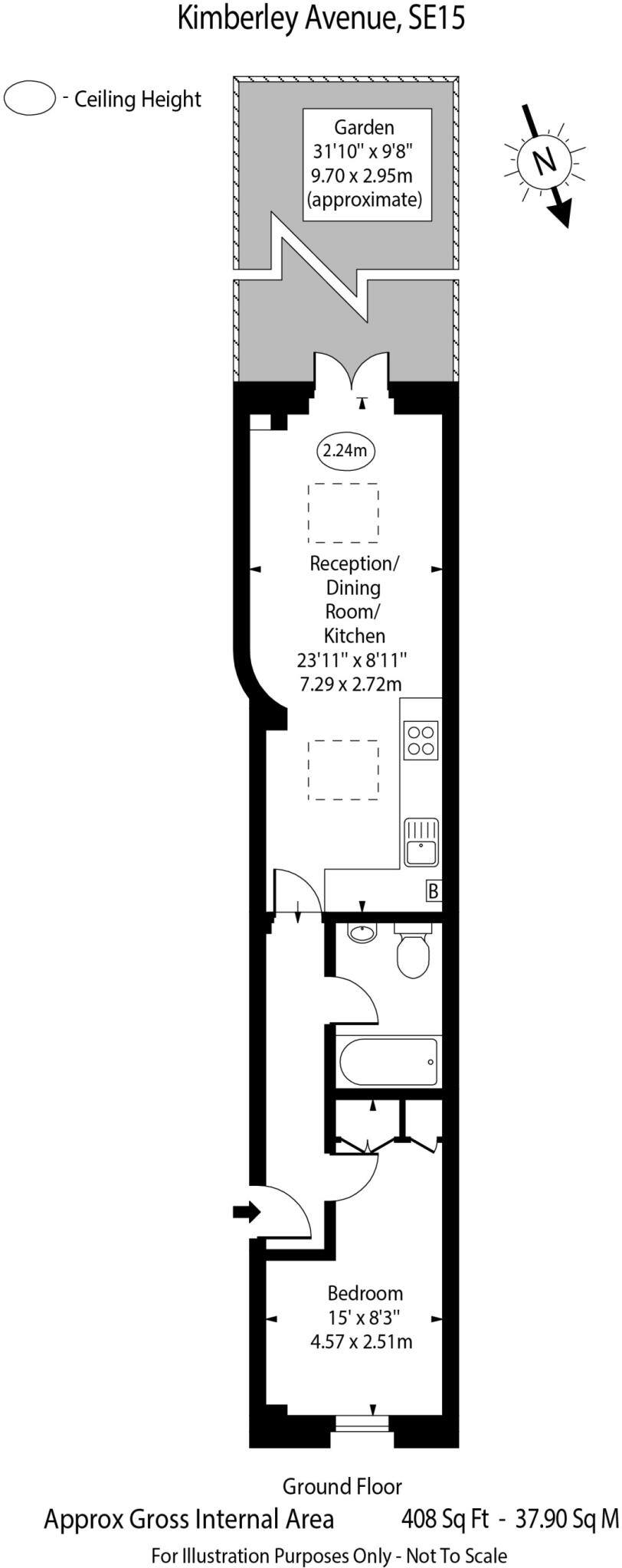
One-Bedroom Garden Flat – Kimberley Avenue, SE15 – Chain Free
Property Oracle says ..
Therefore, we give this property 6 / 10. *Disclaimer: This is our option and does constitute a recommendation or financial advice. Do your own research. *
- Price
- 5
- Condition
- 7
- Location
- 7
- Land
- 6
- Bedrooms
- 1
- Bathrooms
- 1
- Sqft (est)
- 407.95
The heatmap indicates the level of crime in the area. The color of the heatmap indicates the crime severity and recency.
Metrics Year-on-Year
- Average area value
- 759,842.00 £Increased by 24.51 %
- Est sale value
- 338,190.55 £Increased by 23.55 %
- Average area rental value
- 2,535.00 £/moDecreased by 1.90 %
- Est letting value
- 815.90 £/moUnchanged by 0.00 %
- Est rental Yield
- 4.00 %Decreased by 21.26 %
- Crime Rate
- 6.00 %Unchanged by 0.00 %
from 610,284.00 £
from 273,734.45 £
from 2,584.00 £/mo
from 815.90 £/mo
from 5.08 %
from 6.00 %
Agent Activity
Truepenny's Property Consultants created the listing.
Nearby Schools
| Name | Type | Ofsted | Distance |
|---|---|---|---|
| Hollydale Primary School | Community School | Good | 0.30 KM |
| The St Thomas The Apostle College | Voluntary Aided School | Outstanding | 0.51 KM |
| Edmund Waller Primary School | Community School | Good | 0.85 KM |
| St Mary Magdalene Church Of England Primary School | Voluntary Aided School | Good | 0.91 KM |
| Rye Oak Primary School | Community School | Good | 0.93 KM |
Images
Nearby Streets
| Name | Average Price | Average Sqft | Distance |
|---|---|---|---|
| Grimwade Close | £ 900,000 | 0 | 0.00 KM |
| Gibbon Road | £ 0 | 0 | 0.00 KM |
| Beacon Gate | £ 0 | 0 | 0.00 KM |
| Bonita Mews | £ 0 | 0 | 0.00 KM |
| Nazareth Gardens | £ 900,000 | 0 | 0.00 KM |
Nearby Transport
| Name | NLC | TLC | Distance |
|---|---|---|---|
| Nunhead | 5068 | NHD | 0.30 KM |
| Queens Road Peckham | 5424 | QRP | 0.84 KM |
| Peckham Rye | 5423 | PMR | 1.65 KM |
| New Cross Gate | 5345 | NXG | 1.88 KM |
| Brockley | 5404 | BCY | 1.93 KM |
Nearby Listings
| Address | Price | Type | Score | Distance |
|---|---|---|---|---|
| Kimberley Avenue, London, SE15 | £ 500,000 | BUY | 6 / 10 | 0.00 KM |
| Kimberley Avenue, London, SE15 | £ 375,000 | BUY | 6 / 10 | 0.00 KM |
| Kimberley Avenue, London, SE15 | £ 400,000 | BUY | 6 / 10 | 0.00 KM |
| Kimberley Avenue, London | £ 375,000 | BUY | Unknown | 0.01 KM |
| Kimberley Avenue, London | £ 500,000 | BUY | 6 / 10 | 0.01 KM |
Nearby Properties
| Address | Price | Distance |
|---|---|---|
| 64 Kimberley Avenue | £ 433,500 | 0.01 KM |
| 74a Kimberley Avenue | £ 280,000 | 0.01 KM |
| 96 Kimberley Avenue | £ 215,000 | 0.01 KM |
| 102 Kimberley Avenue | £ 540,000 | 0.01 KM |
| 72b Kimberley Avenue | £ 143,000 | 0.01 KM |