The Sycamore, Church Mead, Gee Cross
By On the Move Property Boutique
£ 415,000
Reviews
4 out of 5 stars
On the Move Property Boutique says ..
Jardine Estates are delighted to present Church Mead - A collection of three and four-bedroom homes located in the heart Of Gee Cross village.
Property Oracle says ..
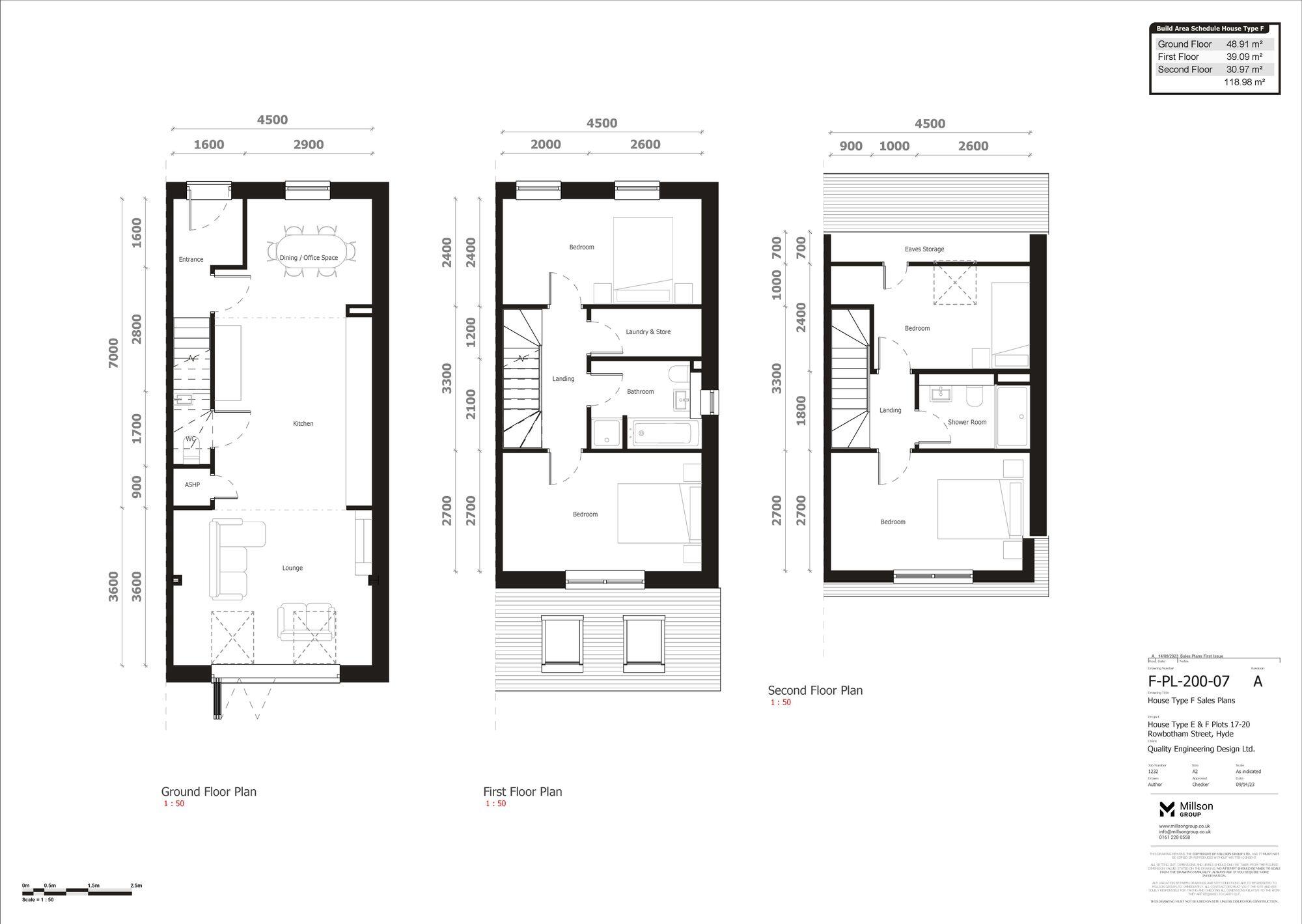
The property is located in Gee Cross, Hyde, Tameside. It is a terraced house with 4 bedrooms and 3 bathrooms, and a plot size of 1,280.69 sqft. The property is newly built and appears to be in excellent condition based on the provided images. The list price is £415,000, which is significantly higher than the average house price in the area (£314,511). However, it is important to note that the average house size in the area is smaller (1,091 sqft) than this property (2,191.28 sqft). The property benefits from being close to several primary and secondary schools, all rated as “Good” by Ofsted. Train stations are also within a reasonable distance. Considering the size, condition, and location, the asking price may be justified, although a detailed comparison with similar properties in the area would be beneficial to confirm.
Therefore, we give this property 8 / 10. *Disclaimer: This is our option and does constitute a recommendation or financial advice. Do your own research. *
- Price
- 7
- Condition
- 10
- Location
- 8
- Land
- 7
- Bedrooms
- 4
- Bathrooms
- 3
- Sqft (est)
- 2,191.28
- Lot (est)
- 1,280.69
The heatmap indicates the level of crime in the area. The color of the heatmap indicates the crime severity and recency.
Metrics Year-on-Year
- Average area value
- 349,167.00 £Increased by 12.91 %
- Est sale value
- 907,189.92 £Increased by 40.82 %
- Average area rental value
- 1,000.00 £/moDecreased by 13.49 %
- Est letting value
- 2,191.28 £/moUnchanged by 0.00 %
- Est rental Yield
- 3.44 %Decreased by 23.39 %
- Crime Rate
- 0.00 %
Agent Activity
On the Move Property Boutique created the listing.
Nearby Schools
| Name | Type | Ofsted | Distance |
|---|---|---|---|
| Dowson Primary Academy | Academy Converter | Good | 0.42 KM |
| Gee Cross Holy Trinity Cofe (Vc) Primary School | Voluntary Controlled School | Good | 0.46 KM |
| Alder Community High School | Community School | Good | 1.04 KM |
| Greenfield Primary Academy | Academy Sponsor Led | 1.04 KM | |
| Endeavour Primary Academy | Academy Converter | 1.19 KM |
Images
Nearby Streets
| Name | Average Price | Average Sqft | Distance |
|---|---|---|---|
| Queens Close | £ 210,000 | 0 | 0.00 KM |
| Hill Street | £ 0 | 0 | 0.00 KM |
| Nether Street | £ 0 | 0 | 0.00 KM |
| Queens Drive | £ 0 | 0 | 0.00 KM |
| Enfield Street | £ 0 | 0 | 0.00 KM |
Nearby Transport
| Name | NLC | TLC | Distance |
|---|---|---|---|
| Newton For Hyde | 2789 | NWN | 2.01 KM |
| Godley | 2948 | GDL | 2.23 KM |
| Hyde Central | 2829 | HYC | 2.25 KM |
| Woodley | 2835 | WLY | 2.77 KM |
| Flowery Field | 2786 | FLF | 2.87 KM |
Nearby Listings
| Address | Price | Type | Score | Distance |
|---|---|---|---|---|
| The Birch, Church Mead, Gee Cross | £ 420,000 | BUY | 8 / 10 | 0.00 KM |
| The Sycamore, Church Mead, Gee Cross | £ 415,000 | BUY | 8 / 10 | 0.00 KM |
| Church Mead, Gee Cross, SK14 | £ 425,000 | BUY | Unknown | 0.00 KM |
| The Willow, Church Mead, Gee Cross | £ 485,000 | BUY | 8 / 10 | 0.00 KM |
| Acorn Avenue, Gee Cross | £ 225,000 | BUY | 7 / 10 | 0.04 KM |
Nearby Properties
| Address | Price | Distance |
|---|---|---|
| 264 Stockport Road | £ 180,000 | 0.07 KM |
| 205 Stockport Road | £ 115,000 | 0.07 KM |
| 246a Stockport Road | £ 90,000 | 0.07 KM |
| 267 Stockport Road | £ 127,950 | 0.07 KM |
| 249 Stockport Road | £ 100,000 | 0.07 KM |