Burton,
WE

Burton,

By West Wales Properties

£ 280,000

Reviews

3 out of 5 stars

West Wales Properties says ..

Welcome to Rose Cottage....A charming two bedroom semi-detached cottage nestled in the heart of the picturesque estuary village of Burton. Steeped in history, parts of this delightful property date back to the early 1900s, offering a blend of traditional character and modern comforts. Retaining s...

Property Oracle says ..

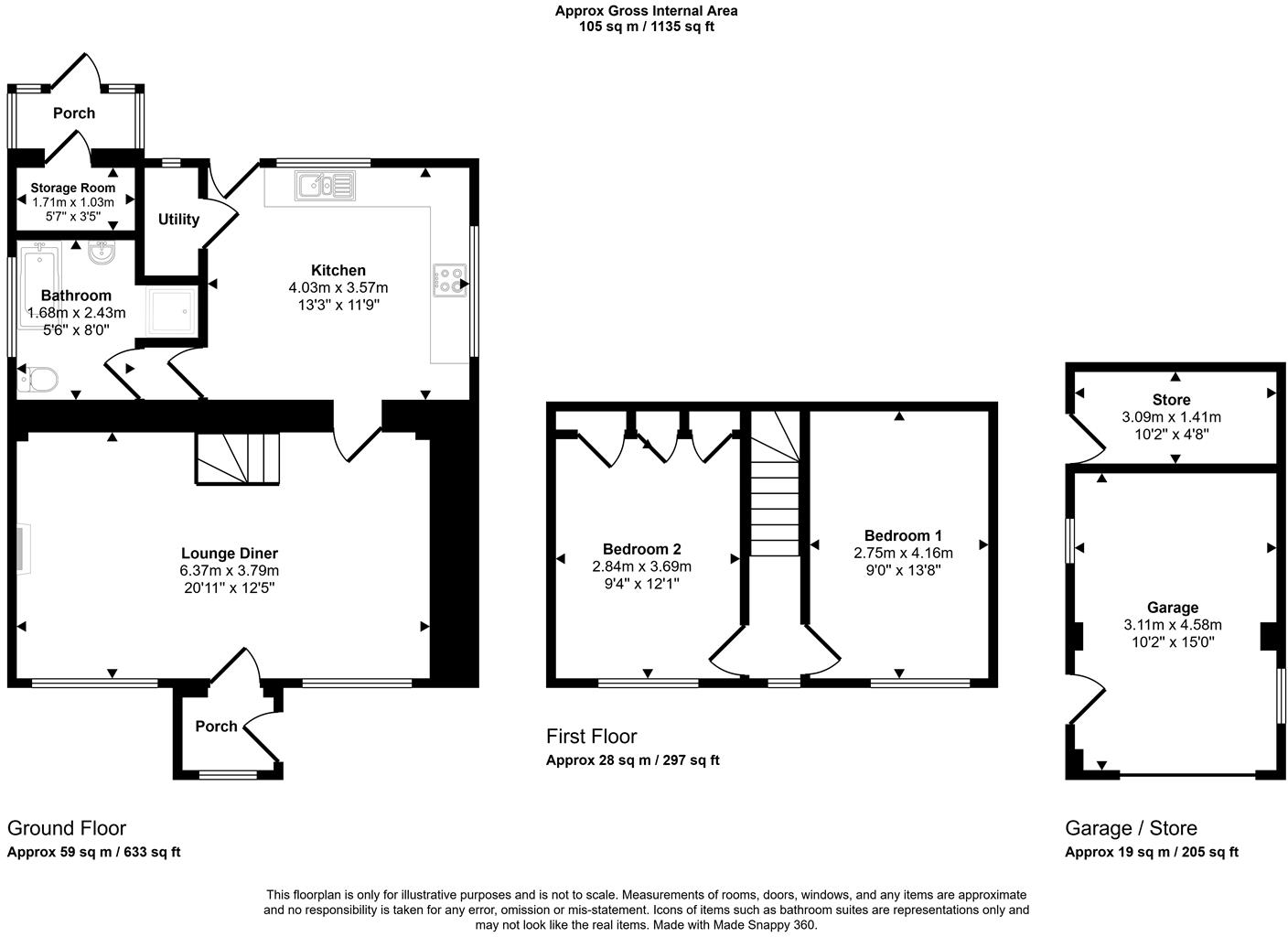
This property is a 2 bedroom cottage located in Burton, Pembrokeshire. It benefits from a garden and is within a reasonable distance of local schools and transport links. The property is well presented and appears to be in good condition. The asking price of £280,000 is slightly above the average price for the area but given its condition and the size of the garden, it could be considered reasonable value for money.

Therefore, we give this property 7 / 10. *Disclaimer: This is our option and does constitute a recommendation or financial advice. Do your own research. *

Price
7
Condition
8
Location
7
Land
7
Bedrooms
2
Bathrooms
1
Sqft (est)
1,130.21

The heatmap indicates the level of crime in the area. The color of the heatmap indicates the crime severity and recency.

Metrics Year-on-Year

Average area value
160,167.00 £
Decreased by 35.09 %
from 246,767.00 £
Est sale value
228,302.42 £
Decreased by 10.62 %
from 255,427.46 £
Average area rental value
934.00 £/mo
Increased by 22.89 %
from 760.00 £/mo
Est letting value
1,130.21 £/mo
from 0.00 £/mo
Est rental Yield
7.00 %
Increased by 89.19 %
from 3.70 %
Crime Rate
67.00 %
Unchanged by 0.00 %
from 67.00 %

Agent Activity

  • West Wales Properties created the listing.

Nearby Schools

NameTypeOfstedDistance
Pembroke Dock Cp SchoolWelsh Establishment2.86 KM
Cosheston V.C.P. SchoolWelsh Establishment2.94 KM
Ysgol Harri Tudur/Henry Tudor SchoolWelsh Establishment3.08 KM
Pembrokeshire Pupil Referral ServiceWelsh Establishment3.25 KM
Neyland Primary SchoolWelsh Establishment3.78 KM

Images

DSC_0048.jpg DSC_0027 (3).jpg DSC_0064 (3).jpg DSC_0036 (2).jpg DSC_0085.jpg DSC_0075.jpg DSC_0038 (3).jpg DSC_0979.jpg DSC_0014 (2).jpg DSC_0020 (1).jpg DSC_0996.jpg DSC_0004.jpg DSC_0063.jpg DSC_0032 (1).jpg DSC_0989.jpg DSC_0973.jpg DSC_0966.jpg DSC_0080 (2).jpg DSC_0072 (1).jpg DSC_0045.JPG

Nearby Streets

NameAverage PriceAverage SqftDistance
Pembroke Ferry £ 000.00 KM
Cleddau Bridge £ 900,00000.00 KM
Devonshire Road £ 200,00000.00 KM

Nearby Transport

NameNLCTLCDistance
Pembroke Dock4102PMD2.81 KM
Pembroke4101PMB4.47 KM
Lamphey4084LAM7.05 KM
Johnston (Pembs)4081JOH9.91 KM

Nearby Listings

AddressPriceTypeScoreDistance
Burton, £ 280,000BUY7 / 100.00 KM
Burton, Milford Haven, Pembrokeshire, SA73 £ 319,999BUY6 / 100.12 KM
Holly Tree Cottage, Church Road, Burton £ 399,950BUY7 / 100.12 KM
Burton, Milford Haven £ 335,000BUY6 / 100.12 KM
Church Road, Burton, Milford Haven, SA73 £ 399,950BUY7 / 100.12 KM

Nearby Properties

AddressPriceDistance
7 Brompton Grove £ 300,0000.16 KM
2 Brompton Grove £ 525,0000.16 KM
4 Brompton Grove £ 336,0000.16 KM
1 Brompton Grove £ 290,0000.16 KM
6 Brompton Grove £ 250,0000.16 KM