Mark Ewin says ..
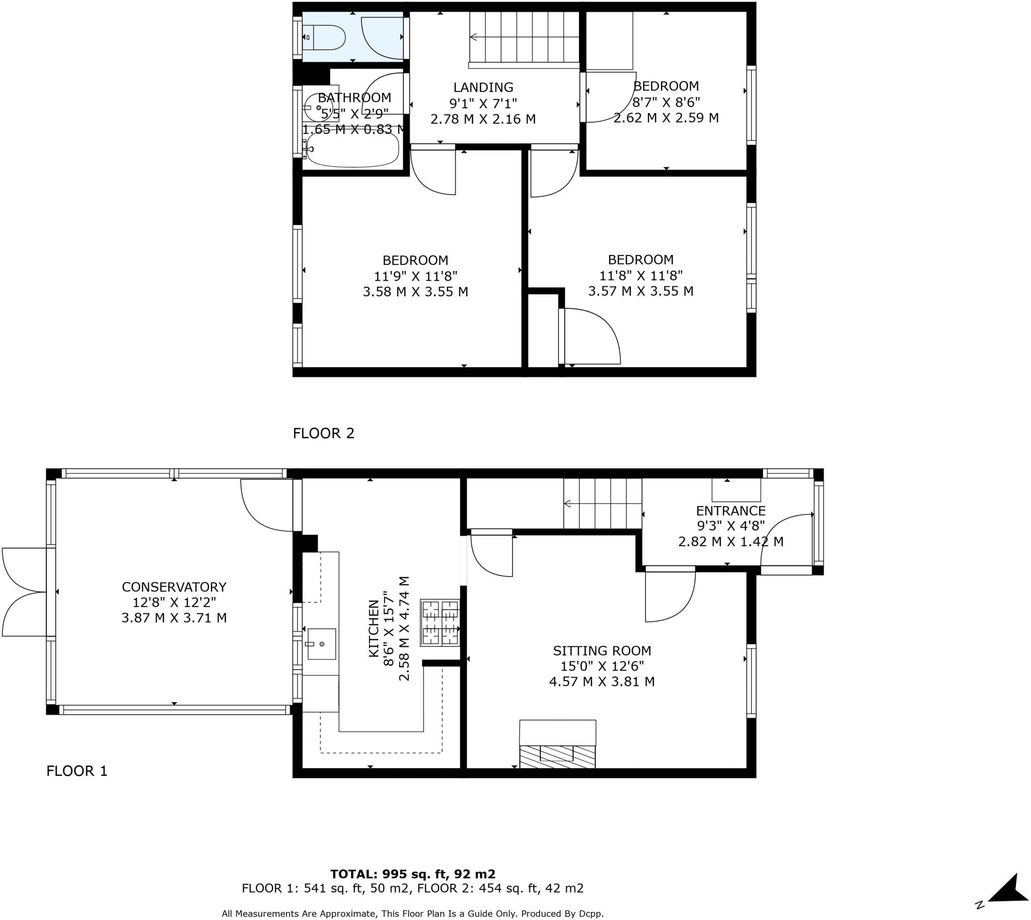
Situated on the popular Westley estate of Bury St Edmunds is this three-bedroom terrace property. The property offers ground floor accommodation to include an entrance hall, sitting room, kitchen/dining room and a conservatory leading to the garden. On the first floor, there are three good-si...
Property Oracle says ..
This three-bedroom terraced house in Bury St Edmunds is located in a convenient location, close to Westley Middle School and Sexton’s Manor Community Primary School. The property benefits from a small garden and a conservatory. While the property appears to be in reasonable condition, some updates may be needed to modernize the kitchen and bathrooms. The list price of £210,000 is below the average price for the area, suggesting it could represent good value for money, however, more information is needed on the condition and size of comparable properties to make a more informed assessment.
Therefore, we give this property 6 / 10. *Disclaimer: This is our option and does constitute a recommendation or financial advice. Do your own research. *
- Price
- 8
- Condition
- 6
- Location
- 7
- Land
- 4
- Bedrooms
- 3
- Bathrooms
- 1
- Sqft (est)
- 800.81
- Lot (est)
- 995.00
The heatmap indicates the level of crime in the area. The color of the heatmap indicates the crime severity and recency.
Metrics Year-on-Year
- Average area value
- 762,500.00 £Increased by 121.14 %
- Est sale value
- 225,027.61 £Decreased by 41.70 %
- Average area rental value
- 1,663.00 £/moIncreased by 17.36 %
- Est letting value
- 0.00 £/moDecreased by 100.00 %
- Est rental Yield
- 2.62 %Decreased by 46.86 %
- Crime Rate
- 24.00 %Unchanged by 0.00 %
Agent Activity
Mark Ewin created the listing.
Nearby Schools
| Name | Type | Ofsted | Distance |
|---|---|---|---|
| Westley Middle School | Academy Converter | Good | 0.14 KM |
| Sexton'S Manor Community Primary School | Community School | Good | 0.51 KM |
| Horringer Court Middle School | Academy Converter | Good | 1.62 KM |
| Howard Community Academy | Academy Sponsor Led | 1.78 KM | |
| The Albany | Academy Alternative Provision Converter | 2.00 KM |
Images
Nearby Streets
| Name | Average Price | Average Sqft | Distance |
|---|---|---|---|
| Paddock Close | £ 0 | 0 | 0.00 KM |
| Gainsborough Road | £ 0 | 0 | 0.00 KM |
| Western Way (East) | £ 765,000 | 0 | 0.00 KM |
| Westley to Westley School | £ 0 | 0 | 0.00 KM |
| Briarwood Avenue | £ 0 | 0 | 0.00 KM |
Nearby Transport
| Name | NLC | TLC | Distance |
|---|---|---|---|
| Bury St Edmunds | 7008 | BSE | 3.62 KM |
Nearby Listings
| Address | Price | Type | Score | Distance |
|---|---|---|---|---|
| Oliver Road, Bury St. Edmunds | £ 210,000 | BUY | 6 / 10 | 0.00 KM |
| Tomline Walk, Bury St. Edmunds | £ 260,000 | BUY | 7 / 10 | 0.04 KM |
| Oliver Road, Bury St. Edmunds, Suffolk, IP33 | £ 245,000 | BUY | 6 / 10 | 0.09 KM |
| Oliver Road, Bury St. Edmunds, Suffolk, IP33 | £ 375,000 | BUY | 6 / 10 | 0.10 KM |
| Reynolds Walk, Bury St. Edmunds | £ 200,000 | BUY | 7 / 10 | 0.14 KM |
Nearby Properties
| Address | Price | Distance |
|---|---|---|
| 11 Tomline Walk | £ 255,000 | 0.04 KM |
| 3 Tomline Walk | £ 211,000 | 0.04 KM |
| 9 Tomline Walk | £ 228,000 | 0.04 KM |
| 2 Tomline Walk | £ 220,000 | 0.04 KM |
| 175 Oliver Road | £ 51,000 | 0.06 KM |