Montague Street, Clitheroe, BB7
By Stones Young Estate and Letting Agents
£ 315,000
Reviews
3 out of 5 stars
Stones Young Estate and Letting Agents says ..
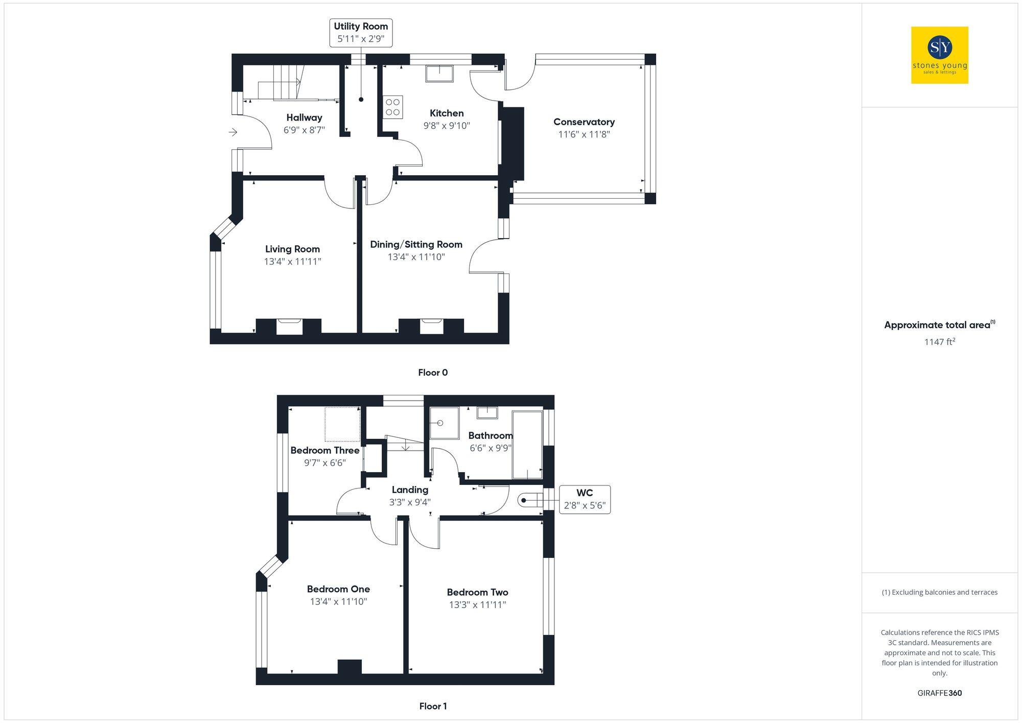
Rare opportunity! Beautiful mature 3-Bedroom Semi-Detached House, spacious interior & stunning views. Modern kitchen, large receptions, conservatory, 3-pce bathroom. Stone-flagged front garden, rear patio garden, single garage. Ideal family home near town & train station. Viewing recommended.
Property Oracle says ..
This is a three-bedroom semi-detached property located on Montague Street in Clitheroe, Lancashire. The house offers a good amount of living space at 1,147 square feet and includes a garden. While the kitchen and bathroom have been modernised, some areas of the property would benefit from cosmetic improvements. The property is conveniently located near local schools and transportation links, including the Clitheroe train station. The asking price of £315,000 appears reasonable when compared to average property prices in the area.
Therefore, we give this property 6 / 10. *Disclaimer: This is our option and does constitute a recommendation or financial advice. Do your own research. *
- Price
- 7
- Condition
- 6
- Location
- 7
- Land
- 6
- Bedrooms
- 3
- Bathrooms
- 1
- Sqft (est)
- 1,147.00
The heatmap indicates the level of crime in the area. The color of the heatmap indicates the crime severity and recency.
Metrics Year-on-Year
- Average area value
- 524,714.00 £Increased by 15.54 %
- Est sale value
- 707,699.00 £Increased by 48.67 %
- Average area rental value
- 1,989.00 £/moIncreased by 4.74 %
- Est letting value
- 2,294.00 £/moIncreased by 100.00 %
- Est rental Yield
- 4.55 %Decreased by 9.36 %
- Crime Rate
- 12.00 %Unchanged by 0.00 %
Agent Activity
Stones Young Estate and Letting Agents created the listing.
Nearby Schools
| Name | Type | Ofsted | Distance |
|---|---|---|---|
| St James' Church Of England Primary School, Clitheroe | Voluntary Aided School | Good | 0.71 KM |
| St Michael And St John'S Roman Catholic Primary School, Clitheroe | Voluntary Aided School | Requires improvement | 0.80 KM |
| Edisford Primary School | Community School | Good | 0.85 KM |
| Ribblesdale Nursery School | Local Authority Nursery School | Good | 1.00 KM |
| Ribblesdale Children'S Centre | Children's Centre | 1.00 KM |
Images
Nearby Streets
| Name | Average Price | Average Sqft | Distance |
|---|---|---|---|
| Baldwin Hill | £ 0 | 0 | 0.00 KM |
| Baldwin Road | £ 0 | 0 | 0.00 KM |
| Curzon Street | £ 139,975 | 0 | 0.00 KM |
| Henthorn Road | £ 0 | 0 | 0.00 KM |
| Monk Street | £ 0 | 0 | 0.00 KM |
Nearby Transport
| Name | NLC | TLC | Distance |
|---|---|---|---|
| Clitheroe | 2574 | CLH | 0.50 KM |
| Whalley (Lancashire) | 2736 | WHE | 5.53 KM |
| Langho | 2735 | LHO | 9.29 KM |
Nearby Listings
| Address | Price | Type | Score | Distance |
|---|---|---|---|---|
| Montague Street, Clitheroe, BB7 | £ 315,000 | BUY | 6 / 10 | 0.00 KM |
| Baldwin Road, Clitheroe, Lancashire, BB7 | £ 425,000 | BUY | 7 / 10 | 0.04 KM |
| Albemarle Court, Clitheroe, BB7 | £ 280,000 | BUY | 7 / 10 | 0.07 KM |
| De Lacy Street, Clitheroe, Lancashire, BB7 | £ 185,000 | BUY | 5 / 10 | 0.11 KM |
| Montague Street, Clitheroe, Lancashire, BB7 | £ 189,950 | BUY | 7 / 10 | 0.13 KM |
Nearby Properties
| Address | Price | Distance |
|---|---|---|
| Sunnydale | £ 285,000 | 0.03 KM |
| Afterglow | £ 325,000 | 0.03 KM |
| Higherfold | £ 328,000 | 0.03 KM |
| 4 Albemarle Court | £ 134,000 | 0.08 KM |
| 2 Albemarle Court | £ 179,000 | 0.08 KM |