George Street, Gainsborough, Lincolnshire, DN21
By DDM Residential
£ 115,000
Reviews
3 out of 5 stars
DDM Residential says ..
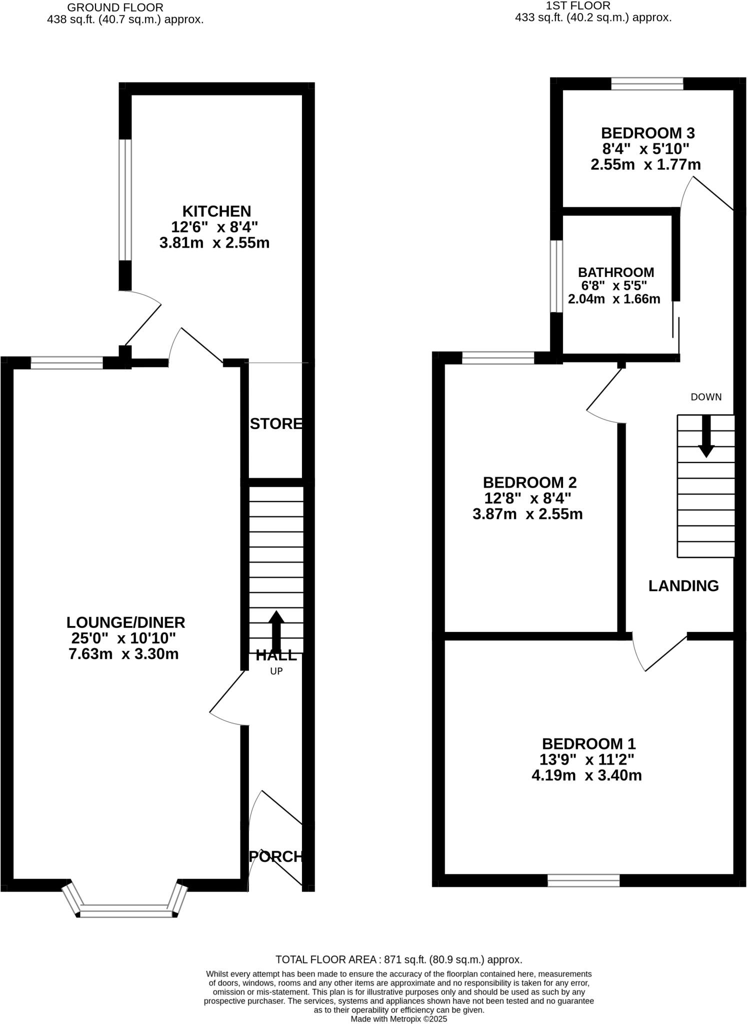
Welcome to George Street – a charming, traditional bay-fronted three-bedroom semi-detached home, ideally situated in one of Gainsborough’s sought-after residential areas.
Property Oracle says ..
This property is a 3-bedroom semi-detached house located in Gainsborough, Lincolnshire. The location benefits from being close to several schools, including Warren Wood Academy (Good Ofsted rating) and The Gainsborough Hillcrest Early Years Academy (Outstanding Ofsted rating). Transport links are also convenient, with Gainsborough Central train station within a reasonable distance. The property itself appears to be in good condition, having undergone some modernisation. The images show a recently decorated interior with a modern bathroom. The property also includes a garden, which is a desirable feature for many buyers. However, the plot size is listed as 0.00 sqft, which may require clarification. Compared to the average price per sqft in the area (£267), the listed price of £115,000 for 870.80 sqft seems relatively low. However, this could be due to several factors, including the relatively small plot size and the lack of detailed information on the property’s overall condition and features. Further investigation into the property’s specifics would be beneficial to determine its true market value.
Therefore, we give this property 6 / 10. *Disclaimer: This is our option and does constitute a recommendation or financial advice. Do your own research. *
- Price
- 6
- Condition
- 8
- Location
- 7
- Land
- 4
- Bedrooms
- 3
- Bathrooms
- 1
- Sqft (est)
- 870.80
The heatmap indicates the level of crime in the area. The color of the heatmap indicates the crime severity and recency.
Metrics Year-on-Year
- Average area value
- 302,567.00 £Increased by 9.67 %
- Est sale value
- 267,335.60 £Decreased by 27.76 %
- Average area rental value
- 1,147.00 £/moIncreased by 17.88 %
- Est letting value
- 870.80 £/moUnchanged by 0.00 %
- Est rental Yield
- 4.55 %Increased by 7.57 %
- Crime Rate
- 4.00 %Unchanged by 0.00 %
Agent Activity
DDM Residential created the listing.
Nearby Schools
| Name | Type | Ofsted | Distance |
|---|---|---|---|
| Warren Wood - A Specialist Academy | Academy Special Converter | Good | 0.00 KM |
| The Gainsborough Hillcrest Early Years Academy | Academy Converter | Outstanding | 0.48 KM |
| White'S Wood Academy | Academy Converter | Requires improvement | 0.56 KM |
| The Gainsborough Charles Baines Community Primary School | Community School | Good | 0.78 KM |
| Benjamin Adlard Primary School | Academy Converter | Good | 1.09 KM |
Images
Nearby Streets
| Name | Average Price | Average Sqft | Distance |
|---|---|---|---|
| Pingle Hill | £ 0 | 0 | 0.00 KM |
| Springfield Close | £ 115,000 | 0 | 0.00 KM |
| The Walk | £ 0 | 0 | 0.00 KM |
| Burgh Close | £ 0 | 0 | 0.00 KM |
| Alfie Williams Way | £ 0 | 0 | 0.00 KM |
Nearby Transport
| Name | NLC | TLC | Distance |
|---|---|---|---|
| Gainsborough Central | 6465 | GNB | 0.66 KM |
| Gainsborough Lea Road | 6424 | GBL | 1.40 KM |
Nearby Listings
| Address | Price | Type | Score | Distance |
|---|---|---|---|---|
| George Street, Gainsborough, Lincolnshire, DN21 | £ 115,000 | BUY | 6 / 10 | 0.00 KM |
| Pingle Close, Gainsborough | £ 125,000 | BUY | 7 / 10 | 0.11 KM |
| Pingle Close, Gainsborough, DN21 | £ 130,000 | BUY | 7 / 10 | 0.11 KM |
| Middlefield Lane, Gainsborough | £ 210,000 | BUY | 7 / 10 | 0.16 KM |
| 25 Claythorne Drive, Gainsborough | £ 200,000 | BUY | 7 / 10 | 0.24 KM |
Nearby Properties
| Address | Price | Distance |
|---|---|---|
| 32 Pingle Close | £ 90,000 | 0.11 KM |
| 39 Pingle Close | £ 262,500 | 0.11 KM |
| 46 Pingle Close | £ 175,000 | 0.11 KM |
| 1 Pingle Close | £ 95,000 | 0.11 KM |
| 9 Pingle Close | £ 93,320 | 0.11 KM |