Chancellors says ..
Very well presented three bedroom semi detached home is in a very sought after development. Within a mile to Schools, transport links.
Property Oracle says ..
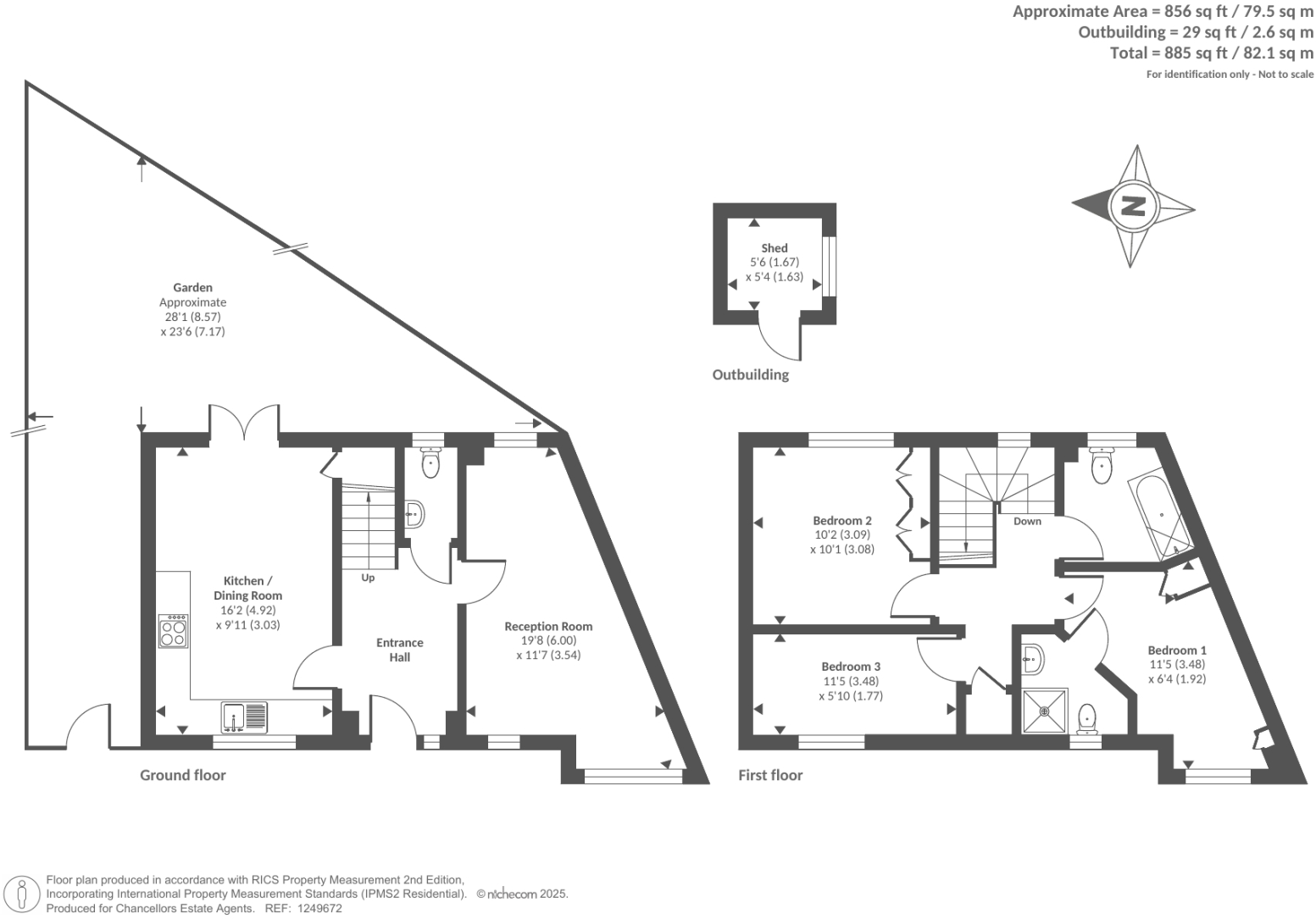
This property is a three-bedroom semi-detached house located in Slough, Berkshire. The location benefits from being close to several schools, including Western House Academy (Good Ofsted rating) and The Westgate School (Outstanding Ofsted rating), both within a kilometer. Several train stations are also within reasonable distance, providing good transport links. The property itself appears to be in good condition, well-maintained, and modern in style. Images show a well-equipped kitchen, modern bathrooms, and a pleasant garden. While the exact square footage is not provided, the list price of £525,000 seems slightly higher than the average price for the area (£316,596), though comparable to other nearby semi-detached properties. The presence of a garden is a positive aspect. Overall, this property presents a good balance of location, condition, and amenities.
Therefore, we give this property 7 / 10. *Disclaimer: This is our option and does constitute a recommendation or financial advice. Do your own research. *
- Price
- 7
- Condition
- 9
- Location
- 8
- Land
- 7
- Bedrooms
- 3
- Bathrooms
- 2
- Sqft (est)
- 1,270.83
- Lot (est)
- 856.00
The heatmap indicates the level of crime in the area. The color of the heatmap indicates the crime severity and recency.
Metrics Year-on-Year
- Average area value
- 304,967.00 £Decreased by 8.76 %
- Est sale value
- 588,394.29 £Increased by 1.76 %
- Average area rental value
- 1,680.00 £/moIncreased by 3.51 %
- Est letting value
- 2,541.66 £/moUnchanged by 0.00 %
- Est rental Yield
- 6.61 %Increased by 13.38 %
- Crime Rate
- 22.00 %Unchanged by 0.00 %
Agent Activity
Chancellors created the listing.
Nearby Schools
| Name | Type | Ofsted | Distance |
|---|---|---|---|
| Western House Academy | Academy Sponsor Led | Good | 0.53 KM |
| The Westgate School | Academy Converter | Outstanding | 0.88 KM |
| Islamic Shakhsiyah Foundation | Other Independent School | 1.18 KM | |
| Al-Madani Girls School | Other Independent School | Good | 1.21 KM |
| Cippenham School | Academy Converter | Good | 1.50 KM |
Images
Nearby Streets
| Name | Average Price | Average Sqft | Distance |
|---|---|---|---|
| Grimsby Road | £ 370,000 | 0 | 0.00 KM |
| Little Chapel Way | £ 0 | 0 | 0.00 KM |
| Bentley Road | £ 0 | 0 | 0.00 KM |
| Roxwell Close | £ 0 | 0 | 0.00 KM |
| Milltington Close | £ 0 | 0 | 0.00 KM |
Nearby Transport
| Name | NLC | TLC | Distance |
|---|---|---|---|
| Burnham | 3176 | BNM | 1.96 KM |
| Windsor And Eton Central | 3175 | WNC | 4.03 KM |
| Windsor And Eton Riverside | 5672 | WNR | 4.15 KM |
| Slough | 3172 | SLO | 4.81 KM |
| Taplow | 3151 | TAP | 5.34 KM |
Nearby Listings
| Address | Price | Type | Score | Distance |
|---|---|---|---|---|
| Slough, Berkshire, SL1 | £ 525,000 | BUY | 7 / 10 | 0.00 KM |
| Amesbury Road, Cippenham | £ 599,950 | BUY | Unknown | 0.05 KM |
| Amesbury Road, Slough | £ 570,000 | BUY | 7 / 10 | 0.06 KM |
| Bellefield, Cippenham | £ 409,950 | BUY | 6 / 10 | 0.09 KM |
| Bantry Road, Slough | £ 450,000 | BUY | 5 / 10 | 0.12 KM |
Nearby Properties
| Address | Price | Distance |
|---|---|---|
| 1a Amesbury Road | £ 250,000 | 0.05 KM |
| 1 Leacroft | £ 211,845 | 0.10 KM |
| 8 Bellefield | £ 325,000 | 0.10 KM |
| 6 Bellefield | £ 315,000 | 0.10 KM |
| 10 Bellefield | £ 328,000 | 0.10 KM |