Ramsgate Road, Broadstairs, CT10
MI

Ramsgate Road, Broadstairs, CT10

By Miles & Barr

£ 500,000

Reviews

3 out of 5 stars

Miles & Barr says ..

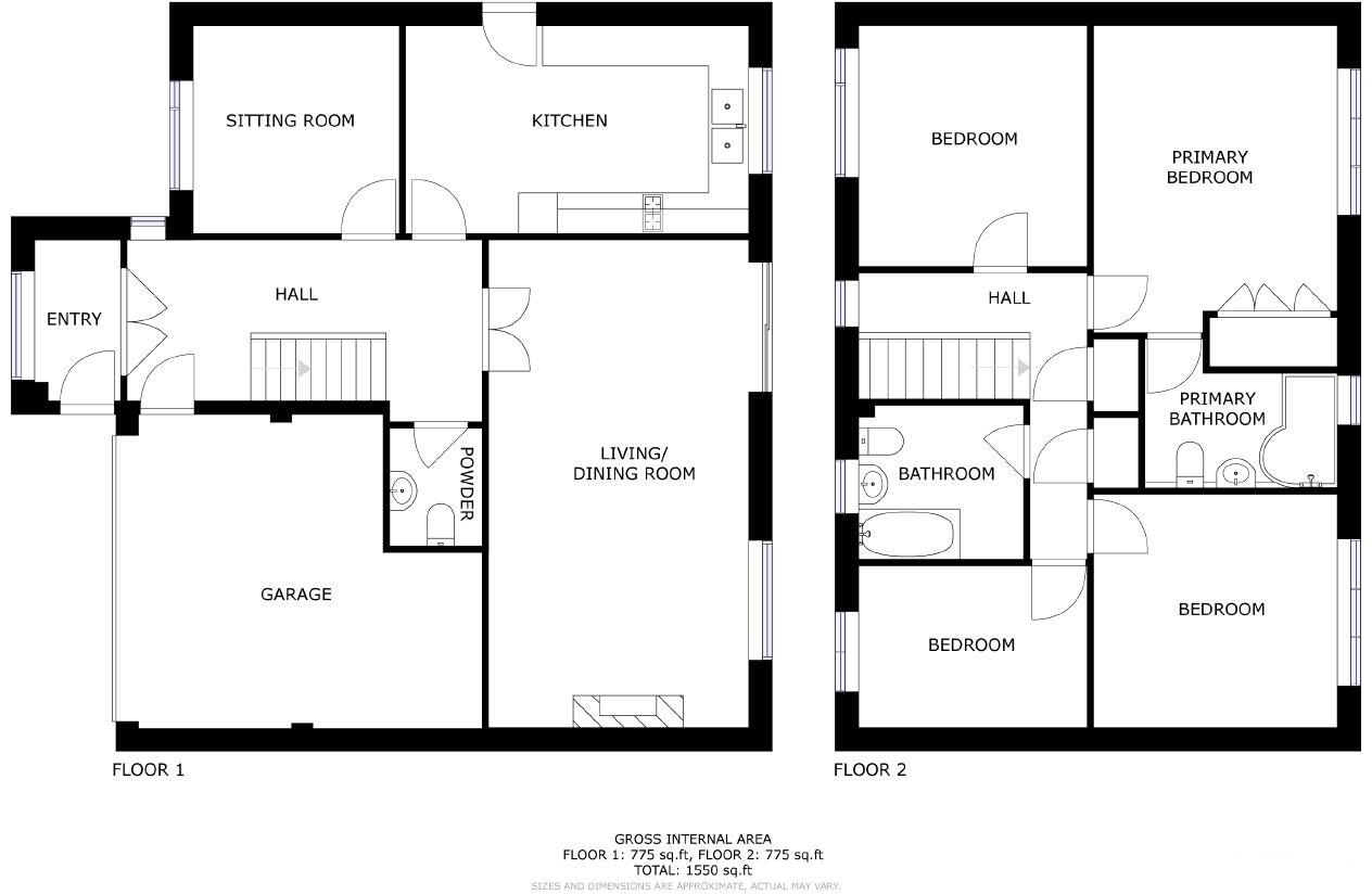
Situated close to local amenities, transport links and schools is this spacious four bedroom detached house offered to the market with No onward chain. Set back from the road the property has an entrance porch leading into the large hallway, to the right is access directly into the integral garag...

Property Oracle says ..

This property is a 4-bedroom, 2-bathroom detached house located on Ramsgate Road in Broadstairs, Kent. The list price is £500,000, and the property has 1,325 sqft of living space and a 1,550 sqft plot. The average price for similar properties in the area is £438,816, with an average price per sqft of £324. The property benefits from being within a reasonable distance of several schools and train stations. The condition of the property appears to be generally good, although some updating may be desirable to enhance its overall appeal. The property includes a garden.

Therefore, we give this property 7 / 10. *Disclaimer: This is our option and does constitute a recommendation or financial advice. Do your own research. *

Price
7
Condition
7
Location
8
Land
6
Bedrooms
4
Bathrooms
2
Sqft (est)
1,325.00
Lot (est)
1,550.00

The heatmap indicates the level of crime in the area. The color of the heatmap indicates the crime severity and recency.

Metrics Year-on-Year

Average area value
477,882.00 £
Increased by 5.54 %
from 452,811.00 £
Est sale value
608,175.00 £
Increased by 37.01 %
from 443,875.00 £
Average area rental value
1,256.00 £/mo
Increased by 12.34 %
from 1,118.00 £/mo
Est letting value
1,325.00 £/mo
from 0.00 £/mo
Est rental Yield
3.15 %
Increased by 6.42 %
from 2.96 %
Crime Rate
5.00 %
Unchanged by 0.00 %
from 5.00 %

Agent Activity

  • Miles & Barr created the listing.

Nearby Schools

NameTypeOfstedDistance
Wellesley HouseOther Independent School0.61 KM
Ramsgate, Holy Trinity Church Of England Primary SchoolVoluntary Aided SchoolOutstanding0.75 KM
Newlands Children'S CentreChildren's Centre0.96 KM
Newlands Primary SchoolAcademy Sponsor LedGood0.96 KM
Haddon Dene SchoolOther Independent School0.97 KM

Images

general 184 Ramsgate general 184 Ramsgate general 184 Ramsgate general 184 Ramsgate general 184 Ramsgate general 184 Ramsgate general 184 Ramsgate general 184 Ramsgate general 184 Ramsgate general 184 Ramsgate general 184 Ramsgate general 184 Ramsgate general 184 Ramsgate general 184 Ramsgate general 184 Ramsgate general 184 Ramsgate general 184 Ramsgate

Nearby Streets

NameAverage PriceAverage SqftDistance
Park Gate £ 000.00 KM
Bay View Road £ 750,00000.00 KM
Parkwood Close £ 542,48800.00 KM
Walnut Close £ 581,25000.00 KM
Argyll Drive £ 350,00000.00 KM

Nearby Transport

NameNLCTLCDistance
Dumpton Park5034DMP0.49 KM
Broadstairs5006BSR1.39 KM
Ramsgate5023RAM2.52 KM
Margate5018MAR7.28 KM

Nearby Listings

AddressPriceTypeScoreDistance
Ramsgate Road, Broadstairs, CT10 £ 500,000BUY7 / 100.00 KM
Ramsgate Road, Broadstairs, Kent, CT10 £ 360,000BUY7 / 100.00 KM
Avalon, Ramsgate Road, Broadstairs £ 360,000BUYUnknown0.00 KM
Ramsgate Road, Broadstairs, CT10 £ 575,000BUYUnknown0.04 KM
Ramsgate Road, Broadstairs £ 550,000BUY6 / 100.09 KM

Nearby Properties

AddressPriceDistance
198 Ramsgate Road £ 191,0000.01 KM
181 Ramsgate Road £ 385,0000.01 KM
205 Ramsgate Road £ 250,0000.01 KM
206 Ramsgate Road £ 240,0000.01 KM
165 Ramsgate Road £ 217,0000.01 KM