Selham Close, Chichester, PO19
By Henry Adams
£ 375,000
Reviews
3 out of 5 stars
Henry Adams says ..
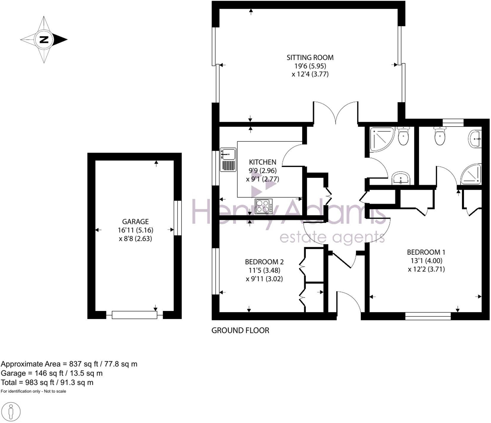
NO ONWARD CHAIN. A GROUND FLOOR apartment situated in the favoured MARCHWOOD ESTATE to the north of Chichester. DUAL ASPECT sitting room, TWO BEDROOMS, two shower rooms (ONE EN-SUITE). SOUTH FACING garden, GARAGE. EPC-C
Property Oracle says ..
This ground floor apartment is situated in the popular Chichester North area of West Sussex. The property benefits from a good-sized garden and is conveniently located near several highly-rated schools, including St Anthony’s School (Outstanding) and Jessie Younghusband Primary School (Good). Chichester city centre is also within easy reach, offering a range of amenities and transport links. The apartment itself appears to be in good condition, although the kitchen may benefit from some modernisation. The list price of £375,000 is slightly below the average price for the area (£443,651), and while the apartment is smaller than the average size (983 sqft vs 1117 sqft), the inclusion of a garden could justify the price. However, more information on the plot size would be needed for a definitive assessment of value.
Therefore, we give this property 7 / 10. *Disclaimer: This is our option and does constitute a recommendation or financial advice. Do your own research. *
- Price
- 7
- Condition
- 8
- Location
- 9
- Land
- 7
- Bedrooms
- 2
- Bathrooms
- 2
- Sqft (est)
- 983.00
The heatmap indicates the level of crime in the area. The color of the heatmap indicates the crime severity and recency.
Metrics Year-on-Year
- Average area value
- 509,575.00 £Increased by 1.97 %
- Est sale value
- 418,758.00 £Decreased by 6.99 %
- Average area rental value
- 1,508.00 £/moIncreased by 24.12 %
- Est letting value
- 983.00 £/moUnchanged by 0.00 %
- Est rental Yield
- 3.55 %Increased by 21.58 %
- Crime Rate
- 3.00 %Unchanged by 0.00 %
Agent Activity
Henry Adams created the listing.
Nearby Schools
| Name | Type | Ofsted | Distance |
|---|---|---|---|
| Fordwater School, Chichester | Community Special School | Good | 0.70 KM |
| University Of Chichester | Higher Education Institutions | 1.47 KM | |
| Jessie Younghusband Primary School | Community School | Good | 1.52 KM |
| St Anthony'S School | Community Special School | Outstanding | 1.55 KM |
| Lavant Cofe Primary School | Voluntary Controlled School | Good | 1.97 KM |
Images
Nearby Streets
| Name | Average Price | Average Sqft | Distance |
|---|---|---|---|
| The Lane | £ 0 | 0 | 0.00 KM |
| Young Street | £ 0 | 0 | 0.00 KM |
| North Mead Road | £ 0 | 0 | 0.00 KM |
| Foster Road | £ 0 | 0 | 0.00 KM |
| Hackett Way | £ 442,500 | 0 | 0.00 KM |
Nearby Transport
| Name | NLC | TLC | Distance |
|---|---|---|---|
| Chichester | 5255 | CCH | 2.91 KM |
| Fishbourne (Sussex) | 5261 | FSB | 4.83 KM |
| Bosham | 5254 | BOH | 8.12 KM |
Nearby Listings
| Address | Price | Type | Score | Distance |
|---|---|---|---|---|
| Selham Close, Chichester, PO19 | £ 375,000 | BUY | 7 / 10 | 0.00 KM |
| Selham Close, Marchwood, Summersdale, Chichester, PO19 | £ 350,000 | BUY | 6 / 10 | 0.01 KM |
| Selham Close, Chichester, West Sussex | £ 395,000 | BUY | 5 / 10 | 0.02 KM |
| Chichester | £ 300,000 | BUY | 6 / 10 | 0.02 KM |
| Selham Close, Marchwood, Summersdale, Chichester | £ 380,000 | BUY | Unknown | 0.02 KM |
Nearby Properties
| Address | Price | Distance |
|---|---|---|
| 9 Selham Close | £ 330,000 | 0.02 KM |
| 11 Selham Close | £ 380,000 | 0.02 KM |
| 14 Selham Close | £ 338,000 | 0.02 KM |
| 12 Selham Close | £ 244,500 | 0.02 KM |
| 12 Graffham Close | £ 575,000 | 0.06 KM |