Bradleys says ..
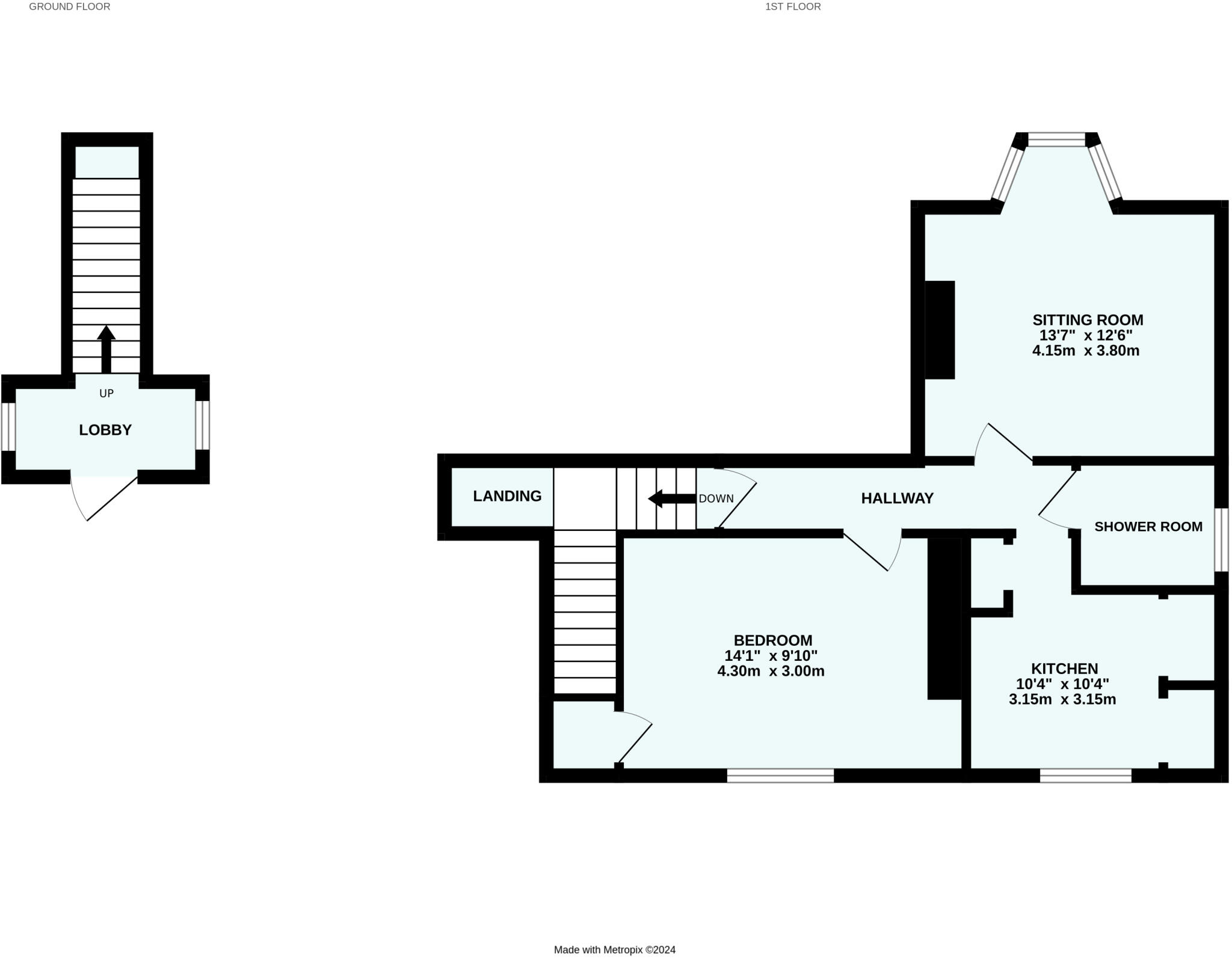
GUIDE RANGE £175,000 - £185,000. Nestled on the first floor of this distinguished detached residence, with private parking. No onward chain
Property Oracle says ..
Therefore, we give this property 7 / 10. *Disclaimer: This is our option and does constitute a recommendation or financial advice. Do your own research. *
- Price
- 7
- Condition
- 8
- Location
- 8
- Land
- 7
- Bedrooms
- 1
- Bathrooms
- 1
- Sqft (est)
- 415.38
The heatmap indicates the level of crime in the area. The color of the heatmap indicates the crime severity and recency.
Metrics Year-on-Year
- Average area value
- 369,988.00 £Decreased by 30.48 %
- Est sale value
- 284,535.30 £Increased by 49.56 %
- Average area rental value
- 1,400.00 £/moIncreased by 12.27 %
- Est letting value
- 830.76 £/moIncreased by 100.00 %
- Est rental Yield
- 4.54 %Increased by 61.57 %
- Crime Rate
- 24.00 %Unchanged by 0.00 %
from 532,219.00 £
from 190,244.04 £
from 1,247.00 £/mo
from 415.38 £/mo
from 2.81 %
from 24.00 %
Agent Activity
Bradleys created the listing.
Nearby Schools
| Name | Type | Ofsted | Distance |
|---|---|---|---|
| St John'S School | Other Independent School | 0.99 KM | |
| Sidmouth Church Of England (Va) Primary School | Academy Converter | Good | 1.87 KM |
| Sidmouth Children'S Centre | Children's Centre | 2.36 KM | |
| Sidmouth College | Community School | Good | 2.61 KM |
| Sidbury Church Of England Primary School | Academy Converter | Good | 5.43 KM |
Images
Nearby Streets
| Name | Average Price | Average Sqft | Distance |
|---|---|---|---|
| Glen Close | £ 325,000 | 0 | 0.00 KM |
| The Glen | £ 825,000 | 0 | 0.00 KM |
| Powys House | £ 285,000 | 0 | 0.00 KM |
| Amyatt's Terrace | £ 0 | 0 | 0.00 KM |
| Chapel Road | £ 196,667 | 0 | 0.00 KM |
Nearby Listings
| Address | Price | Type | Score | Distance |
|---|---|---|---|---|
| Manor Road, Sidmouth, Devon | £ 175,000 | BUY | 7 / 10 | 0.00 KM |
| Manor Road, Sidmouth | £ 395,000 | BUY | 7 / 10 | 0.04 KM |
| Flat 4 Fairleigh, Manor Road, Sidmouth, Devon, EX10 8RR | £ 100,000 | BUY | 6 / 10 | 0.08 KM |
| The Redlands, Manor Road, Sidmouth, Devon, EX10 | £ 475,000 | BUY | 8 / 10 | 0.09 KM |
| Witheby, Sidmouth, Devon, EX10 | £ 550,000 | BUY | Unknown | 0.16 KM |
Nearby Properties
| Address | Price | Distance |
|---|---|---|
| Avoca | £ 725,000 | 0.01 KM |
| Mostyns | £ 675,000 | 0.01 KM |
| 37 Witheby | £ 335,000 | 0.17 KM |
| 26 Witheby | £ 408,500 | 0.17 KM |
| 10 Witheby | £ 240,000 | 0.17 KM |