OC
Bradley Crescent, Shirehampton, Bristol
By Ocean
£ 300,000
Reviews
3 out of 5 stars
Ocean says ..
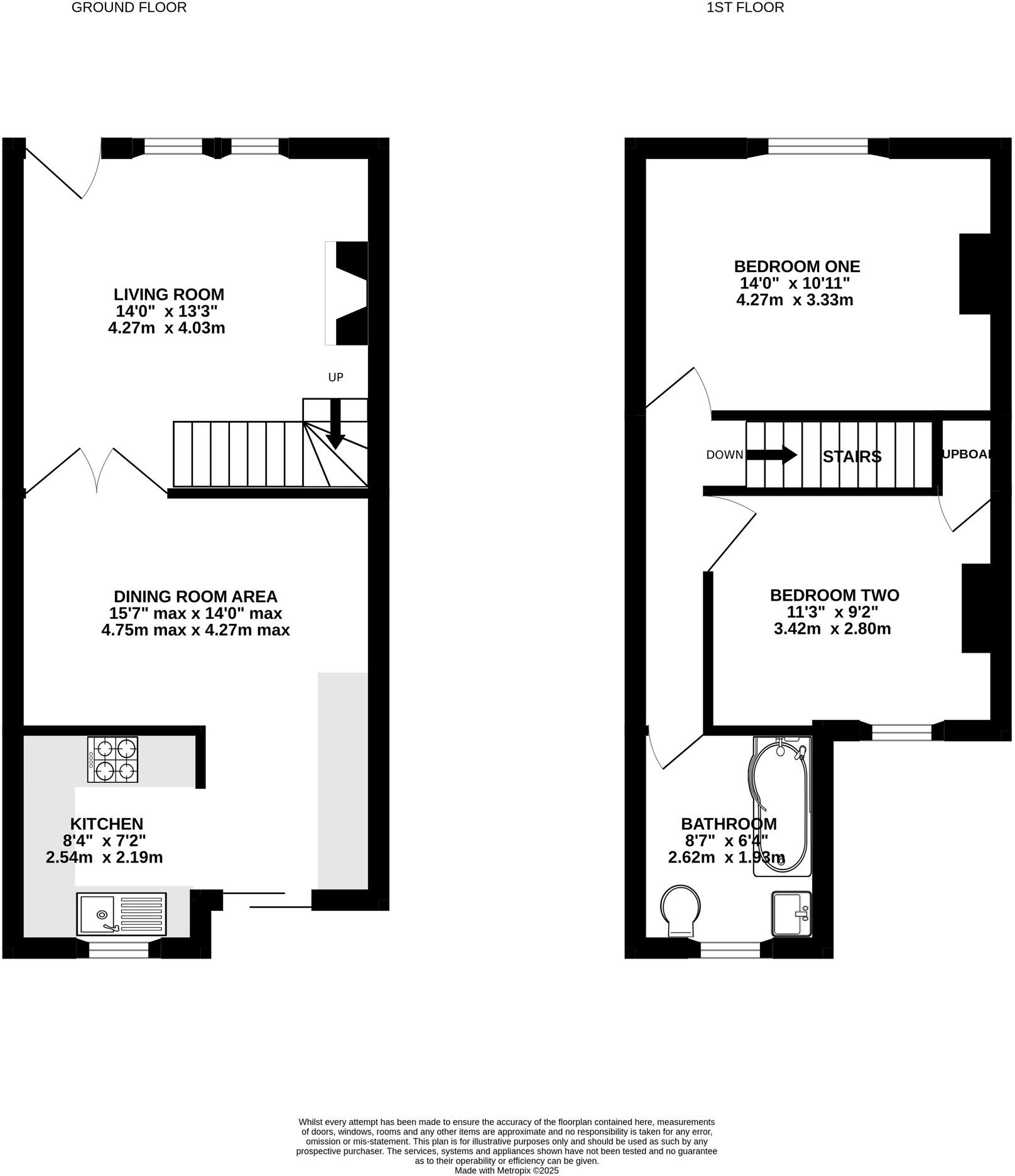
A beautifully presented 2 bedroom home that has been extensively renovated throughout, offered to the market with no onward chain.
Property Oracle says ..
Therefore, we give this property 6 / 10. *Disclaimer: This is our option and does constitute a recommendation or financial advice. Do your own research. *
- Price
- 6
- Condition
- 8
- Location
- 7
- Land
- 5
- Bedrooms
- 2
- Bathrooms
- 1
- Sqft (est)
- 774.25
The heatmap indicates the level of crime in the area. The color of the heatmap indicates the crime severity and recency.
Metrics Year-on-Year
- Average area value
- 314,285.00 £Decreased by 23.82 %
- Est sale value
- 266,342.00 £Increased by 13.53 %
- Average area rental value
- 1,470.00 £/moIncreased by 11.20 %
- Est letting value
- 774.25 £/mo
- Est rental Yield
- 5.61 %Increased by 45.71 %
- Crime Rate
- 35.00 %Unchanged by 0.00 %
from 412,530.00 £
from 234,597.75 £
from 1,322.00 £/mo
from 0.00 £/mo
from 3.85 %
from 35.00 %
Agent Activity
Ocean created the listing.
Nearby Schools
| Name | Type | Ofsted | Distance |
|---|---|---|---|
| Shirehampton Primary School | Community School | Good | 0.54 KM |
| Oasis Academy Brightstowe | Academy Sponsor Led | Good | 0.59 KM |
| Nova Primary School | Community School | Good | 1.06 KM |
| Long Cross Children'S Centre | Children's Centre | 1.44 KM | |
| Oasis Academy Long Cross | Academy Sponsor Led | Good | 1.50 KM |
Images
Nearby Streets
| Name | Average Price | Average Sqft | Distance |
|---|---|---|---|
| Woodview Close | £ 0 | 0 | 0.00 KM |
| Saint Tecla Close | £ 196,975 | 0 | 0.00 KM |
| Watchhouse Road | £ 325,000 | 0 | 0.00 KM |
| Star Lane | £ 0 | 0 | 0.00 KM |
| New Road | £ 0 | 0 | 0.00 KM |
Nearby Transport
| Name | NLC | TLC | Distance |
|---|---|---|---|
| Shirehampton | 3206 | SHH | 0.46 KM |
| Avonmouth | 3200 | AVN | 2.80 KM |
| Sea Mills | 3254 | SML | 3.17 KM |
| St Andrews Road | 3252 | SAR | 3.45 KM |
| Clifton Down | 3202 | CFN | 7.72 KM |
Nearby Listings
| Address | Price | Type | Score | Distance |
|---|---|---|---|---|
| Bradley Crescent, Shirehampton, Bristol | £ 300,000 | BUY | 6 / 10 | 0.00 KM |
| Bradley Crescent, Shirehampton, Bristol | £ 280,000 | BUY | 6 / 10 | 0.01 KM |
| Bradley Crescent, Shirehampton, Bristol, Bristol | £ 239,995 | BUY | Unknown | 0.01 KM |
| Bradley Crescent, Shirehampton, Bristol | £ 300,000 | BUY | 6 / 10 | 0.03 KM |
| Bradley Crescent, Shirehampton | £ 285,000 | BUY | 7 / 10 | 0.03 KM |
Nearby Properties
| Address | Price | Distance |
|---|---|---|
| 12 Bradley Crescent | £ 240,000 | 0.04 KM |
| 14 Bradley Crescent | £ 92,500 | 0.04 KM |
| 16 Bradley Crescent | £ 28,000 | 0.04 KM |
| 6 Bradley Crescent | £ 220,000 | 0.04 KM |
| 26 Bradley Crescent | £ 126,500 | 0.04 KM |