Gilson Bailey says ..
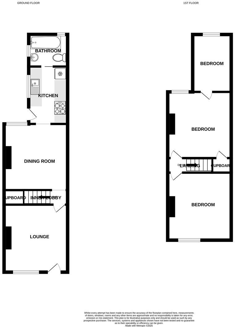
**NR3 TERRACE WITH A LARGER THAN AVERAGE REAR GARDEN** Gilson Bailey are delighted to offer this WELL PRESENTED, THREE BEDROOM, MID TERRACE HOUSE situated in the highly sought after NR3 area of Norwich. Accommodation comprising lounge, dining room, kitchen and bathroom to the ground floor. On the...
Property Oracle says ..
The property is located on Gertrude Road in Norwich, within the Sewell locality. It’s a terraced house with 3 bedrooms and 1 bathroom. The location benefits from being within close proximity to several schools, including St. Clements Hill Primary Academy and George White Junior School. Norwich train station is approximately 2km away, providing transportation links. Based on the images, the property appears to need some renovation. The kitchen and bathroom, in particular, look dated. The interior is generally cluttered, and the decor could use updating. The property has a garden, which appears to be quite overgrown. The list price is £200,000. The average price for properties in the area is £249,236, and the average price per square foot is £292. While the square footage of the subject property is not provided, the listing price is lower than the average property price in the area. Considering the condition of the property, this may reflect the need for renovation.
Therefore, we give this property 6 / 10. *Disclaimer: This is our option and does constitute a recommendation or financial advice. Do your own research. *
- Price
- 7
- Condition
- 4
- Location
- 7
- Land
- 7
- Bedrooms
- 3
- Bathrooms
- 1
- Sqft (est)
- 652.00
The heatmap indicates the level of crime in the area. The color of the heatmap indicates the crime severity and recency.
Metrics Year-on-Year
- Average area value
- 226,667.00 £Increased by 0.36 %
- Est sale value
- 202,772.00 £Increased by 16.48 %
- Average area rental value
- 1,053.00 £/moIncreased by 3.74 %
- Est letting value
- 652.00 £/moUnchanged by 0.00 %
- Est rental Yield
- 5.57 %Increased by 3.34 %
- Crime Rate
- 6.00 %Unchanged by 0.00 %
Agent Activity
Gilson Bailey created the listing.
Nearby Schools
| Name | Type | Ofsted | Distance |
|---|---|---|---|
| St. Clements Hill Primary Academy | Free Schools | 0.35 KM | |
| George White Junior School | Academy Converter | Good | 0.40 KM |
| Mousehold Infant & Nursery School | Academy Converter | 0.64 KM | |
| Sewell Park Academy | Academy Sponsor Led | Requires improvement | 0.66 KM |
| Magdalen Gates Primary School | Community School | Good | 0.89 KM |
Images
Nearby Streets
| Name | Average Price | Average Sqft | Distance |
|---|---|---|---|
| Denmark Opening | £ 0 | 0 | 0.00 KM |
| Le Safferne Gardens | £ 295,000 | 0 | 0.00 KM |
| Silver Road Back Lane | £ 0 | 0 | 0.00 KM |
| Balfour Street | £ 325,000 | 0 | 0.00 KM |
| Taylors Buildings | £ 0 | 0 | 0.00 KM |
Nearby Transport
| Name | NLC | TLC | Distance |
|---|---|---|---|
| Norwich | 7309 | NRW | 2.00 KM |
Nearby Listings
| Address | Price | Type | Score | Distance |
|---|---|---|---|---|
| Gertrude Road, Norwich | £ 200,000 | BUY | 6 / 10 | 0.00 KM |
| Gertrude Road, Norwich | £ 230,000 | BUY | 7 / 10 | 0.01 KM |
| Gertrude Road, Norwich | £ 230,000 | BUY | 6 / 10 | 0.01 KM |
| Gertrude Road, Norwich | £ 240,000 | BUY | 7 / 10 | 0.04 KM |
| Gertrude Road, Norwich | £ 220,000 | BUY | 6 / 10 | 0.05 KM |
Nearby Properties
| Address | Price | Distance |
|---|---|---|
| 32 Gertrude Road | £ 166,838 | 0.06 KM |
| 45 Gertrude Road | £ 185,000 | 0.06 KM |
| 47 Gertrude Road | £ 152,500 | 0.06 KM |
| 34 Gertrude Road | £ 201,000 | 0.06 KM |
| 26 Gertrude Road | £ 219,000 | 0.06 KM |