Bury St. Edmunds, Suffolk, IP28
By Sell My Group
£ 139,995
Reviews
3 out of 5 stars
Sell My Group says ..
BRAND NEW Park Home (40'x20') | FULLY FURNISHED | Residential Development Of Park Home Bungalows | Over 50s | Off-Road Parking | Two Bedrooms | Fitted Kitchen | Stunning Landscaped Park | Safe and Secure, Gated Community Of Like-Minded People | Part Exchange Available
Property Oracle says ..
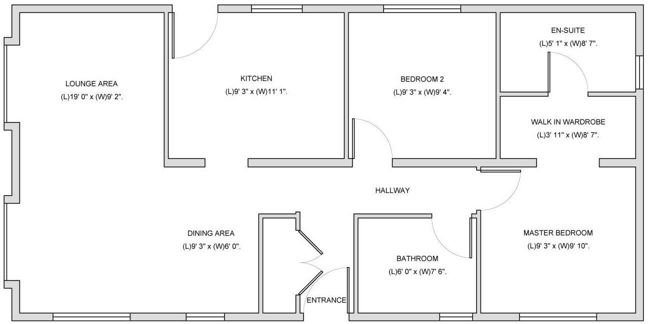
This property is a 2 bedroom, 2 bathroom park home located in Bury St Edmunds, Suffolk. The property is newly built and appears to be in excellent condition, as shown in the provided photos. The interior is modern and well-presented. While the plot size is small, the park home community offers landscaped grounds. The location is relatively rural, with the nearest primary school approximately 1.43km away. The list price is lower than the average price for the area, but this is expected given the smaller size and park home nature of the property. The average price per sqft in the area is considerably higher than what is reflected in the list price. This could be due to the property type and the smaller size. However, considering the condition and the amenities offered in the park home community, the price may represent reasonable value for money.
Therefore, we give this property 6 / 10. *Disclaimer: This is our option and does constitute a recommendation or financial advice. Do your own research. *
- Price
- 8
- Condition
- 10
- Location
- 6
- Land
- 3
- Bedrooms
- 2
- Bathrooms
- 2
- Sqft (est)
- 636.00
The heatmap indicates the level of crime in the area. The color of the heatmap indicates the crime severity and recency.
Metrics Year-on-Year
- Average area value
- 227,833.00 £Decreased by 31.54 %
- Est sale value
- 211,788.00 £Increased by 0.30 %
- Average area rental value
- 1,622.00 £/moIncreased by 15.61 %
- Est letting value
- 1,272.00 £/moIncreased by 100.00 %
- Est rental Yield
- 8.54 %Increased by 68.77 %
- Crime Rate
- 13.00 %Unchanged by 0.00 %
Agent Activity
Sell My Group created the listing.
Nearby Schools
| Name | Type | Ofsted | Distance |
|---|---|---|---|
| Beck Row Primary Academy | Academy Sponsor Led | Requires improvement | 1.43 KM |
| West Row Academy | Academy Sponsor Led | 3.39 KM | |
| On Track Education Centre (Mildenhall) | Other Independent Special School | Good | 3.41 KM |
| Great Heath Academy | Academy Sponsor Led | Good | 4.83 KM |
| St Mary'S Church Of England Academy | Academy Converter | Good | 5.00 KM |
Images
Nearby Streets
| Name | Average Price | Average Sqft | Distance |
|---|---|---|---|
| Beverley Close | £ 0 | 0 | 0.00 KM |
| Heather Court | £ 180,000 | 0 | 0.00 KM |
Nearby Transport
| Name | NLC | TLC | Distance |
|---|---|---|---|
| Shippea Hill | 7073 | SPP | 9.33 KM |
Nearby Listings
| Address | Price | Type | Score | Distance |
|---|---|---|---|---|
| Bury St. Edmunds, Suffolk, IP28 | £ 129,995 | BUY | 6 / 10 | 0.00 KM |
| Bury St. Edmunds, Suffolk, IP28 | £ 139,995 | BUY | 6 / 10 | 0.00 KM |
| Bury St. Edmunds, Suffolk, IP28 | £ 139,995 | BUY | 6 / 10 | 0.00 KM |
| Bury St. Edmunds, Suffolk, IP28 | £ 124,995 | BUY | 6 / 10 | 0.00 KM |
| Rookery Drove, Beck Row, Bury St. Edmunds, Suffolk, IP28 | £ 125,000 | BUY | 6 / 10 | 0.06 KM |
Nearby Properties
| Address | Price | Distance |
|---|---|---|
| 33 Linden Walk | £ 183,950 | 0.20 KM |
| 53 Linden Walk | £ 186,950 | 0.20 KM |
| 60 Linden Walk | £ 230,950 | 0.20 KM |
| 62 Linden Walk | £ 183,950 | 0.20 KM |
| 49 Linden Walk | £ 186,950 | 0.20 KM |