Pennine Way, Carlisle, Cumbria, CA1
By Your Move
£ 150,000
Reviews
3 out of 5 stars
Your Move says ..
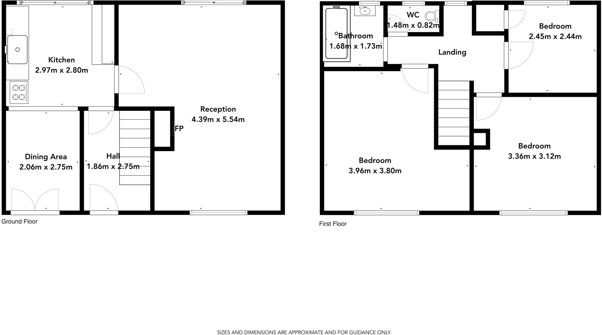
A refurbished three bedroom end terraced house, situated in the popular estate of Harraby, South East of the city centre. Offered for sale with no onward chain and comprising entrance hall, kitchen, dining area, living room, three bedrooms, bathroom and separate WC. Driveway and large rear garden...
Property Oracle says ..
This is a three-bedroom end-of-terrace property located on Pennine Way in Carlisle. The property appears to be in generally good condition, with a modern kitchen and bathroom. It benefits from off-street parking and a rear garden with a shed. The property is located near local schools and amenities, with Carlisle train station within a reasonable distance. The asking price of £150,000 seems competitive for the area and property type. The property would likely appeal to first-time buyers or small families.
Therefore, we give this property 6 / 10. *Disclaimer: This is our option and does constitute a recommendation or financial advice. Do your own research. *
- Price
- 8
- Condition
- 7
- Location
- 6
- Land
- 6
- Bedrooms
- 3
- Bathrooms
- 1
The heatmap indicates the level of crime in the area. The color of the heatmap indicates the crime severity and recency.
Metrics Year-on-Year
- Average area value
- 282,389.00 £Decreased by 5.89 %
- Average area rental value
- 1,083.00 £/moDecreased by 11.16 %
- Est rental Yield
- 4.60 %Decreased by 5.74 %
- Crime Rate
- 3.00 %Unchanged by 0.00 %
Agent Activity
Your Move created the listing.
Nearby Schools
| Name | Type | Ofsted | Distance |
|---|---|---|---|
| St John Henry Newman Catholic School | Voluntary Aided School | Requires improvement | 0.27 KM |
| Pennine Way Primary School | Community School | Good | 0.39 KM |
| Inglewood Junior School | Community School | Good | 1.24 KM |
| Inglewood Infant School | Community School | Requires improvement | 1.41 KM |
| St Cuthberts Catholic Primary School, Carlisle | Academy Converter | 1.52 KM |
Images
Nearby Streets
| Name | Average Price | Average Sqft | Distance |
|---|---|---|---|
| Silverdale Road | £ 170,000 | 0 | 0.00 KM |
| Pasture Walk | £ 0 | 0 | 0.00 KM |
| Pennine Gardens | £ 0 | 0 | 0.00 KM |
| Oak Lane | £ 0 | 0 | 0.00 KM |
| Axon Drive | £ 282,500 | 0 | 0.00 KM |
Nearby Transport
| Name | NLC | TLC | Distance |
|---|---|---|---|
| Carlisle | 2118 | CAR | 4.54 KM |
| Wetheral | 7572 | WRL | 6.73 KM |
Nearby Listings
| Address | Price | Type | Score | Distance |
|---|---|---|---|---|
| Pennine Way, Carlisle, Cumbria, CA1 | £ 150,000 | BUY | 6 / 10 | 0.00 KM |
| Pennine Way, Carlisle, Cumbria, CA1 | £ 150,000 | BUY | 6 / 10 | 0.00 KM |
| Pennine Way, Carlisle, Cumbria, CA1 | £ 110,000 | BUY | Unknown | 0.03 KM |
| Rosevale, Harraby, Carlisle, CA1 | £ 125,000 | BUY | 7 / 10 | 0.05 KM |
| Pennine Way, Harraby, Carlisle, CA1 | £ 100,000 | BUY | 6 / 10 | 0.07 KM |
Nearby Properties
| Address | Price | Distance |
|---|---|---|
| 299 Pennine Way | £ 96,000 | 0.06 KM |
| 271 Pennine Way | £ 93,500 | 0.06 KM |
| 319 Pennine Way | £ 85,000 | 0.06 KM |
| 78 Pennine Way | £ 67,000 | 0.06 KM |
| 76 Pennine Way | £ 105,000 | 0.06 KM |