Flat, 98-100 High Street, Gillingham, Kent, ME7 1AX
By HMO Sales Expert
£ 380,000
Reviews
2 out of 5 stars
HMO Sales Expert says ..
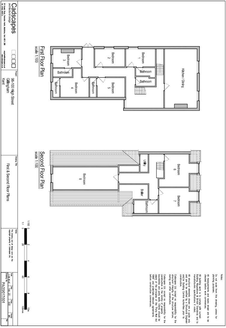
FOR SALE BY ONLINE AUCTION - A fully tenanted eight bedroom, six bathroom HMO let to working professionals producing £59,279.52 per annum ; Leasehold two storey maisonette 8 bedroom, 6 bathroom fully tenanted HMO Communal open plan kitchen and dining space High quality refurbishment...
Property Oracle says ..
This is an eight-bedroom maisonette located on High Street, Gillingham. It features six bathrooms and a modern interior. The property is well-located for transportation and schools. It is in good condition and priced reasonably for the area.
Therefore, we give this property 5 / 10. *Disclaimer: This is our option and does constitute a recommendation or financial advice. Do your own research. *
- Price
- 7
- Condition
- 8
- Location
- 7
- Land
- 1
- Bedrooms
- 8
- Bathrooms
- 6
- Sqft (est)
- 1,020.00
The heatmap indicates the level of crime in the area. The color of the heatmap indicates the crime severity and recency.
Metrics Year-on-Year
- Average area value
- 258,294.00 £Increased by 3.99 %
- Est sale value
- 380,460.00 £Increased by 24.75 %
- Average area rental value
- 1,321.00 £/moDecreased by 18.41 %
- Est letting value
- 1,020.00 £/moUnchanged by 0.00 %
- Est rental Yield
- 6.14 %Decreased by 21.48 %
- Crime Rate
- 22.00 %Unchanged by 0.00 %
Agent Activity
HMO Sales Expert created the listing.
Nearby Schools
| Name | Type | Ofsted | Distance |
|---|---|---|---|
| Oasis Academy Skinner Street | Academy Sponsor Led | Good | 0.15 KM |
| Burnt Oak Primary School & Children'S Centre | Children's Centre | 0.74 KM | |
| Burnt Oak Primary School | Community School | Requires improvement | 0.74 KM |
| Midkent College | Further Education | Good | 0.80 KM |
| Brompton Academy | Academy Sponsor Led | Good | 0.87 KM |
Images
Nearby Streets
| Name | Average Price | Average Sqft | Distance |
|---|---|---|---|
| Sappers Walk | £ 0 | 0 | 0.00 KM |
| Pheonix Court | £ 0 | 0 | 0.00 KM |
| Katherine Court | £ 0 | 0 | 0.00 KM |
| Balmoral Gardens | £ 0 | 0 | 0.00 KM |
| Park View | £ 0 | 0 | 0.00 KM |
Nearby Transport
| Name | NLC | TLC | Distance |
|---|---|---|---|
| Gillingham (Kent) | 5169 | GLM | 0.45 KM |
| Chatham | 5199 | CTM | 2.84 KM |
| Rochester | 5203 | RTR | 3.94 KM |
| Strood (Kent) | 5191 | SOO | 5.15 KM |
| Rainham (Kent) | 5177 | RAI | 7.61 KM |
Nearby Listings
| Address | Price | Type | Score | Distance |
|---|---|---|---|---|
| Flat, 98-100 High Street, Gillingham, Kent, ME7 1AX | £ 380,000 | BUY | 5 / 10 | 0.00 KM |
| West Street, Gillingham | £ 215,000 | BUY | 6 / 10 | 0.03 KM |
| Jeffery Street, Gillingham, Kent, ME7 | £ 260,000 | BUY | 6 / 10 | 0.09 KM |
| Jeffery Street, Gillingham, Kent | £ 240,000 | BUY | Unknown | 0.09 KM |
| Jeffery Street, Gillingham, Kent, ME7 | £ 275,000 | BUY | Unknown | 0.09 KM |
Nearby Properties
| Address | Price | Distance |
|---|---|---|
| 16 Jeffery Street | £ 49,000 | 0.08 KM |
| 14 Jeffery Street | £ 220,000 | 0.08 KM |
| 24 Jeffery Street | £ 130,000 | 0.08 KM |
| 22 Jeffery Street | £ 230,000 | 0.09 KM |
| 31 Skinner Street | £ 19,500 | 0.09 KM |