Stags says ..
A beautifully presented family home with an attached cottage in the heart of a sought-after village with landscaped gardens. Three Bedrooms. Period Featured Sitting Room. Open Plan Kitchen/Dining Room. Attached Two Bedroom Cottage. Landscaped Gardens. Garden Studio. Council Tax Band D & B. EPC Ba...
Property Oracle says ..
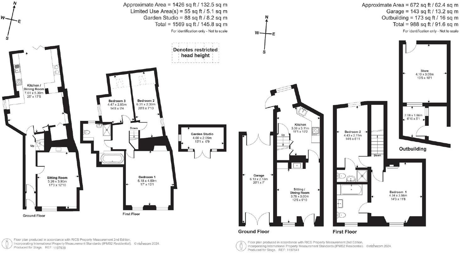
This property is a charming 5 bedroom, 3 bathroom terraced house located in the desirable village of Thorverton, Devon. The property boasts many original features, including exposed beams and a wood burning stove, while also benefitting from modern updates to the kitchen and bathrooms. The asking price of £675,000 is significantly higher than the average price for the area, which is £333,333. However, the larger than average size of the property (1718 sqft vs 793 sqft average) and the inclusion of a well-maintained garden justify this higher price point to some extent. The property is conveniently located near several highly-rated primary schools and is within reasonable commuting distance to Exeter. Overall, this property presents a unique opportunity for buyers seeking a blend of period charm and modern convenience in a sought-after location.
Therefore, we give this property 7 / 10. *Disclaimer: This is our option and does constitute a recommendation or financial advice. Do your own research. *
- Price
- 6
- Condition
- 8
- Location
- 9
- Land
- 7
- Bedrooms
- 5
- Bathrooms
- 3
- Sqft (est)
- 1,717.92
- Lot (est)
- 1,569.38
The heatmap indicates the level of crime in the area. The color of the heatmap indicates the crime severity and recency.
Metrics Year-on-Year
- Average area value
- 663,333.00 £Decreased by 40.28 %
- Est sale value
- 590,964.48 £Increased by 32.31 %
- Average area rental value
- 925.00 £/moIncreased by 12.12 %
- Est letting value
- 0.00 £/mo
- Est rental Yield
- 1.67 %Increased by 87.64 %
- Crime Rate
- 426.00 %Unchanged by 0.00 %
Agent Activity
Stags created the listing.
Nearby Schools
| Name | Type | Ofsted | Distance |
|---|---|---|---|
| Thorverton Church Of England Primary School | Voluntary Controlled School | Good | 0.12 KM |
| Brampford Speke Church Of England Primary School | Voluntary Controlled School | Good | 3.61 KM |
| Stoke Canon Church Of England Primary School And Pre-School | Voluntary Controlled School | Good | 4.78 KM |
| Bickleigh On Exe Church Of England Primary School | Academy Converter | Good | 5.56 KM |
| Silverton Church Of England Primary School | Voluntary Controlled School | Good | 5.60 KM |
Images
Nearby Streets
| Name | Average Price | Average Sqft | Distance |
|---|---|---|---|
| Leonard Square | £ 0 | 0 | 0.00 KM |
| Hulk Lane | £ 0 | 0 | 0.00 KM |
Nearby Transport
| Name | NLC | TLC | Distance |
|---|---|---|---|
| Newton St Cyres | 5828 | NTC | 7.56 KM |
| St James Park (Exeter) | 5751 | SJP | 8.60 KM |
| Exeter St David'S | 3410 | EXD | 8.95 KM |
| Polsloe Bridge | 3422 | POL | 9.03 KM |
| Exeter Central | 5755 | EXC | 9.12 KM |
Nearby Listings
| Address | Price | Type | Score | Distance |
|---|---|---|---|---|
| Bullen Street, Exeter | £ 675,000 | BUY | 7 / 10 | 0.00 KM |
| Bullen Street, Thorverton, Exeter, Devon, EX5 | £ 595,000 | BUY | 7 / 10 | 0.03 KM |
| Bullen Street, Exeter | £ 495,000 | BUY | 7 / 10 | 0.03 KM |
| Bullen Street, Thorverton, Exeter, Devon | £ 300,000 | BUY | 7 / 10 | 0.03 KM |
| Thorverton, Exeter | £ 350,000 | BUY | Unknown | 0.04 KM |
Nearby Properties
| Address | Price | Distance |
|---|---|---|
| Hope Cottage | £ 160,000 | 0.02 KM |
| The Old Forge | £ 198,000 | 0.02 KM |
| Spring Cottage | £ 247,660 | 0.02 KM |
| Ferndale | £ 425,000 | 0.02 KM |
| May Cottage | £ 300,000 | 0.02 KM |