Fine & Country says ..
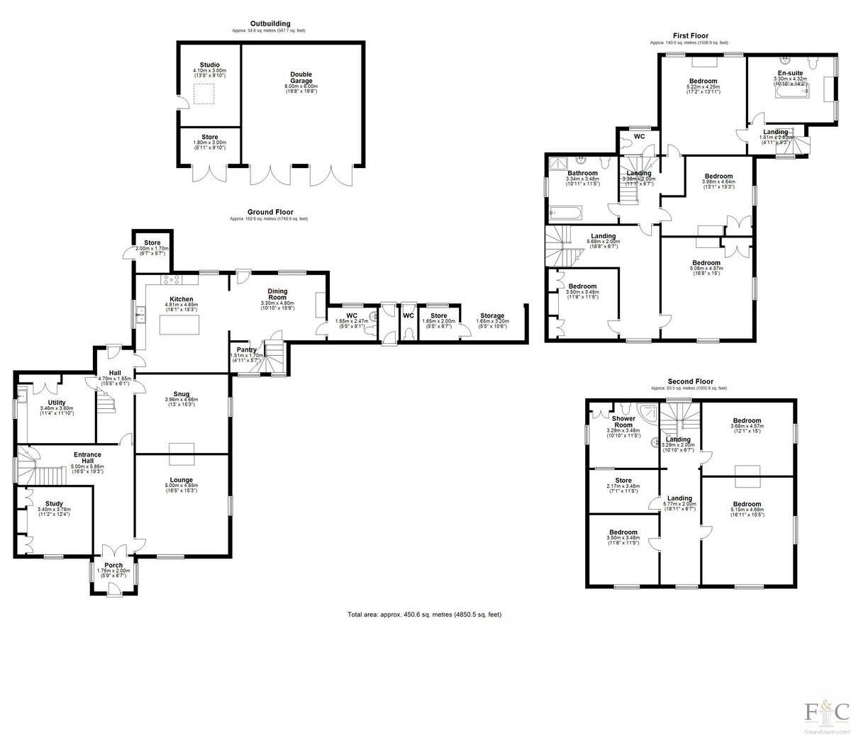
‘A seven bedroom Queen Anne house in Kirby Muxloe.’ The Poplars is a historical component of the Leicestershire village of Kirby Muxloe. Nestled in its own private gardens, it has been gracing its central position on Main Street
Property Oracle says ..
This property is a large, detached family home located in Leicester. The property is in good condition and has been recently updated with a modern kitchen and bathrooms. The property has a large garden and ample parking. The location is good, with easy access to local amenities and schools. The price is slightly above average for the area, but given the size and condition of the property, it is a reasonable price.
Therefore, we give this property 7 / 10. *Disclaimer: This is our option and does constitute a recommendation or financial advice. Do your own research. *
- Price
- 7
- Condition
- 9
- Location
- 7
- Land
- 8
- Bedrooms
- 7
- Bathrooms
- 3
- Sqft (est)
- 4,428.38
- Lot (est)
- 4,850.22
The heatmap indicates the level of crime in the area. The color of the heatmap indicates the crime severity and recency.
Metrics Year-on-Year
- Average area value
- 725,750.00 £Increased by 35.70 %
- Est sale value
- 2,488,749.56 £Increased by 58.76 %
- Average area rental value
- 1,649.00 £/moIncreased by 16.70 %
- Est letting value
- 4,428.38 £/mo
- Est rental Yield
- 2.73 %Decreased by 13.88 %
- Crime Rate
- 8.00 %Unchanged by 0.00 %
Agent Activity
Fine & Country created the listing.
Nearby Schools
| Name | Type | Ofsted | Distance |
|---|---|---|---|
| Kirby Muxloe Primary School | Academy Converter | Good | 0.46 KM |
| Ratby Primary School | Academy Converter | Good | 2.04 KM |
| Stafford Leys Community Primary School | Academy Converter | Good | 2.17 KM |
| Lady Jane Grey Primary School | Academy Converter | Outstanding | 2.25 KM |
| Brookvale Groby Learning Campus | Academy Converter | Outstanding | 2.30 KM |
Images
Nearby Streets
| Name | Average Price | Average Sqft | Distance |
|---|---|---|---|
| Shore Drive | £ 0 | 0 | 0.00 KM |
| The Croft | £ 0 | 0 | 0.00 KM |
| Ratby Lane | £ 0 | 0 | 0.00 KM |
| Ladysmith Road | £ 625,000 | 0 | 0.00 KM |
| Portland Road | £ 695,000 | 0 | 0.00 KM |
Nearby Transport
| Name | NLC | TLC | Distance |
|---|---|---|---|
| Narborough | 1881 | NBR | 7.94 KM |
Nearby Listings
| Address | Price | Type | Score | Distance |
|---|---|---|---|---|
| Main Street, Leicester, LE9 | £ 950,000 | BUY | 7 / 10 | 0.00 KM |
| Main Street, Kirby Muxloe, LE9 | £ 399,950 | BUY | Unknown | 0.05 KM |
| Main Street, Kirby Muxloe, Leicester | £ 399,950 | BUY | 6 / 10 | 0.07 KM |
| Main Street, Kirby Muxloe, Leicester | £ 329,950 | BUY | Unknown | 0.07 KM |
| Main Street, Kirby Muxloe, LE9 | £ 135,000 | BUY | 6 / 10 | 0.12 KM |
Nearby Properties
| Address | Price | Distance |
|---|---|---|
| 45 Armson Avenue | £ 130,000 | 0.14 KM |
| 37 Armson Avenue | £ 180,000 | 0.14 KM |
| 57 Armson Avenue | £ 249,995 | 0.14 KM |
| 23 Armson Avenue | £ 167,500 | 0.14 KM |
| 1 Armson Avenue | £ 300,000 | 0.14 KM |