Dexters says ..
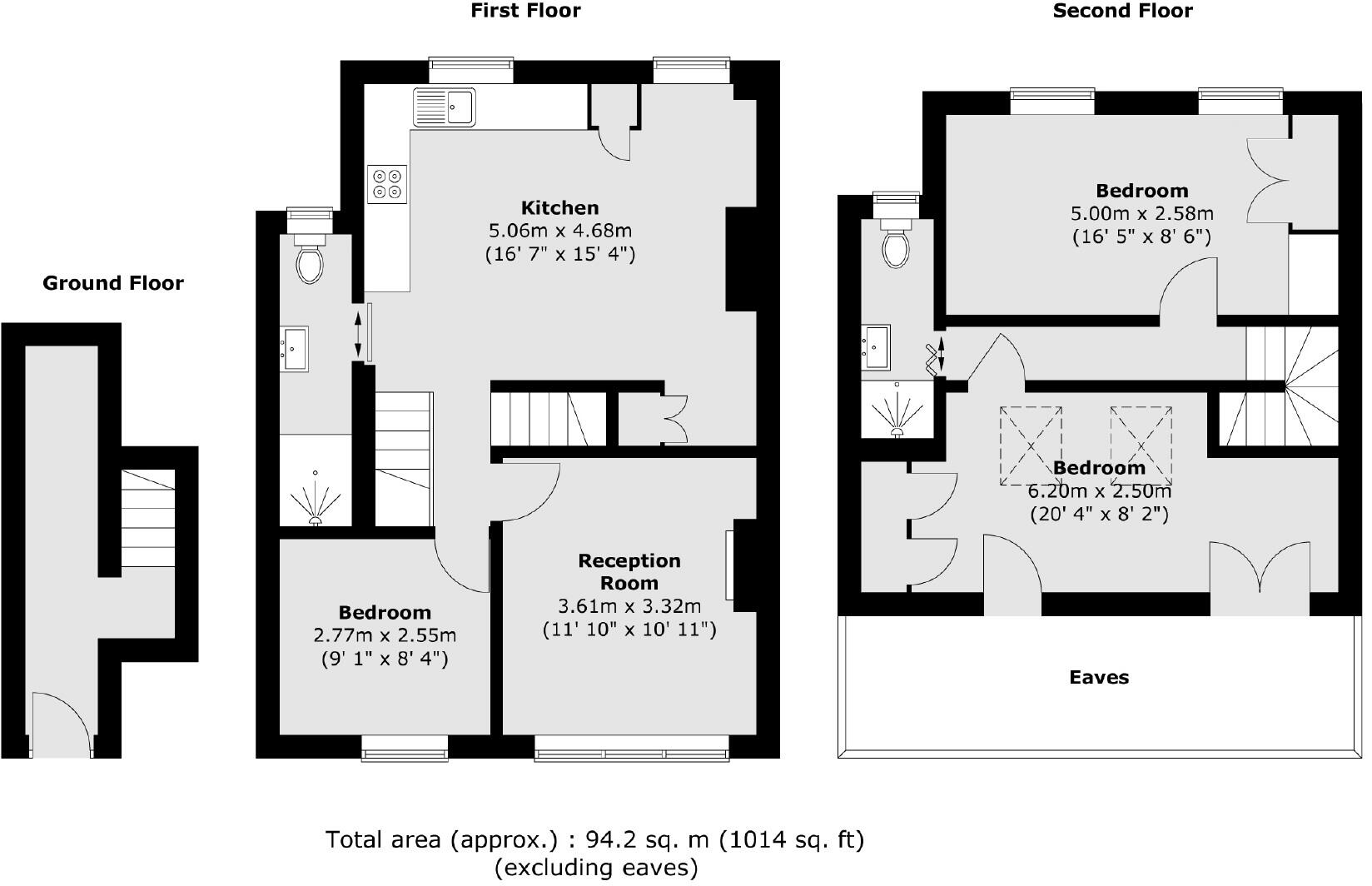
A truly stunning and exquisite example of an upper maisonette positioned over the first and top floor of this handsome Victorian building with a footprint that spans to 1041 sqft. With an immaculate interior, the property benefits from a superb open-plan kitchen/reception room, three bedrooms and...
Property Oracle says ..
This three-bedroom maisonette is located on Ashbourne Road in Tooting, a desirable area in Merton, South West London. The property benefits from being close to excellent transport links, with Tooting station just a short walk away, providing easy access to central London. The area also boasts a number of well-regarded schools, including Graveney School, rated as Outstanding by Ofsted. The maisonette itself appears to be in good condition, with a modern kitchen and updated bathrooms. While the images do not show the exterior, the street view shows a well-maintained property. The list price of £550,000 is slightly below the average price for the area (£582,591), and considering the size (599 sqft) and location, it could be considered reasonable value. However, a direct comparison is difficult due to the lack of sqft data for nearby properties. The property also benefits from a plot size of 1014 sqft, which is a considerable amount of land for a maisonette in this location.
Therefore, we give this property 8 / 10. *Disclaimer: This is our option and does constitute a recommendation or financial advice. Do your own research. *
- Price
- 8
- Condition
- 8
- Location
- 9
- Land
- 7
- Bedrooms
- 3
- Bathrooms
- 2
- Sqft (est)
- 599.06
- Lot (est)
- 1,014.00
The heatmap indicates the level of crime in the area. The color of the heatmap indicates the crime severity and recency.
Metrics Year-on-Year
- Average area value
- 685,278.00 £Increased by 17.39 %
- Est sale value
- 334,275.48 £Decreased by 18.30 %
- Average area rental value
- 2,413.00 £/moDecreased by 6.91 %
- Est letting value
- 599.06 £/moDecreased by 66.67 %
- Est rental Yield
- 4.23 %Decreased by 20.64 %
- Crime Rate
- 3.00 %Unchanged by 0.00 %
Agent Activity
Dexters created the listing.
Nearby Schools
| Name | Type | Ofsted | Distance |
|---|---|---|---|
| Links Primary School | Community School | Good | 0.34 KM |
| Lavender Children'S Centre | Children's Centre Linked Site | 0.47 KM | |
| Furzedown Primary School | Community School | Good | 0.69 KM |
| Gorringe Park Primary School | Community School | Good | 0.77 KM |
| Graveney School | Academy Converter | Outstanding | 0.83 KM |
Images
Nearby Streets
| Name | Average Price | Average Sqft | Distance |
|---|---|---|---|
| London Road | £ 0 | 0 | 0.00 KM |
| Victoria Road | £ 608,333 | 0 | 0.00 KM |
| Saint Benedict's Close | £ 335,000 | 0 | 0.00 KM |
| Harbour Close | £ 0 | 0 | 0.00 KM |
| Hasty Close | £ 0 | 0 | 0.00 KM |
Nearby Transport
| Name | NLC | TLC | Distance |
|---|---|---|---|
| Tooting | 5389 | TOO | 0.35 KM |
| Mitcham Eastfields | 5069 | MTC | 1.30 KM |
| Streatham Common | 5384 | SRC | 2.46 KM |
| Balham | 5399 | BAL | 2.78 KM |
| Mitcham Junction | 5427 | MIJ | 2.89 KM |
Nearby Listings
| Address | Price | Type | Score | Distance |
|---|---|---|---|---|
| Ashbourne Road, Tooting | £ 400,000 | BUY | 6 / 10 | 0.00 KM |
| Ashbourne Road, Mitcham, CR4 | £ 425,000 | BUY | 6 / 10 | 0.00 KM |
| Ashbourne Road, Tooting | £ 550,000 | BUY | 8 / 10 | 0.00 KM |
| Tynemouth Road, Mitcham, Surrey | £ 385,000 | BUY | 5 / 10 | 0.04 KM |
| Tynemouth Road, Mitcham, CR4 | £ 400,000 | BUY | 6 / 10 | 0.05 KM |
Nearby Properties
| Address | Price | Distance |
|---|---|---|
| 76 Ashbourne Road | £ 500,000 | 0.06 KM |
| 60a Ashbourne Road | £ 125,500 | 0.06 KM |
| 80 Ashbourne Road | £ 215,000 | 0.06 KM |
| 36 Ashbourne Road | £ 95,000 | 0.06 KM |
| 20 Ashbourne Road | £ 136,000 | 0.06 KM |