Hunters says ..
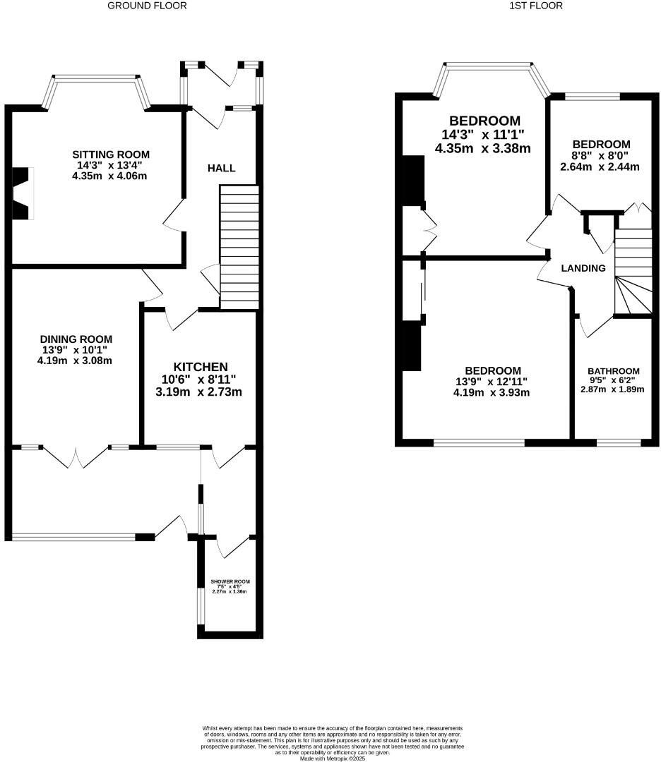
Situated on the charming Hillcrest Road in Chatham, this delightful mid-terrace house presents an excellent opportunity for families seeking a comfortable and convenient home. Boasting three well-proportioned bedrooms, this property is designed to accommodate family living with ease. Th...
Property Oracle says ..
This is a three-bedroom terraced house on Hillcrest Road, Chatham. The property offers a good amount of living space at 919.24 sq ft and includes two bathrooms. While the property requires some modernisation, it benefits from a well-maintained garden. The location is convenient for accessing local amenities and transport links, although potential buyers should be aware of the Ofsted rating of nearby schools. The asking price of £215,000 represents good value for money compared to the average price per square foot in the area.
Therefore, we give this property 6 / 10. *Disclaimer: This is our option and does constitute a recommendation or financial advice. Do your own research. *
- Price
- 8
- Condition
- 5
- Location
- 7
- Land
- 7
- Bedrooms
- 3
- Bathrooms
- 2
- Sqft (est)
- 919.24
The heatmap indicates the level of crime in the area. The color of the heatmap indicates the crime severity and recency.
Metrics Year-on-Year
- Average area value
- 281,500.00 £Increased by 3.99 %
- Est sale value
- 307,026.16 £Increased by 3.73 %
- Average area rental value
- 1,328.00 £/moIncreased by 4.08 %
- Est letting value
- 919.24 £/moUnchanged by 0.00 %
- Est rental Yield
- 5.66 %Unchanged by 0.00 %
- Crime Rate
- 6.00 %Unchanged by 0.00 %
Agent Activity
Hunters created the listing.
Nearby Schools
| Name | Type | Ofsted | Distance |
|---|---|---|---|
| Blue Skies School | Other Independent Special School | Requires improvement | 0.13 KM |
| Balfour Junior School | Academy Converter | Good | 0.57 KM |
| St Michael'S Rc Primary School | Voluntary Aided School | Good | 0.57 KM |
| St John'S Church Of England Infant School | Academy Converter | Good | 0.61 KM |
| St John Fisher Catholic Comprehensive School | Voluntary Aided School | Good | 0.62 KM |
Images
Nearby Streets
| Name | Average Price | Average Sqft | Distance |
|---|---|---|---|
| Mozart Court | £ 0 | 0 | 0.00 KM |
| St Alban's Walk | £ 0 | 0 | 0.00 KM |
| Glencoe Road | £ 0 | 0 | 0.00 KM |
| The Mount | £ 0 | 0 | 0.00 KM |
| New Road | £ 231,105 | 0 | 0.00 KM |
Nearby Transport
| Name | NLC | TLC | Distance |
|---|---|---|---|
| Chatham | 5199 | CTM | 0.81 KM |
| Rochester | 5203 | RTR | 1.78 KM |
| Strood (Kent) | 5191 | SOO | 3.44 KM |
| Gillingham (Kent) | 5169 | GLM | 3.58 KM |
| Cuxton | 5201 | CUX | 6.50 KM |
Nearby Listings
| Address | Price | Type | Score | Distance |
|---|---|---|---|---|
| Hillcrest Road, Chatham | £ 215,000 | BUY | 6 / 10 | 0.00 KM |
| Hillcrest Road, Chatham | £ 310,000 | BUY | 5 / 10 | 0.00 KM |
| Hillcrest Road, Chatham | £ 310,000 | BUY | 6 / 10 | 0.00 KM |
| Purbeck Road, Chatham, ME4 | £ 95,000 | BUY | 6 / 10 | 0.07 KM |
| Kingswood Avenue, Chatham, Kent | £ 375,000 | BUY | 6 / 10 | 0.10 KM |
Nearby Properties
| Address | Price | Distance |
|---|---|---|
| 19 Hillcrest Road | £ 159,000 | 0.04 KM |
| 18 Hillcrest Road | £ 230,000 | 0.04 KM |
| 19a Hillcrest Road | £ 175,000 | 0.04 KM |
| 19b Hillcrest Road | £ 173,000 | 0.04 KM |
| 4 Hillcrest Road | £ 230,000 | 0.04 KM |