Coulby Conduct says ..
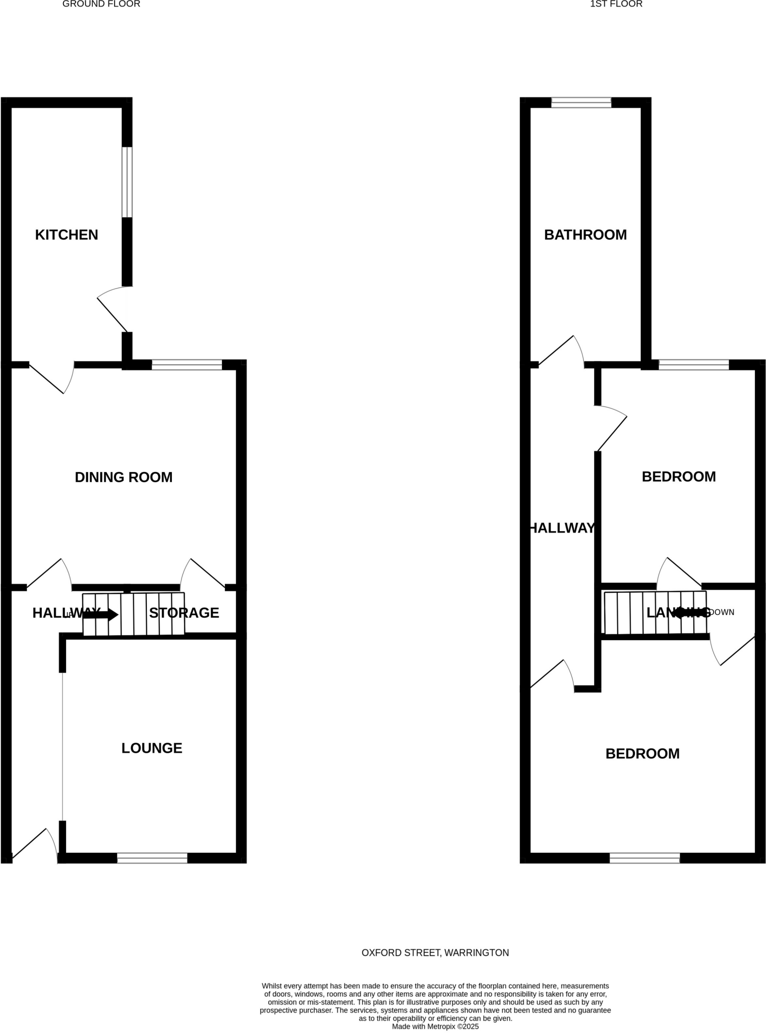
Offered for sale with no onward chain is this mid terraced home situated in the popular residential location of Latchford, close too Victoria Park and Warrington town centre. With accommodation comprising entrance hall, two reception rooms and kitchen to the ground floor whilst upstairs are two ...
Property Oracle says ..
The property is located on Oxford Street, in a residential area of Warrington, Cheshire. Several schools with ‘Good’ Ofsted ratings are within a reasonable distance, including Priestley College and Latchford St James Cofe Primary School. Warrington Central train station is approximately 1.71 km away, offering convenient transportation links. The property is a terraced house. Based on the images, the interior appears dated and may benefit from some modernization. The kitchen and bathroom, while functional, show signs of wear. The carpets and wall coverings also suggest a need for updating. The listing does not specify the plot size, but terraced properties typically have limited garden space. With a list price of £150,000 and a size of 730 sqft, the price per square foot is approximately £205. This is lower than the average price per square foot in the area (£261). The average property price in the area is £253,150, and the average price on Oxford Street is £143,750. Given the condition of the property, the price seems reasonable.
Therefore, we give this property 5 / 10. *Disclaimer: This is our option and does constitute a recommendation or financial advice. Do your own research. *
- Price
- 7
- Condition
- 5
- Location
- 7
- Land
- 3
- Bedrooms
- 2
- Bathrooms
- 1
- Sqft (est)
- 730.00
The heatmap indicates the level of crime in the area. The color of the heatmap indicates the crime severity and recency.
Metrics Year-on-Year
- Average area value
- 183,878.00 £Decreased by 22.92 %
- Est sale value
- 156,220.00 £Decreased by 17.37 %
- Average area rental value
- 1,019.00 £/moIncreased by 15.93 %
- Est letting value
- 730.00 £/mo
- Est rental Yield
- 6.65 %Increased by 50.45 %
- Crime Rate
- 8.00 %Unchanged by 0.00 %
Agent Activity
Coulby Conduct marked this listing as sold.
Coulby Conduct created the listing.
Nearby Schools
| Name | Type | Ofsted | Distance |
|---|---|---|---|
| Priestley College | Academy 16-19 Converter | Good | 0.56 KM |
| Latchford St James Cofe Primary School | Voluntary Aided School | Good | 0.93 KM |
| Our Lady'S Catholic Primary School | Voluntary Aided School | Good | 1.05 KM |
| St Elphin'S (Fairfield) Cofe Voluntary Aided Primary School | Voluntary Aided School | Good | 1.17 KM |
| St Thomas' Cofe Primary School | Voluntary Aided School | Good | 1.26 KM |
Images
Nearby Streets
| Name | Average Price | Average Sqft | Distance |
|---|---|---|---|
| Oxford Street | £ 143,750 | 0 | 0.00 KM |
| Saint Mary Street | £ 190,000 | 0 | 0.00 KM |
| Hughes Street | £ 80,000 | 0 | 0.00 KM |
| Clifton Street | £ 0 | 0 | 0.00 KM |
| Surrey Street | £ 0 | 0 | 0.00 KM |
Nearby Transport
| Name | NLC | TLC | Distance |
|---|---|---|---|
| Warrington Central | 2390 | WAC | 1.71 KM |
| Warrington Bank Quay | 2384 | WBQ | 2.44 KM |
| Padgate | 2387 | PDG | 3.66 KM |
| Warrington West | 6583 | WAW | 6.48 KM |
| Birchwood | 2304 | BWD | 6.96 KM |
Nearby Listings
| Address | Price | Type | Score | Distance |
|---|---|---|---|---|
| Oxford Street, Warrington, Cheshire, WA4 | £ 160,000 | BUY | 6 / 10 | 0.00 KM |
| 43 OXFORD STREET, WARRINGTON | £ 90,000 | BUY | 5 / 10 | 0.00 KM |
| Oxford Street, Warrington | £ 150,000 | BUY | 5 / 10 | 0.00 KM |
| Oxford Street, Warrington, Cheshire, WA4 | £ 180,000 | BUY | 6 / 10 | 0.00 KM |
| Oxford Street, Warrington, Cheshire, WA4 | £ 169,995 | BUY | 6 / 10 | 0.00 KM |
Nearby Properties
| Address | Price | Distance |
|---|---|---|
| 11 Oxford Street | £ 105,000 | 0.00 KM |
| 3 Oxford Street | £ 102,500 | 0.00 KM |
| 52 Oxford Street | £ 37,500 | 0.00 KM |
| 39 Oxford Street | £ 112,500 | 0.00 KM |
| 5 Oxford Street | £ 115,000 | 0.00 KM |