Craigton Road, London
JO

Craigton Road, London

By John Payne

£ 850,000

Reviews

3 out of 5 stars

John Payne says ..

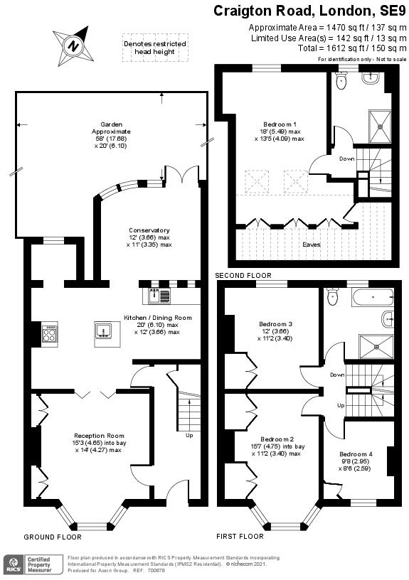
A simply stunning example of an extended four bedroom Corbett house in the heart of Eltham Park, within a short walk of Eltham Station, Tudor Barn & the highly sought after Gordon Primary School. The home has been incredibly well maintained by the current owners and is offered in i...

Property Oracle says ..

This four-bedroom, two-bathroom terraced house in Eltham North, Greenwich, presents a compelling offering for families or those seeking a well-located property in a desirable London area. The property benefits from excellent transport links via its proximity to Eltham station, and is within easy reach of highly-regarded primary schools like Gordon Primary School. This significantly enhances its appeal and potential resale value. The photos reveal a well-maintained interior with a modern kitchen and bathrooms. While specific plot size information is absent, a substantial garden is clearly visible, adding considerable value in the London housing market. This feature, along with the property’s condition and convenient location, makes it competitive within the local market. The asking price falls within the expected range for properties of this type in the area, though potential buyers should undertake their own thorough assessment and comparison against other properties to determine its value and desirability to them personally. The absence of sqft information for nearby properties makes a precise comparison challenging, but similar properties have been sold for similar or higher amounts in the surrounding area. The lack of plot size in the property listing should be explored further by any prospective buyer.

Therefore, we give this property 7 / 10. *Disclaimer: This is our option and does constitute a recommendation or financial advice. Do your own research. *

Price
7
Condition
7
Location
8
Land
6
Bedrooms
4
Bathrooms
2
Sqft (est)
1,614.59

The heatmap indicates the level of crime in the area. The color of the heatmap indicates the crime severity and recency.

Metrics Year-on-Year

Average area value
582,857.00 £
Decreased by 8.06 %
from 633,958.00 £
Est sale value
1,453,131.00 £
Increased by 66.98 %
from 870,264.01 £
Average area rental value
1,700.00 £/mo
Decreased by 10.85 %
from 1,907.00 £/mo
Est letting value
3,229.18 £/mo
Increased by 100.00 %
from 1,614.59 £/mo
Est rental Yield
3.50 %
Decreased by 3.05 %
from 3.61 %
Crime Rate
3.00 %
Unchanged by 0.00 %
from 3.00 %

Agent Activity

  • John Payne created the listing.

Nearby Schools

NameTypeOfstedDistance
Gordon Primary SchoolCommunity SchoolGood0.20 KM
Eltham Church Of England Primary SchoolVoluntary Aided SchoolOutstanding0.75 KM
Streetvibes Media AcademyOther Independent SchoolGood0.82 KM
Children'S Centre Services At Eltham CentreChildren's Centre Linked Site0.82 KM
St Thomas More Catholic Primary SchoolVoluntary Aided SchoolGood1.02 KM

Images

Picture No. 42 Reception Room Kitchen Kitchen Picture No. 61 Picture No. 44 Picture No. 54 Reception Room Picture No. 49 Picture No. 55 Bathroom Entrance Hall Dining Room Picture No. 43 Picture No. 53 Picture No. 45 Picture No. 46 Picture No. 47 Kitchen Picture No. 58 Picture No. 59 Picture No. 48 Picture No. 60 Picture No. 52 MAP

Nearby Streets

NameAverage PriceAverage SqftDistance
Glenlea Path £ 000.00 KM
Rochester Way Relief Road £ 500,00000.00 KM
Well Hall Road £ 700,00000.00 KM
Well Hall Roundabout £ 000.00 KM
Everest Road £ 875,00000.00 KM

Nearby Transport

NameNLCTLCDistance
Eltham5103ELW0.22 KM
Mottingham5118MTG1.96 KM
Kidbrooke5108KDB2.88 KM
New Eltham5119NEH2.90 KM
Falconwood5137FCN2.90 KM

Nearby Listings

AddressPriceTypeScoreDistance
Craigton Road, London £ 850,000BUY7 / 100.00 KM
Earlshall Road, Eltham SE9 £ 850,000BUYUnknown0.08 KM
Dunvegan Road, London, SE9 £ 725,000BUY6 / 100.12 KM
Greenvale Road, London £ 899,950BUY7 / 100.13 KM
Dunvegan Road, Eltham SE9 £ 725,000BUY6 / 100.14 KM

Nearby Properties

AddressPriceDistance
73a Greenvale Road £ 785,0000.05 KM
19 Greenvale Road £ 334,9950.05 KM
29 Greenvale Road £ 825,0000.05 KM
69 Greenvale Road £ 280,0000.05 KM
35 Greenvale Road £ 460,0000.05 KM