Isis Street Earlsfield
MA

Isis Street Earlsfield

By Maalems

£ 625,000

Reviews

3 out of 5 stars

Maalems says ..

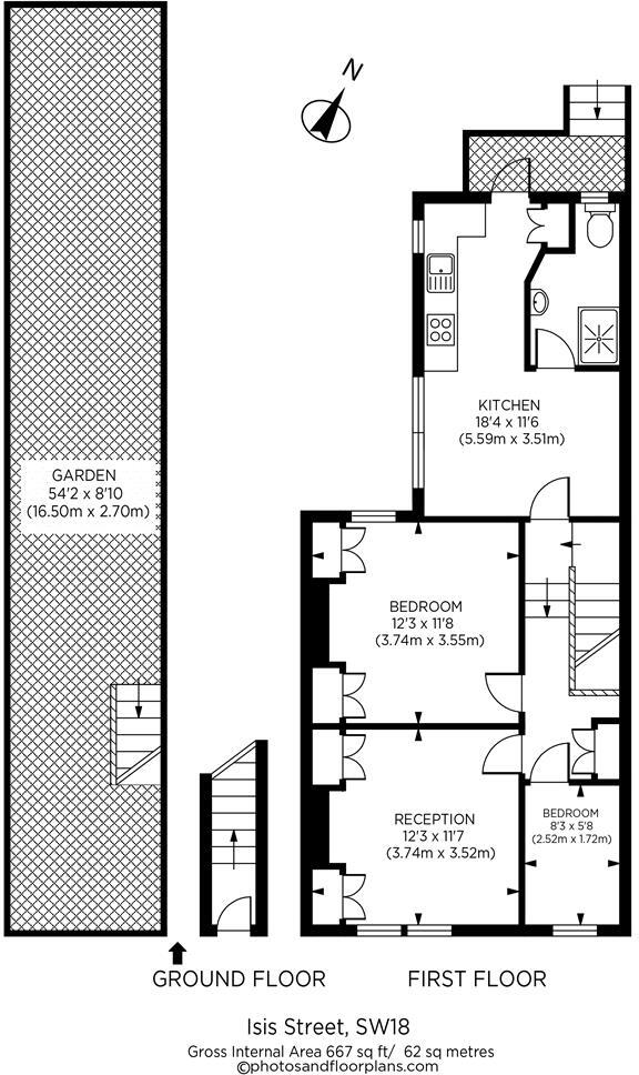
A bright and airy two bedroom (one double and one single) first floor period maisonette situated on a popular street which is within the heart of Earlsfield and only moments from the local amenities and the Mainline Station with its fast links to London Waterloo. The property comprises, in brief,...

Property Oracle says ..

This is a 2-bedroom maisonette located on Isis Street in Earlsfield, London. The property benefits from a modern kitchen and bathroom, a garden with a shed, and proximity to good schools and transport links. While the property appears to be in generally good condition, some areas may benefit from cosmetic updating. The asking price of £625,000 is reasonable for the area, considering the property’s location and features. The property is located close to Earlsfield Station (0.38km) which provides good transport links into the city.

Therefore, we give this property 7 / 10. *Disclaimer: This is our option and does constitute a recommendation or financial advice. Do your own research. *

Price
7
Condition
7
Location
8
Land
6
Bedrooms
2
Bathrooms
1
Sqft (est)
345.41

The heatmap indicates the level of crime in the area. The color of the heatmap indicates the crime severity and recency.

Metrics Year-on-Year

Average area value
684,091.00 £
Decreased by 0.97 %
from 690,757.00 £
Est sale value
282,890.79 £
Decreased by 1.68 %
from 287,726.53 £
Average area rental value
2,456.00 £/mo
Increased by 5.54 %
from 2,327.00 £/mo
Est letting value
690.82 £/mo
Unchanged by 0.00 %
from 690.82 £/mo
Est rental Yield
4.31 %
Increased by 6.68 %
from 4.04 %
Crime Rate
4.00 %
Unchanged by 0.00 %
from 4.00 %

Agent Activity

  • Maalems created the listing.

Nearby Schools

NameTypeOfstedDistance
The Chelsea Group Of ChildrenOther Independent Special SchoolOutstanding0.14 KM
Earlsfield Primary SchoolCommunity SchoolOutstanding0.22 KM
Tram House SchoolOther Independent Special SchoolOutstanding0.26 KM
Garratt Park SchoolCommunity Special SchoolGood0.27 KM
Beatrix Potter Primary SchoolCommunity SchoolGood0.63 KM

Images

13A-Isis-Street-11202025_143622edit.jpg 13a_isis_street_image1_19838_4 copy.jpg 13A-Isis-Street-11202025_143854edit.jpg Isis-Street-Earlsfield-SW18-11232025_175944.jpg 13A-Isis-Street-11202025_143705edit.jpg 13a_isis_street_image2_19838_4 copy.jpg 13a_isis_street_image3_19838_4 copy.jpg 13A-Isis-Street-11202025_143836edit.jpg 13A-Isis-Street-11202025_143810edit.jpg Isis-Street-Earlsfield-SW18-11232025_175929.jpg Isis-Street-Earlsfield-SW18-11232025_175959.jpg 13A-Isis-Street-11202025_143647edit.jpg 13A-Isis-Street-11202025_143754edit.jpg 13A-Isis-Street-11202025_143730edit.jpg 13A-Isis-Street-11202025_143952edit.jpg

Nearby Streets

NameAverage PriceAverage SqftDistance
Squarey Street £ 000.00 KM
Duntshill Road £ 000.00 KM
Wells Place £ 000.00 KM
Atkinson Morley Avenue £ 000.00 KM
Saint Ann's Hill £ 708,33300.00 KM

Nearby Transport

NameNLCTLCDistance
Earlsfield5584EAD0.38 KM
Haydons Road5289HYR1.60 KM
Wandsworth Town5576WNT2.41 KM
Wandsworth Common5395WSW2.59 KM
Wimbledon5578WIM3.05 KM

Nearby Listings

AddressPriceTypeScoreDistance
Isis Street Earlsfield £ 625,000BUY7 / 100.00 KM
Isis Street, Earlsfield £ 650,000BUY8 / 100.04 KM
Isis Street, Earlsfield £ 675,000BUY7 / 100.04 KM
Isis Street, Earlsfield, London, SW18 £ 600,000BUY5 / 100.07 KM
Isis Street, Earlsfield, London, SW18 £ 950,000BUY6 / 100.07 KM

Nearby Properties

AddressPriceDistance
21 Isis Street £ 280,0000.03 KM
11 Isis Street £ 700,0000.03 KM
47 Isis Street £ 1,325,0000.03 KM
19a Isis Street £ 665,0000.03 KM
17a Isis Street £ 330,4000.03 KM