MC
Tur Langton, Market Harborough
By McCallum Marsh
£ 695,000
Reviews
3 out of 5 stars
McCallum Marsh says ..
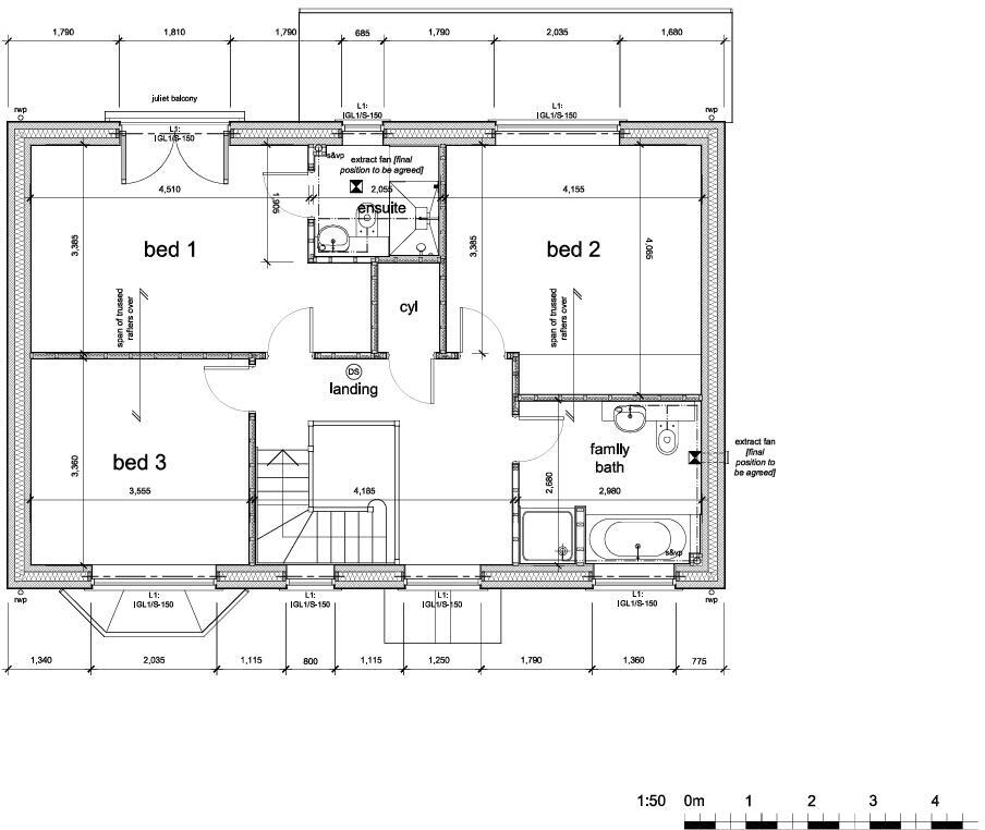
Brand new High Specification home due for completion end Summer 2025.
Property Oracle says ..
Therefore, we give this property 7 / 10. *Disclaimer: This is our option and does constitute a recommendation or financial advice. Do your own research. *
- Price
- 7
- Condition
- 9
- Location
- 7
- Land
- 7
- Bedrooms
- 3
- Bathrooms
- 2
- Sqft (est)
- 764.35
The heatmap indicates the level of crime in the area. The color of the heatmap indicates the crime severity and recency.
Metrics Year-on-Year
- Average area value
- 933,929.00 £Increased by 71.28 %
- Est sale value
- 405,105.50 £Increased by 76.08 %
- Average area rental value
- 1,223.00 £/moIncreased by 13.24 %
- Est letting value
- 0.00 £/mo
- Est rental Yield
- 1.57 %Decreased by 34.03 %
- Crime Rate
- 3.00 %Unchanged by 0.00 %
from 545,255.00 £
from 230,069.35 £
from 1,080.00 £/mo
from 0.00 £/mo
from 2.38 %
from 3.00 %
Agent Activity
McCallum Marsh marked this listing as sold.
McCallum Marsh created the listing.
Nearby Schools
| Name | Type | Ofsted | Distance |
|---|---|---|---|
| Church Langton Church Of England Primary School | Academy Converter | 2.22 KM | |
| Kibworth Mead Academy | Academy Converter | Requires improvement | 5.71 KM |
| Kibworth Church Of England Primary School | Academy Converter | 5.71 KM | |
| Foxton Primary School | Community School | Good | 5.93 KM |
| The Robert Smyth Academy | Academy Converter | Good | 7.25 KM |
Images
Nearby Transport
| Name | NLC | TLC | Distance |
|---|---|---|---|
| Market Harborough | 1909 | MHR | 8.59 KM |
Nearby Listings
| Address | Price | Type | Score | Distance |
|---|---|---|---|---|
| Tur Langton, Market Harborough | £ 650,000 | BUY | 7 / 10 | 0.00 KM |
| Tur Langton, Market Harborough | £ 695,000 | BUY | 7 / 10 | 0.00 KM |
| Tur Langton, Market Harborough | £ 799,950 | BUY | 6 / 10 | 0.00 KM |
| Tur Langton, Market Harborough | £ 650,000 | BUY | 7 / 10 | 0.00 KM |
| Woodbine Cottage, Shangton Road, Tur Langton | £ 685,000 | BUY | 7 / 10 | 0.24 KM |
Nearby Properties
| Address | Price | Distance |
|---|---|---|
| Ashbrooke House | £ 590,000 | 0.18 KM |
| Fernie House | £ 425,000 | 0.18 KM |
| Chestnut House | £ 675,000 | 0.18 KM |
| Shangton House | £ 550,000 | 0.18 KM |
| Jasmine Cottage | £ 240,000 | 0.18 KM |