Kingsmead Avenue, Kingsbury, NW9
By Aspect Property
£ 799,950
Reviews
3 out of 5 stars
Aspect Property says ..
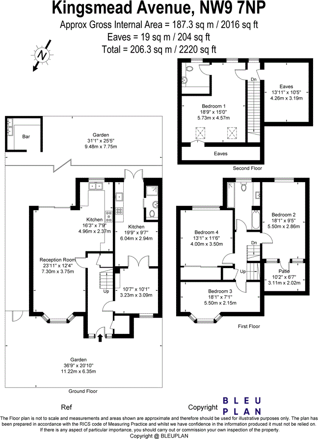
A modern and well presented family home boasting over 2000sqft of living space arrange over three floors.
Property Oracle says ..
This four-bedroom, three-bathroom house on Kingsmead Avenue, Kingsbury (NW9 7NL), is presented as a modern, well-presented family home. The property benefits from a recent renovation or refurbishment, evident in the updated kitchens and bathrooms, as well as the contemporary design elements throughout. The interior is largely bright and airy, showing quality materials and finishes. The property boasts a pleasant garden area with artificial turf and a wooden structure, suitable for smaller families. The property is not far from local amenities and good schools, with transportation to other areas of London being possible but not immediately at the front door. The listed price, while on the higher side, may reflect both the renovated state of the property and the desirable nature of its location in NW9. Potential buyers should carefully review their own requirements when considering transport, access to amenities and outdoor space in relation to the asking price.
Therefore, we give this property 6 / 10. *Disclaimer: This is our option and does constitute a recommendation or financial advice. Do your own research. *
- Price
- 7
- Condition
- 8
- Location
- 7
- Land
- 4
- Bedrooms
- 4
- Bathrooms
- 3
- Sqft (est)
- 2,220.59
The heatmap indicates the level of crime in the area. The color of the heatmap indicates the crime severity and recency.
Metrics Year-on-Year
- Average area value
- 366,658.00 £Decreased by 31.14 %
- Est sale value
- 1,136,942.08 £Decreased by 8.90 %
- Average area rental value
- 3,017.00 £/moIncreased by 83.18 %
- Est letting value
- 8,882.36 £/moIncreased by 300.00 %
- Est rental Yield
- 9.87 %Increased by 166.04 %
- Crime Rate
- 4.00 %Unchanged by 0.00 %
Agent Activity
Aspect Property marked this listing as sold.
Aspect Property created the listing.
Nearby Schools
| Name | Type | Ofsted | Distance |
|---|---|---|---|
| Woodfield School | Academy Special Converter | Outstanding | 0.58 KM |
| Church Lane Children'S Centre | Children's Centre | 0.64 KM | |
| Fryent Primary School | Community School | Good | 0.68 KM |
| Oliver Goldsmith Primary School | Community School | Good | 0.96 KM |
| Bnos Beis Yaakov Primary School | Other Independent School | Good | 1.08 KM |
Images
Nearby Streets
| Name | Average Price | Average Sqft | Distance |
|---|---|---|---|
| Hillway | £ 0 | 0 | 0.00 KM |
| Holly Grove | £ 0 | 0 | 0.00 KM |
| Laburnum Grove | £ 0 | 0 | 0.00 KM |
| Stewart Close | £ 825,000 | 0 | 0.00 KM |
| Green Close | £ 0 | 0 | 0.00 KM |
Nearby Transport
| Name | NLC | TLC | Distance |
|---|---|---|---|
| Hendon | 1522 | HEN | 2.29 KM |
| Wembley Stadium | 1509 | WCX | 3.73 KM |
| Stonebridge Park | 1454 | SBP | 3.88 KM |
| Harlesden | 1521 | HDN | 4.24 KM |
| Mill Hill Broadway | 1527 | MIL | 4.43 KM |
Nearby Listings
| Address | Price | Type | Score | Distance |
|---|---|---|---|---|
| Kingsmead Avenue, KINGSBURY, NW9 | £ 650,000 | BUY | 6 / 10 | 0.08 KM |
| Wood Close, London, NW9 | £ 575,000 | BUY | 6 / 10 | 0.09 KM |
| Reeves Avenue, Kingsbury, London, NW9 | £ 265,000 | BUY | 6 / 10 | 0.11 KM |
| Kingsmead Avenue, Kingsbury | £ 574,999 | BUY | 7 / 10 | 0.12 KM |
| Kingsmead Avenue, London, NW9 | £ 650,000 | BUY | 7 / 10 | 0.13 KM |
Nearby Properties
| Address | Price | Distance |
|---|---|---|
| 39 Kingsmead Avenue | £ 285,000 | 0.01 KM |
| 37 Kingsmead Avenue | £ 334,000 | 0.01 KM |
| 27 Kingsmead Avenue | £ 367,000 | 0.01 KM |
| 23 Kingsmead Avenue | £ 770,000 | 0.01 KM |
| 63 Kingsmead Avenue | £ 477,500 | 0.01 KM |