Gibson Street, Wrexham
By Bowen Son and Watson with Kent Jones
£ 115,000
Reviews
2 out of 5 stars
Bowen Son and Watson with Kent Jones says ..
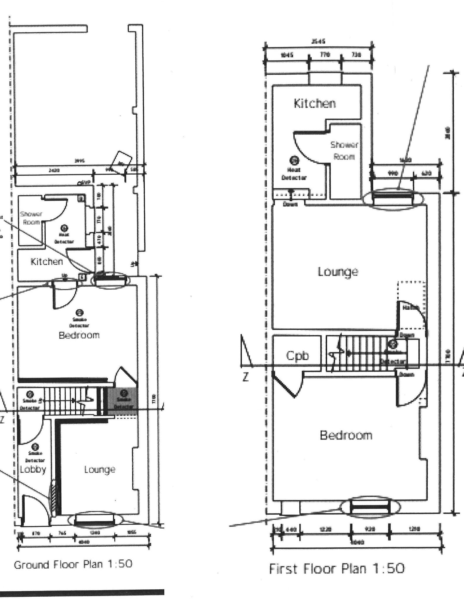
INVESTMENT OPPORTUNITY. A traditional end of terrace house converted into two self-contained one bedroom apartments in a convenient location close to Bellevue Park. EPC Ratings - Ground Floor Flat A - 72|C. First Floor Flat B - 66|D.
Property Oracle says ..
This two-bedroom, two-bathroom terraced house in Gibson Street, Wrexham, is listed at £115,000. The property’s location is convenient, being close to Wrexham town centre and offering easy access to local amenities such as schools and transportation. Wrexham Central and Wrexham General train stations are within walking distance, providing excellent public transport links. The property includes a small backyard, providing some outdoor space.
However, the property’s condition suggests a need for modernisation. The kitchen and bathrooms appear dated and require updating. The provided photographs suggest an overall condition that is adequate but not exceptional. Potential buyers should anticipate the cost of renovations and repairs.
Given the comparable properties in the area, and the need for potential updating, the listed price of £115,000 could be considered fair but not exceptionally good value. The lack of complete data for nearby properties makes a precise square-foot analysis challenging. A thorough survey is recommended before purchase to determine the extent of any necessary repairs or upgrades.
Therefore, we give this property 5 / 10. *Disclaimer: This is our option and does constitute a recommendation or financial advice. Do your own research. *
- Price
- 7
- Condition
- 5
- Location
- 7
- Land
- 3
- Bedrooms
- 2
- Bathrooms
- 2
- Sqft (est)
- 914.61
The heatmap indicates the level of crime in the area. The color of the heatmap indicates the crime severity and recency.
Metrics Year-on-Year
- Average area value
- 502,500.00 £Increased by 40.73 %
- Est sale value
- 411,574.50 £Increased by 89.08 %
- Average area rental value
- 961.00 £/moDecreased by 1.13 %
- Est letting value
- 0.00 £/mo
- Est rental Yield
- 2.29 %Decreased by 29.97 %
- Crime Rate
- 5.00 %Unchanged by 0.00 %
Agent Activity
Bowen Son and Watson with Kent Jones created the listing.
Nearby Schools
| Name | Type | Ofsted | Distance |
|---|---|---|---|
| Woodlands Children'S Development Centre | Welsh Establishment | 0.50 KM | |
| St Mary'S R.C. Primary School | Welsh Establishment | 0.82 KM | |
| Ysgol Clywedog | Welsh Establishment | 0.91 KM | |
| St Joseph'S Catholic And Anglican Secondary School | Welsh Establishment | 0.99 KM | |
| St Giles Vc Church In Wales Primary School | Welsh Establishment | 1.00 KM |
Images
Nearby Streets
| Name | Average Price | Average Sqft | Distance |
|---|---|---|---|
| Dolydd Road | £ 0 | 0 | 0.00 KM |
| Pierce's Square | £ 0 | 0 | 0.00 KM |
| Pentrefelin | £ 105,000 | 0 | 0.00 KM |
| Bridewell Court | £ 0 | 0 | 0.00 KM |
| Pen Y Bryn | £ 0 | 0 | 0.00 KM |
Nearby Transport
| Name | NLC | TLC | Distance |
|---|---|---|---|
| Wrexham Central | 4486 | WXC | 0.59 KM |
| Wrexham General | 4487 | WRX | 0.74 KM |
| Gwersyllt | 4300 | GWE | 3.57 KM |
| Cefn-Y-Bedd | 2425 | CYB | 6.83 KM |
| Ruabon | 4477 | RUA | 7.65 KM |
Nearby Listings
| Address | Price | Type | Score | Distance |
|---|---|---|---|---|
| Gibson Street, Wrexham | £ 115,000 | BUY | 5 / 10 | 0.00 KM |
| Gibson Street , Wrexham | £ 130,000 | BUY | 7 / 10 | 0.01 KM |
| Gibson Street, Wrexham | £ 105,000 | BUY | 6 / 10 | 0.05 KM |
| Gibson Street, Wrexham | £ 138,500 | BUY | 6 / 10 | 0.05 KM |
| Peel Street, Wrexham | £ 150,000 | BUY | 7 / 10 | 0.07 KM |
Nearby Properties
| Address | Price | Distance |
|---|---|---|
| 50 Gibson Street | £ 57,500 | 0.01 KM |
| 27 Gibson Street | £ 83,500 | 0.01 KM |
| 18 Gibson Street | £ 84,000 | 0.01 KM |
| 31 Gibson Street | £ 62,000 | 0.01 KM |
| 15 Gibson Street | £ 70,000 | 0.01 KM |