2 1F Drumsheugh Gardens, Edinburgh, EH3
MA

2 1F Drumsheugh Gardens, Edinburgh, EH3

By Macgregor

£ 795,000

Reviews

3 out of 5 stars

Macgregor says ..

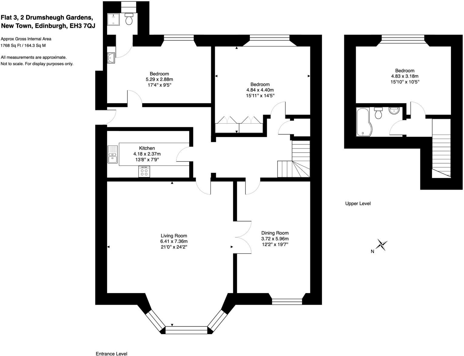
2 1F (Flat 3) Drumsheugh Gardens is an elegant first-floor flat forming part of a handsome converted Victorian townhouse, beautifully positioned within Edinburgh's famous West End.

Property Oracle says ..

This is a spacious 3-bedroom apartment located in the heart of Edinburgh. The property boasts modern bathrooms and a well-maintained interior. While it lacks a private garden, its central location provides easy access to city amenities and transportation. The price per square foot is higher than the area average, but the property’s size and desirable location justify the premium.

Therefore, we give this property 7 / 10. *Disclaimer: This is our option and does constitute a recommendation or financial advice. Do your own research. *

Price
7
Condition
8
Location
9
Land
5
Bedrooms
3
Bathrooms
2
Sqft (est)
1,768.51

The heatmap indicates the level of crime in the area. The color of the heatmap indicates the crime severity and recency.

Metrics Year-on-Year

Average area value
322,952.00 £
Decreased by 27.89 %
from 447,880.00 £
Est sale value
608,367.44 £
Decreased by 6.52 %
from 650,811.68 £
Average area rental value
1,604.00 £/mo
Decreased by 7.50 %
from 1,734.00 £/mo
Est letting value
1,768.51 £/mo
Unchanged by 0.00 %
from 1,768.51 £/mo
Est rental Yield
5.96 %
Increased by 28.17 %
from 4.65 %
Crime Rate
0.00 %
from 0.00 %

Agent Activity

  • Macgregor created the listing.

Nearby Schools

NameTypeOfstedDistance
Merchiston Castle SchoolOffshore Schools6.13 KM
Cargilfield SchoolOffshore Schools9.74 KM

Images

Dining Room Dining Room Double Bedroom 1 Drumsheugh Gardens 2 Drumsheugh Gardens Living Room Living Room Principal Bedroom En Suite Kitchen Upper Level Double Bedroom 2 Bathroom Drumsheugh Gardens Drumsheugh Gardens Drumsheugh Gardens

Nearby Streets

NameAverage PriceAverage SqftDistance
Lynedoch Place Lane £ 000.00 KM
William Street North East Lane £ 000.00 KM
Palmerston Place Lane £ 000.00 KM
Torphichen Place Lane £ 000.00 KM
Rutland Court £ 000.00 KM

Nearby Transport

NameNLCTLCDistance
Haymarket9419HYM0.72 KM
Edinburgh9328EDB2.87 KM
Slateford9236SLA4.20 KM
Kingsknowe9217KGE6.64 KM
Wester Hailes9231WTA8.75 KM

Nearby Listings

AddressPriceTypeScoreDistance
2 1F Drumsheugh Gardens, Edinburgh, EH3 £ 795,000BUY7 / 100.00 KM
Drumsheugh Gardens, Edinburgh, EH3 £ 850,000BUY7 / 100.00 KM
Drumsheugh Gardens, Edinburgh, EH3 £ 430,000BUY7 / 100.01 KM
2/4 Drumsheugh Gardens, West End, Edinburgh, EH3 £ 550,000BUY5 / 100.03 KM
2/4 Drumsheugh Gardens, West End, Edinburgh, EH3 £ 525,000BUY6 / 100.03 KM