JA
Unit 14 Marzell House, West Kensington, W14
By Jamie Lester Properties
£ 600,000
Reviews
3 out of 5 stars
Jamie Lester Properties says ..
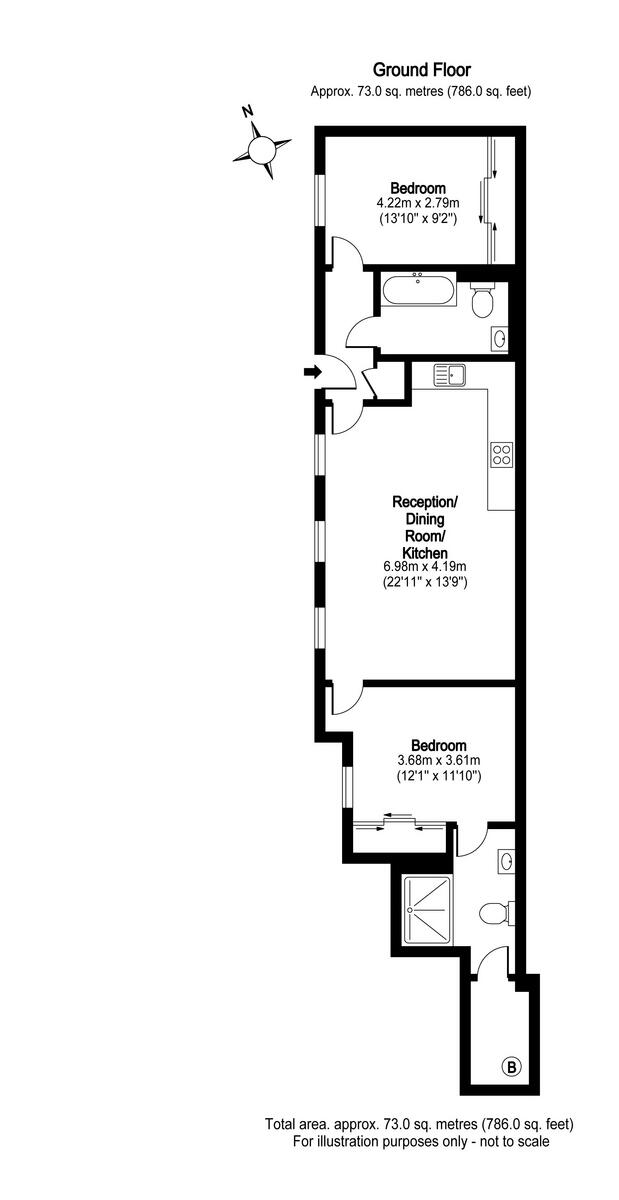
Unit 1014 - 100% MORTGAGES ARE BACK - GET IN TOUCH FOR MORE INFORMATION. A stunning 2-bedroom, 2-bathroom apartment that perfectly blends bold design with modern living
Property Oracle says ..
Therefore, we give this property 6 / 10. *Disclaimer: This is our option and does constitute a recommendation or financial advice. Do your own research. *
- Price
- 9
- Condition
- 9
- Location
- 7
- Land
- 1
- Bedrooms
- 2
- Bathrooms
- 2
- Sqft (est)
- 785.77
The heatmap indicates the level of crime in the area. The color of the heatmap indicates the crime severity and recency.
Metrics Year-on-Year
- Average area value
- 1,260,625.00 £Increased by 78.98 %
- Est sale value
- 1,424,601.01 £Increased by 72.34 %
- Average area rental value
- 2,530.00 £/moIncreased by 1.65 %
- Est letting value
- 2,357.31 £/moUnchanged by 0.00 %
- Est rental Yield
- 2.41 %Decreased by 43.16 %
- Crime Rate
- 8.00 %Unchanged by 0.00 %
from 704,319.00 £
from 826,630.04 £
from 2,489.00 £/mo
from 2,357.31 £/mo
from 4.24 %
from 8.00 %
Agent Activity
Jamie Lester Properties created the listing.
Nearby Schools
| Name | Type | Ofsted | Distance |
|---|---|---|---|
| The Fulham Boys School | Free Schools | Good | 0.26 KM |
| Normand Croft Community School For Early Years And Primary Education | Community School | Good | 0.39 KM |
| Psla Children'S Centre Services At Normand Croft Community School | Children's Centre Linked Site | 0.40 KM | |
| Avonmore Neighbourhood Family Centre | Children's Centre Linked Site | 0.48 KM | |
| The Fulham Prep School Ltd | Other Independent School | Good | 0.56 KM |
Images
Nearby Streets
| Name | Average Price | Average Sqft | Distance |
|---|---|---|---|
| May Street | £ 0 | 0 | 0.00 KM |
| Thaxton Road | £ 0 | 0 | 0.00 KM |
| Jervis Road | £ 0 | 0 | 0.00 KM |
| John Smith Avenue | £ 0 | 0 | 0.00 KM |
| Disbrowe Road | £ 0 | 0 | 0.00 KM |
Nearby Transport
| Name | NLC | TLC | Distance |
|---|---|---|---|
| West Brompton | 8875 | WBP | 1.09 KM |
| Kensington (Olympia) | 3092 | KPA | 1.17 KM |
| Shepherd'S Bush | 9587 | SPB | 2.30 KM |
| Imperial Wharf | 9586 | IMW | 2.92 KM |
| Putney | 5603 | PUT | 3.29 KM |
Nearby Listings
| Address | Price | Type | Score | Distance |
|---|---|---|---|---|
| Unit 14 Marzell House, West Kensington, W14 | £ 600,000 | BUY | 6 / 10 | 0.00 KM |
| Apt 2014 Marzell House, West Kensington, W14 | £ 600,000 | BUY | 6 / 10 | 0.00 KM |
| Beaumont Crescent, West Kensington, London, W14 | £ 825,000 | BUY | Unknown | 0.00 KM |
| Marzell House, Lanfrey Place, London, W14 | £ 550,000 | BUY | 6 / 10 | 0.01 KM |
| Marzell House, London, W14 | £ 800,000 | BUY | Unknown | 0.01 KM |
Nearby Properties
| Address | Price | Distance |
|---|---|---|
| 12a Lanfrey Place | £ 468,000 | 0.04 KM |
| 19 Lanfrey Place | £ 1,000,000 | 0.04 KM |
| 12b Lanfrey Place | £ 650,000 | 0.04 KM |
| 3 Lanfrey Place | £ 750,000 | 0.04 KM |
| 1 Lanfrey Place | £ 310,000 | 0.04 KM |