Naylor Powell says ..
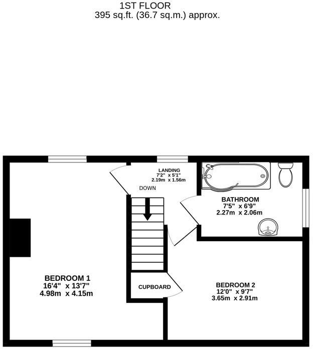
An extended two bedroom semi-detached property which offers generous living accommodation throughout to include living room with feature fireplace, a light and airy kitchen/diner, utility and WC on the ground floor. On the first floor, you will find two double bedrooms and a bathroom. The propert...
Property Oracle says ..
This is a semi-detached property located on Midland Road in Stonehouse, Gloucestershire. It features two bedrooms and one bathroom, with a total square footage of 586.27 sqft. The property includes a garden and is situated in a location with good access to transportation and schools. While the property is in reasonable condition, some modernization could enhance its appeal. The asking price of £269,950 appears competitive compared to the average property price in the area.
Therefore, we give this property 6 / 10. *Disclaimer: This is our option and does constitute a recommendation or financial advice. Do your own research. *
- Price
- 7
- Condition
- 6
- Location
- 7
- Land
- 7
- Bedrooms
- 2
- Bathrooms
- 1
- Sqft (est)
- 586.27
The heatmap indicates the level of crime in the area. The color of the heatmap indicates the crime severity and recency.
Metrics Year-on-Year
- Average area value
- 316,000.00 £Decreased by 12.80 %
- Est sale value
- 235,094.27 £Increased by 88.26 %
- Average area rental value
- 755.00 £/moDecreased by 39.65 %
- Est letting value
- 0.00 £/mo
- Est rental Yield
- 2.87 %Decreased by 30.68 %
- Crime Rate
- 40.00 %Unchanged by 0.00 %
Agent Activity
Naylor Powell created the listing.
Nearby Schools
| Name | Type | Ofsted | Distance |
|---|---|---|---|
| Stonehouse The Park Children'S Centre | Children's Centre | 0.49 KM | |
| Stonehouse Park Infant School | Community School | Good | 0.52 KM |
| Park Junior School | Community School | Requires improvement | 0.52 KM |
| The Shrubberies School | Community Special School | Good | 0.68 KM |
| Hopelands Preparatory School | Other Independent School | 1.08 KM |
Images
Nearby Streets
| Name | Average Price | Average Sqft | Distance |
|---|---|---|---|
| Midland Road | £ 312,500 | 0 | 0.00 KM |
| Oldends | £ 344,990 | 0 | 0.00 KM |
| Stonedale Road | £ 0 | 0 | 0.00 KM |
| Willow Road | £ 0 | 0 | 0.00 KM |
| Elm Road | £ 0 | 0 | 0.00 KM |
Nearby Transport
| Name | NLC | TLC | Distance |
|---|---|---|---|
| Stonehouse | 4770 | SHU | 1.31 KM |
| Stroud (Gloucs) | 4771 | STD | 7.89 KM |
| Cam And Dursley | 3238 | CDU | 8.41 KM |
Nearby Listings
| Address | Price | Type | Score | Distance |
|---|---|---|---|---|
| Midland Road, Stonehouse | £ 269,950 | BUY | 6 / 10 | 0.00 KM |
| Midland Road, Stonehouse | £ 80,000 | BUY | 5 / 10 | 0.09 KM |
| Midland Road, Stonehouse | £ 230,000 | BUY | 4 / 10 | 0.09 KM |
| Midland Road, Stonehouse | £ 250,000 | BUY | 5 / 10 | 0.09 KM |
| Severn Road, Stonehouse | £ 225,000 | BUY | 5 / 10 | 0.14 KM |
Nearby Properties
| Address | Price | Distance |
|---|---|---|
| 55 Midland Road | £ 135,000 | 0.04 KM |
| 87 Midland Road | £ 100,000 | 0.04 KM |
| 77 Midland Road | £ 165,000 | 0.04 KM |
| 9 Midland Road | £ 200,000 | 0.04 KM |
| 57 Midland Road | £ 218,500 | 0.04 KM |