Treagust & Co says ..
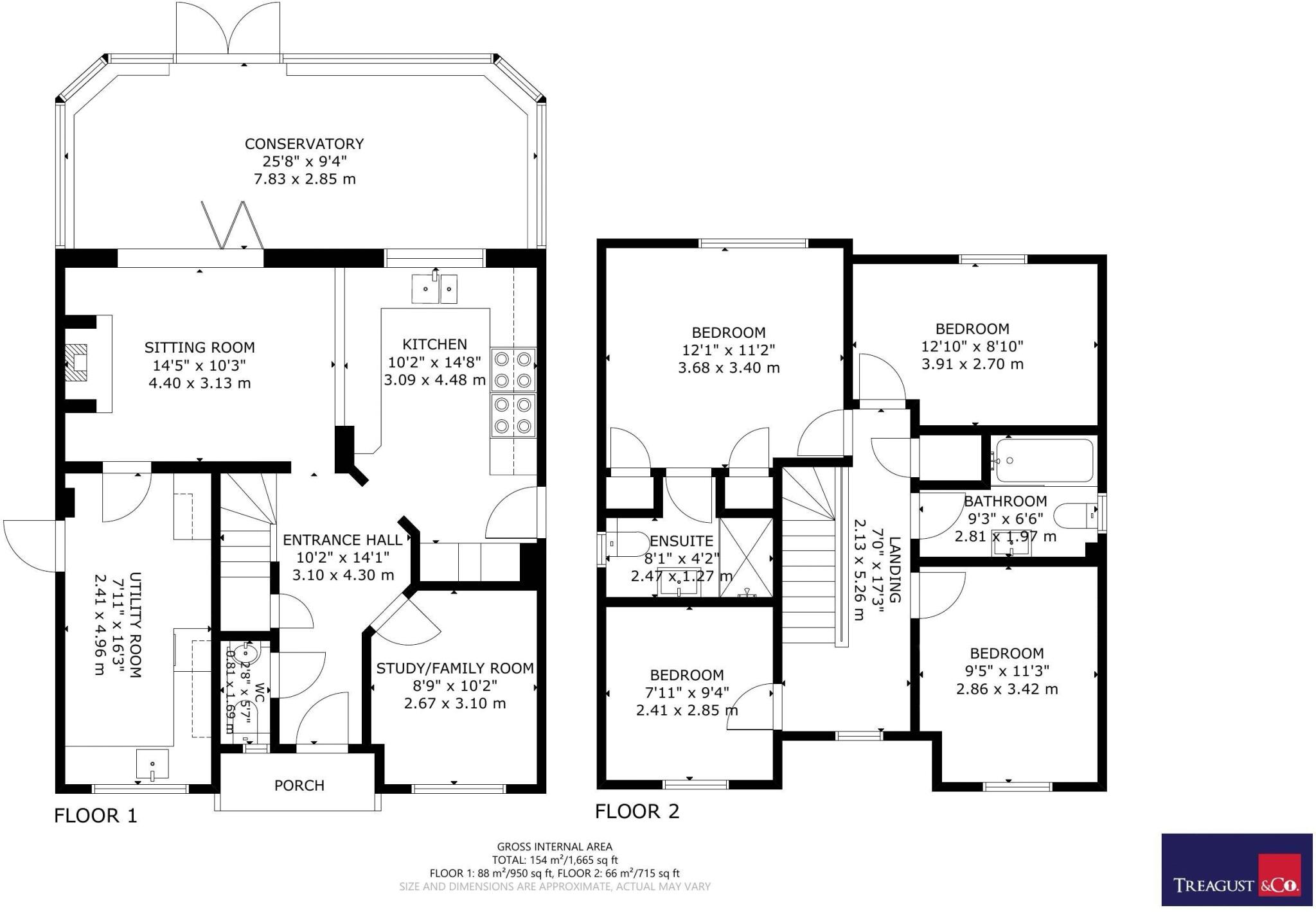
Set within walking distance of the village centre amenities and the popular Westbourne Primary School, Treagust & Co is pleased to offer this immaculately presented four bedroom detached home with off-road parking. The property offers a versatile ground floor layout with the main living accommoda...
Property Oracle says ..
Westbourne is a desirable village location within easy reach of Chichester and Emsworth. The property is conveniently located near Westbourne Primary School (rated ‘Good’ by Ofsted), and other schools are within a reasonable distance. Several train stations are also nearby, providing good transport links. The property itself appears to be in excellent condition, well-maintained, and benefits from a modern extension. The images show a recently updated kitchen and bathrooms, a conservatory, and a well-maintained garden. The list price of £580,000 is significantly below the average price for the area (£790,163), and while the average price per square foot is not significantly different, the property’s condition and the inclusion of a conservatory and garden may justify this lower price point. However, a full structural survey would be recommended to confirm the property’s condition.
Therefore, we give this property 8 / 10. *Disclaimer: This is our option and does constitute a recommendation or financial advice. Do your own research. *
- Price
- 8
- Condition
- 9
- Location
- 9
- Land
- 7
- Bedrooms
- 4
- Bathrooms
- 2
- Sqft (est)
- 1,428.38
The heatmap indicates the level of crime in the area. The color of the heatmap indicates the crime severity and recency.
Metrics Year-on-Year
- Average area value
- 689,089.00 £Decreased by 2.95 %
- Est sale value
- 1,496,942.24 £Increased by 51.23 %
- Average area rental value
- 2,316.00 £/moIncreased by 5.08 %
- Est letting value
- 4,285.14 £/moIncreased by 50.00 %
- Est rental Yield
- 4.03 %Increased by 8.33 %
- Crime Rate
- 28.00 %Unchanged by 0.00 %
Agent Activity
Treagust & Co created the listing.
Nearby Schools
| Name | Type | Ofsted | Distance |
|---|---|---|---|
| Westbourne Primary School | Community School | Good | 0.32 KM |
| Bourne Community College | Foundation School | Good | 1.60 KM |
| Southbourne Children And Family Centre | Children's Centre | 1.60 KM | |
| St James Church Of England Controlled Primary School | Voluntary Controlled School | Good | 2.10 KM |
| Southbourne Infant School | Community School | Good | 2.57 KM |
Images
Nearby Streets
| Name | Average Price | Average Sqft | Distance |
|---|---|---|---|
| Lingfield Close | £ 0 | 0 | 0.00 KM |
| Mallard Way | £ 0 | 0 | 0.00 KM |
| Whitley Close | £ 0 | 0 | 0.00 KM |
| Church View | £ 750,000 | 0 | 0.00 KM |
| The Grove | £ 0 | 0 | 0.00 KM |
Nearby Transport
| Name | NLC | TLC | Distance |
|---|---|---|---|
| Southbourne | 5263 | SOB | 2.25 KM |
| Emsworth | 5257 | EMS | 2.29 KM |
| Nutbourne | 5262 | NUT | 4.69 KM |
| Rowlands Castle | 5658 | RLN | 5.09 KM |
| Warblington | 5264 | WBL | 5.16 KM |
Nearby Listings
| Address | Price | Type | Score | Distance |
|---|---|---|---|---|
| Kingfisher Drive, Emsworth | £ 565,000 | BUY | 7 / 10 | 0.00 KM |
| Kingfisher Drive, Westbourne | £ 580,000 | BUY | 8 / 10 | 0.00 KM |
| Lark Way, Westbourne, Hampshire | £ 420,000 | BUY | 6 / 10 | 0.07 KM |
| Grebe Close, Emsworth, PO10 | £ 425,000 | BUY | Unknown | 0.14 KM |
| Edgell Road, Emsworth | £ 265,000 | BUY | Unknown | 0.17 KM |
Nearby Properties
| Address | Price | Distance |
|---|---|---|
| 16 Kingfisher Drive | £ 392,000 | 0.01 KM |
| 14 Kingfisher Drive | £ 220,000 | 0.01 KM |
| 1 Kingfisher Drive | £ 437,000 | 0.01 KM |
| 33 Kingfisher Drive | £ 102,000 | 0.01 KM |
| 7 Kingfisher Drive | £ 250,000 | 0.01 KM |