Campbell's says ..
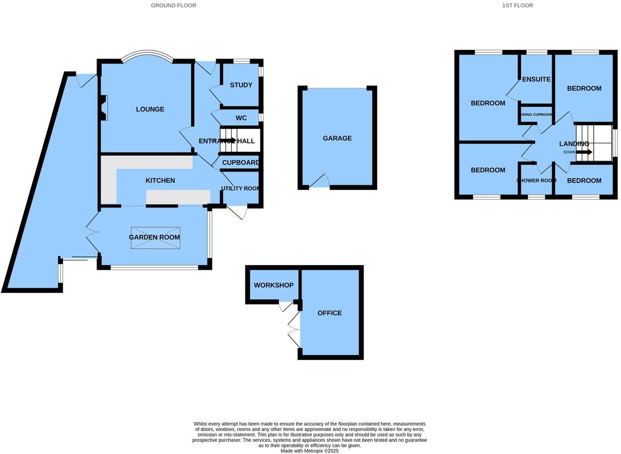
A well presented and spacious detached family home in a quiet cul-de-sac location with four/five bedrooms, one/two reception rooms, a garage and south westerly facing garden.
Property Oracle says ..
Therefore, we give this property 8 / 10. *Disclaimer: This is our option and does constitute a recommendation or financial advice. Do your own research. *
- Price
- 9
- Condition
- 8
- Location
- 8
- Land
- 7
- Bedrooms
- 5
- Bathrooms
- 2
- Sqft (est)
- 1,814.00
The heatmap indicates the level of crime in the area. The color of the heatmap indicates the crime severity and recency.
Metrics Year-on-Year
- Average area value
- 412,143.00 £Decreased by 3.72 %
- Est sale value
- 647,598.00 £Decreased by 10.53 %
- Average area rental value
- 998.00 £/moDecreased by 11.21 %
- Est letting value
- 0.00 £/moDecreased by 100.00 %
- Est rental Yield
- 2.91 %Decreased by 7.62 %
- Crime Rate
- 2.00 %Unchanged by 0.00 %
from 428,086.00 £
from 723,786.00 £
from 1,124.00 £/mo
from 1,814.00 £/mo
from 3.15 %
from 2.00 %
Agent Activity
Campbell's created the listing.
Nearby Schools
| Name | Type | Ofsted | Distance |
|---|---|---|---|
| St Leonard'S Church Of England Primary Academy | Academy Sponsor Led | Good | 1.09 KM |
| West St Leonards Primary Academy | Academy Sponsor Led | Good | 1.10 KM |
| Saxon Mount School | Academy Special Converter | Good | 1.29 KM |
| The St Leonards Academy | Academy Sponsor Led | Good | 1.37 KM |
| New Horizons School (Part Of The Sabden Multi Academy Trust) | Academy Special Converter | Outstanding | 1.42 KM |
Images
Nearby Streets
| Name | Average Price | Average Sqft | Distance |
|---|---|---|---|
| Doucegrove | £ 310,000 | 0 | 0.00 KM |
| Summerhill | £ 660,000 | 0 | 0.00 KM |
| Regency Gardens | £ 0 | 0 | 0.00 KM |
| Avondale Court | £ 0 | 0 | 0.00 KM |
| Oxley Close | £ 0 | 0 | 0.00 KM |
Nearby Transport
| Name | NLC | TLC | Distance |
|---|---|---|---|
| West St Leonards | 5242 | WLD | 1.29 KM |
| St Leonards Warrior Square | 5239 | SLQ | 1.99 KM |
| Hastings | 5219 | HGS | 3.65 KM |
| Ore | 5021 | ORE | 5.24 KM |
| Crowhurst | 5233 | CWU | 5.49 KM |
Nearby Listings
| Address | Price | Type | Score | Distance |
|---|---|---|---|---|
| ST LEONARDS-ON-SEA, TN38 | £ 499,950 | BUY | 8 / 10 | 0.00 KM |
| Marlborough Close, St. Leonards-On-Sea | £ 525,000 | BUY | 7 / 10 | 0.00 KM |
| Plot to the Rear of Woodlands, St. Leonards-on-Sea | £ 175,000 | BUY | 6 / 10 | 0.08 KM |
| Hollington Park Road, St. Leonards-On-Sea | £ 270,000 | BUY | 8 / 10 | 0.09 KM |
| Fern Road, St. Leonards-On-Sea | £ 435,000 | BUY | 7 / 10 | 0.11 KM |
Nearby Properties
| Address | Price | Distance |
|---|---|---|
| Ronalds Way | £ 79,950 | 0.05 KM |
| Amberley | £ 239,500 | 0.05 KM |
| Woodlands | £ 180,000 | 0.05 KM |
| 16 Marlborough Close | £ 286,000 | 0.07 KM |
| 7 Marlborough Close | £ 245,000 | 0.07 KM |