Julian Marks says ..
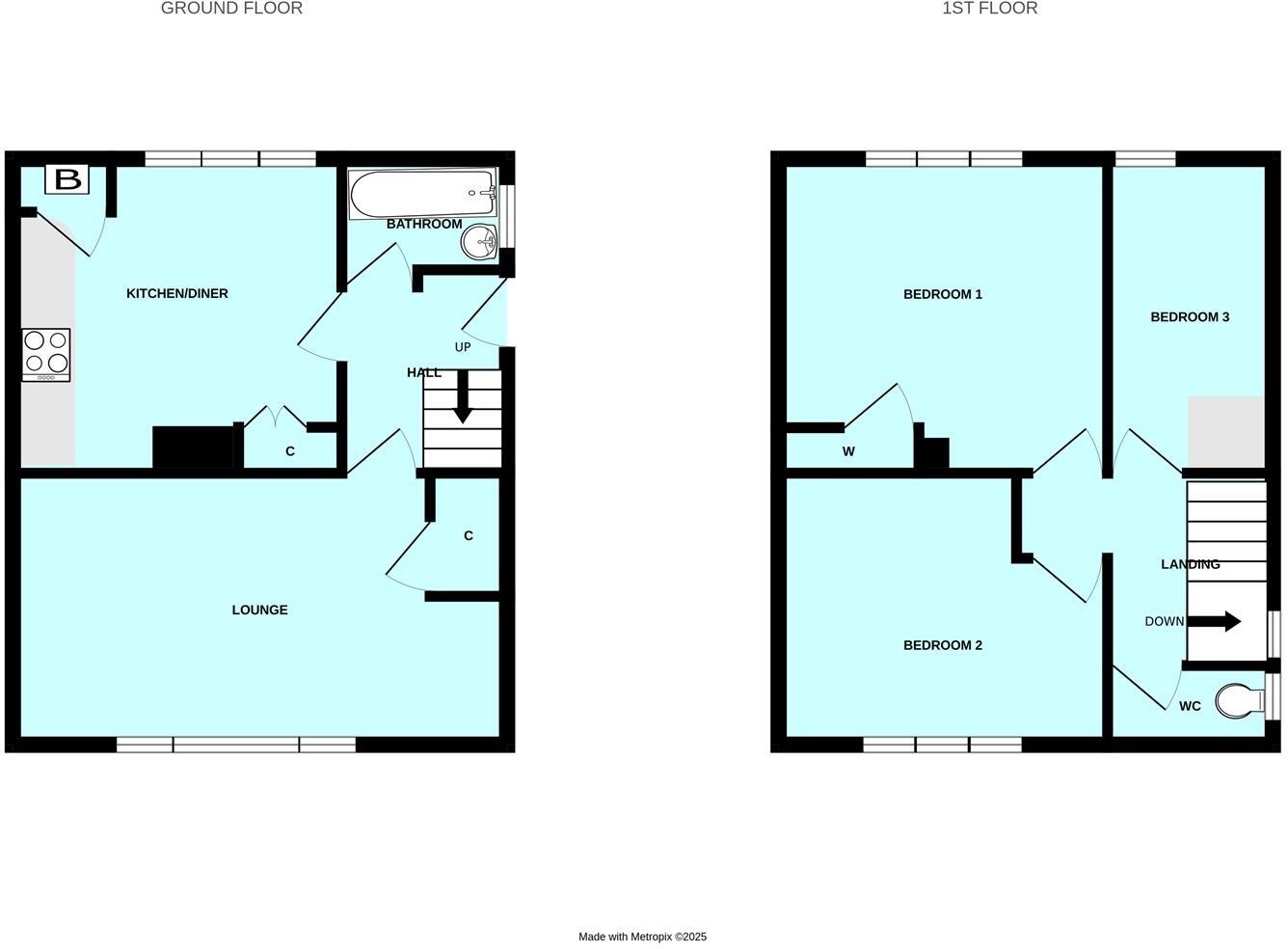
An ex local authority semi-detached house believed to have been built in the 1950s & known as a Cornish unit. The property having been professionally upgraded in the past with bricked up lower elevations & PRC certification. A good-sized garden to the front & rear with potential to create off-str...
Property Oracle says ..
Therefore, we give this property 6 / 10. *Disclaimer: This is our option and does constitute a recommendation or financial advice. Do your own research. *
- Price
- 7
- Condition
- 5
- Location
- 7
- Land
- 7
- Bedrooms
- 3
- Bathrooms
- 1
- Sqft (est)
- 364.00
The heatmap indicates the level of crime in the area. The color of the heatmap indicates the crime severity and recency.
Metrics Year-on-Year
- Average area value
- 231,250.00 £Decreased by 12.40 %
- Est sale value
- 103,012.00 £Decreased by 10.44 %
- Average area rental value
- 1,650.00 £/moIncreased by 107.29 %
- Est letting value
- 728.00 £/mo
- Est rental Yield
- 8.56 %Increased by 136.46 %
- Crime Rate
- 5.00 %Unchanged by 0.00 %
from 263,993.00 £
from 115,024.00 £
from 796.00 £/mo
from 0.00 £/mo
from 3.62 %
from 5.00 %
Agent Activity
Julian Marks created the listing.
Nearby Schools
| Name | Type | Ofsted | Distance |
|---|---|---|---|
| St Boniface'S Rc College | Academy Sponsor Led | Requires improvement | 0.83 KM |
| Whitleigh Community Primary School | Foundation School | Good | 0.87 KM |
| Woodlands School | Foundation Special School | Good | 0.99 KM |
| Manadon Vale Primary School | Academy Converter | Good | 1.20 KM |
| Widey Court Primary School | Academy Converter | Good | 1.22 KM |
Images
Nearby Streets
| Name | Average Price | Average Sqft | Distance |
|---|---|---|---|
| Berkeley Square | £ 545,000 | 0 | 0.00 KM |
| Rothesay Gardens | £ 180,000 | 0 | 0.00 KM |
| Silver Hill Close | £ 0 | 0 | 0.00 KM |
| Grosvenor Road | £ 310,000 | 0 | 0.00 KM |
| Frobisher Approach | £ 0 | 0 | 0.00 KM |
Nearby Transport
| Name | NLC | TLC | Distance |
|---|---|---|---|
| Plymouth | 3580 | PLY | 3.98 KM |
| Devonport | 3579 | DPT | 5.44 KM |
| Keyham | 3571 | KEY | 5.49 KM |
| Dockyard (Devonport) | 3588 | DOC | 5.60 KM |
| St Budeaux Ferry Road | 3590 | SBF | 5.80 KM |
Nearby Listings
| Address | Price | Type | Score | Distance |
|---|---|---|---|---|
| Crownhill, Plymouth | £ 175,000 | BUY | 6 / 10 | 0.00 KM |
| Elgin Crescent, Crownhill, Plymouth | £ 120,000 | BUY | Unknown | 0.01 KM |
| Elgin Crescent, Crownhill, Plymouth | £ 185,000 | BUY | 6 / 10 | 0.09 KM |
| Dayton Close, Plymouth, Devon, PL6 | £ 300,000 | BUY | Unknown | 0.15 KM |
| Dayton Close, Plymouth | £ 300,000 | BUY | 6 / 10 | 0.15 KM |
Nearby Properties
| Address | Price | Distance |
|---|---|---|
| 94 Elgin Crescent | £ 140,000 | 0.02 KM |
| 116 Elgin Crescent | £ 66,000 | 0.02 KM |
| 107 Elgin Crescent | £ 125,000 | 0.02 KM |
| 99 Elgin Crescent | £ 127,000 | 0.02 KM |
| 89 Elgin Crescent | £ 115,000 | 0.02 KM |