MC
Heywood Road, Harrogate, HG2
By McGowan Housing
£ 130,000
Reviews
3 out of 5 stars
McGowan Housing says ..
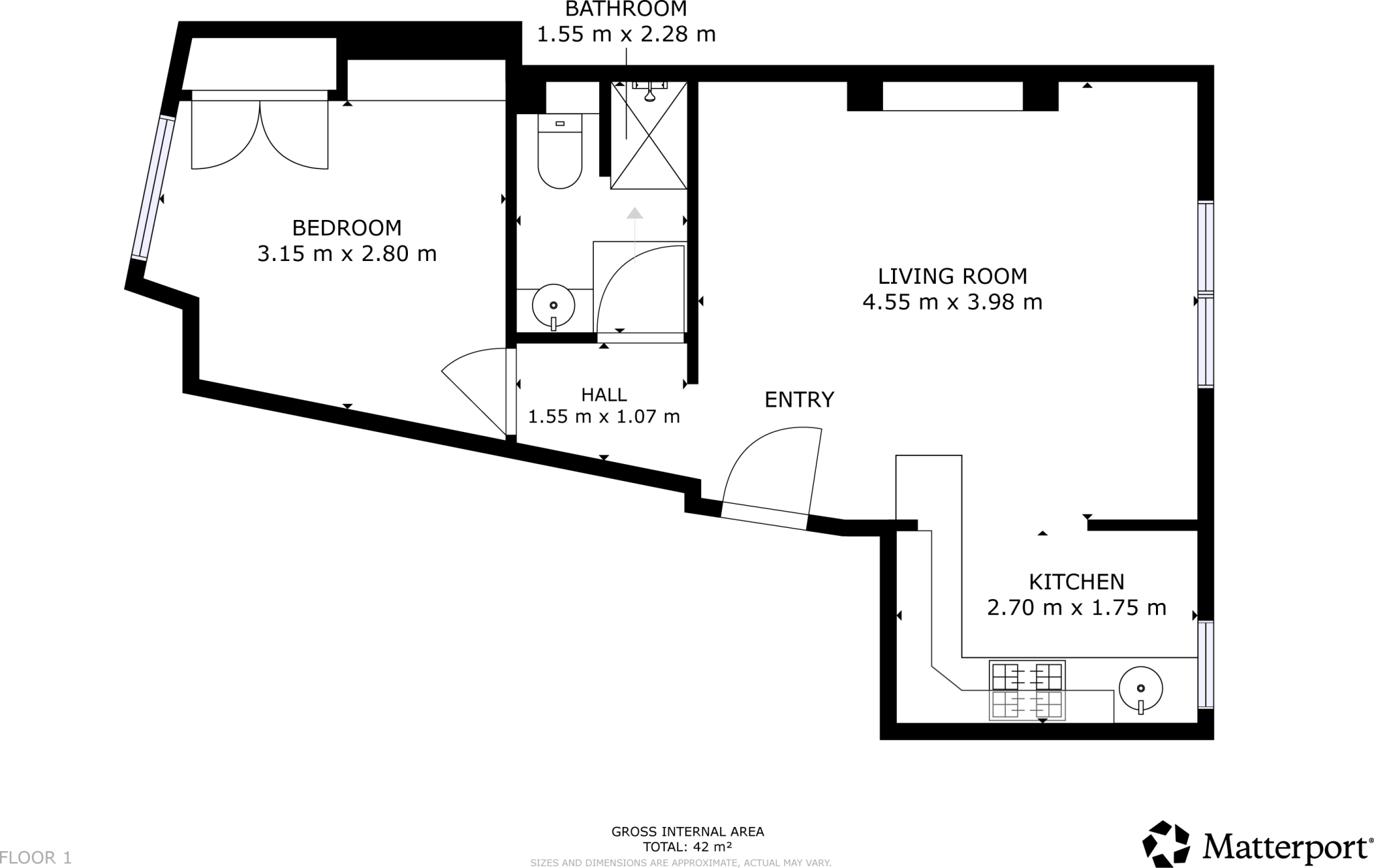
Buy-to-Let Opportunity | Long-Term Tenants currently situated | 1 Bedroom Flat | Well-kept Flat | On-Street Parking | Easy Access to Local Amenities | Prime Rental Location within Harrogate
Property Oracle says ..
Therefore, we give this property 6 / 10. *Disclaimer: This is our option and does constitute a recommendation or financial advice. Do your own research. *
- Price
- 9
- Condition
- 8
- Location
- 8
- Land
- 1
- Bedrooms
- 1
- Bathrooms
- 1
- Sqft (est)
- 452.08
The heatmap indicates the level of crime in the area. The color of the heatmap indicates the crime severity and recency.
Metrics Year-on-Year
- Average area value
- 577,492.00 £Decreased by 7.84 %
- Est sale value
- 229,204.56 £Increased by 11.18 %
- Average area rental value
- 1,475.00 £/moIncreased by 28.15 %
- Est letting value
- 452.08 £/mo
- Est rental Yield
- 3.06 %Increased by 39.09 %
- Crime Rate
- 13.00 %Unchanged by 0.00 %
from 626,598.00 £
from 206,148.48 £
from 1,151.00 £/mo
from 0.00 £/mo
from 2.20 %
from 13.00 %
Agent Activity
McGowan Housing created the listing.
Nearby Schools
| Name | Type | Ofsted | Distance |
|---|---|---|---|
| Western Primary School | Academy Converter | Outstanding | 0.10 KM |
| Harrogate Language Academy | Miscellaneous | 0.40 KM | |
| Harrogate Grammar School | Academy Converter | 0.76 KM | |
| Harrogate Ladies' College | Other Independent School | 0.82 KM | |
| St Peter'S Church Of England Primary School | Academy Converter | Good | 0.96 KM |
Images
Nearby Streets
| Name | Average Price | Average Sqft | Distance |
|---|---|---|---|
| Saint Mary's Walk Rear | £ 0 | 0 | 0.00 KM |
| Cold Bath Road Rear | £ 0 | 0 | 0.00 KM |
| Glebe Road Rear | £ 118,800 | 0 | 0.00 KM |
| Crown Roundabout | £ 0 | 0 | 0.00 KM |
| Cygnet Court | £ 330,000 | 0 | 0.00 KM |
Nearby Transport
| Name | NLC | TLC | Distance |
|---|---|---|---|
| Harrogate | 8213 | HGT | 1.17 KM |
| Hornbeam Park | 8212 | HBP | 2.55 KM |
| Pannal | 8479 | PNL | 3.83 KM |
| Starbeck | 8221 | SBE | 5.24 KM |
| Weeton | 8509 | WET | 8.29 KM |
Nearby Listings
| Address | Price | Type | Score | Distance |
|---|---|---|---|---|
| Heywood Road, Harrogate, HG2 | £ 130,000 | BUY | 6 / 10 | 0.00 KM |
| Heywood Road, Harrogate | £ 425,000 | BUY | 7 / 10 | 0.00 KM |
| 1 Heywood Road, Harrogate, HG2 0LU | £ 275,000 | BUY | 6 / 10 | 0.01 KM |
| Heywood Road, Harrogate | £ 150,000 | BUY | 6 / 10 | 0.04 KM |
| Cold Bath Road, Harrogate, HG2 | £ 1,800,000 | BUY | Unknown | 0.05 KM |
Nearby Properties
| Address | Price | Distance |
|---|---|---|
| 7 Heywood Road | £ 350,000 | 0.00 KM |
| 10 Heywood Road | £ 289,650 | 0.00 KM |
| 12 Heywood Road | £ 350,000 | 0.00 KM |
| 13 Heywood Road | £ 399,950 | 0.00 KM |
| 4 Heywood Road | £ 172,177 | 0.00 KM |