BR
Moreton Close, Church Crookham, Fleet, Hampshire, GU52
By Bridges Estate Agents
£ 650,000
Reviews
3 out of 5 stars
Bridges Estate Agents says ..
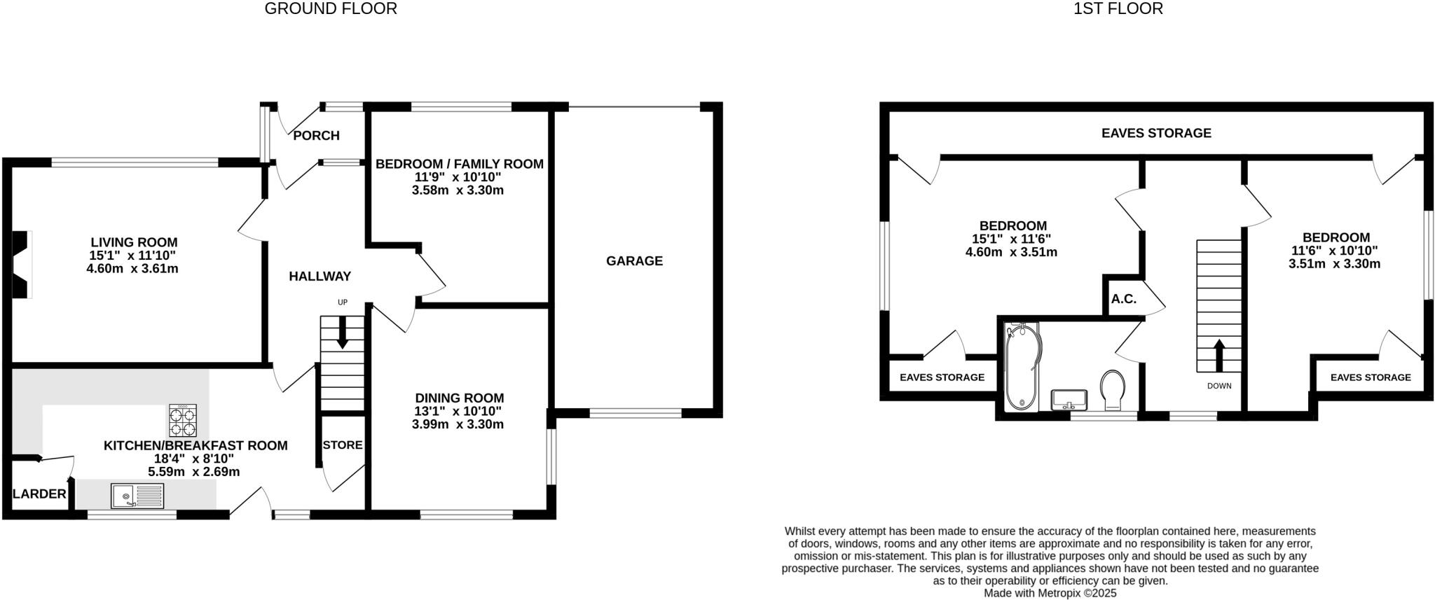
Situated in a peaceful cul-de-sac within the sought-after area of Church Crookham, this charming three-bedroom detached chalet bungalow offers versatile living and generous outdoor space—ideal for families or those seeking to downsize without compromising on comfort. The accommodation inclu...
Property Oracle says ..
Therefore, we give this property 7 / 10. *Disclaimer: This is our option and does constitute a recommendation or financial advice. Do your own research. *
- Price
- 8
- Condition
- 8
- Location
- 8
- Land
- 7
- Bedrooms
- 3
- Bathrooms
- 1
- Sqft (est)
- 907.97
The heatmap indicates the level of crime in the area. The color of the heatmap indicates the crime severity and recency.
Metrics Year-on-Year
- Average area value
- 474,943.00 £Increased by 6.76 %
- Est sale value
- 822,620.82 £Increased by 129.37 %
- Average area rental value
- 2,010.00 £/moIncreased by 42.65 %
- Est letting value
- 2,723.91 £/moIncreased by 200.00 %
- Est rental Yield
- 5.08 %Increased by 33.68 %
- Crime Rate
- 1.00 %Unchanged by 0.00 %
from 444,872.00 £
from 358,648.15 £
from 1,409.00 £/mo
from 907.97 £/mo
from 3.80 %
from 1.00 %
Agent Activity
Bridges Estate Agents created the listing.
Nearby Schools
| Name | Type | Ofsted | Distance |
|---|---|---|---|
| Crookham Church Of England Aided Infant School | Voluntary Aided School | Good | 0.22 KM |
| Church Crookham Junior School | Community School | Outstanding | 1.21 KM |
| Court Moor School | Community School | Good | 1.34 KM |
| Tweseldown Infant School | Community School | Outstanding | 1.37 KM |
| Wild Rose Children'S Centre | Children's Centre Linked Site | 1.37 KM |
Images
Nearby Streets
| Name | Average Price | Average Sqft | Distance |
|---|---|---|---|
| Langley Close | £ 0 | 0 | 0.00 KM |
| Royston Drive | £ 0 | 0 | 0.00 KM |
| Green Glades | £ 204,983 | 0 | 0.00 KM |
| Sylvan Way | £ 115,000 | 0 | 0.00 KM |
| Woodland Rise | £ 176,665 | 0 | 0.00 KM |
Nearby Transport
| Name | NLC | TLC | Distance |
|---|---|---|---|
| Fleet | 5522 | FLE | 3.81 KM |
| Winchfield | 5528 | WNF | 7.55 KM |
| Farnham | 5545 | FNH | 7.74 KM |
| Bentley (Hampshire) | 5624 | BTY | 9.06 KM |
| Aldershot | 5623 | AHT | 9.40 KM |
Nearby Listings
| Address | Price | Type | Score | Distance |
|---|---|---|---|---|
| Moreton Close, Church Crookham, Fleet, Hampshire, GU52 | £ 650,000 | BUY | 7 / 10 | 0.00 KM |
| Moreton Close, Church Crookham, Fleet | £ 825,000 | BUY | 8 / 10 | 0.04 KM |
| Moreton Close, Church Crookham, Fleet, GU52 | £ 700,000 | BUY | 8 / 10 | 0.09 KM |
| Moreton Close, Church Crookham, Fleet, Hampshire, GU52 | £ 650,000 | BUY | Unknown | 0.12 KM |
| Aldershot Road, Church Crookham, Fleet | £ 750,000 | BUY | 6 / 10 | 0.20 KM |
Nearby Properties
| Address | Price | Distance |
|---|---|---|
| 7 Moreton Close | £ 675,000 | 0.05 KM |
| 45 Moreton Close | £ 430,000 | 0.05 KM |
| 39 Moreton Close | £ 525,000 | 0.05 KM |
| 9 Moreton Close | £ 476,000 | 0.05 KM |
| 15 Moreton Close | £ 540,000 | 0.05 KM |