Pearsons says ..
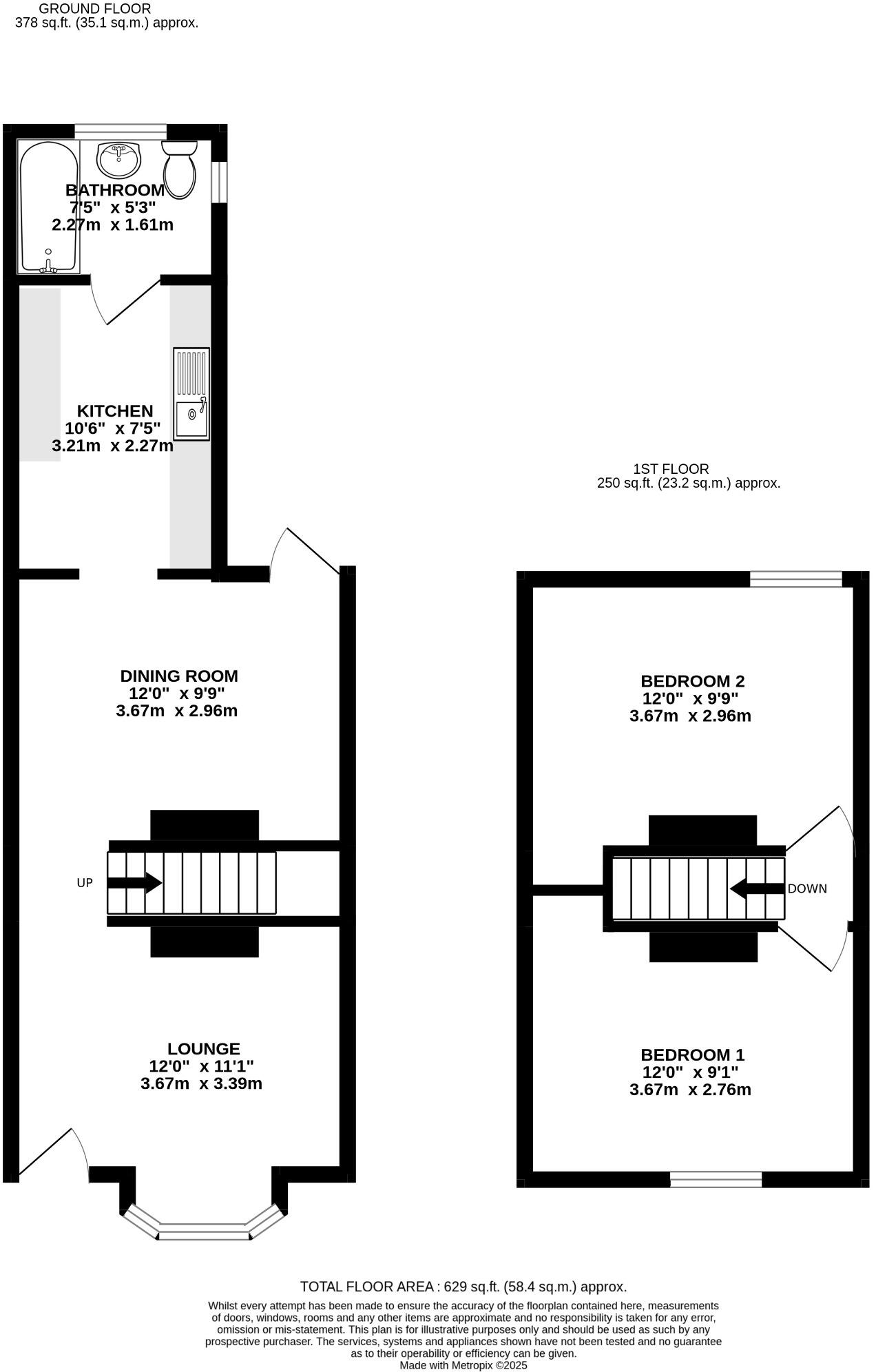
Sold with no forward chain, this traditional two-bedroom bay and forecourt terraced home is situated in a popular residential area and provides a fantastic opportunity for a purchaser to renovate to their own taste and standards, whilst adding value. The internal accommodation comprises; a bay-fr...
Property Oracle says ..
This is a two-bedroom terraced house in Central Southsea. The property is in a good location, close to schools and transportation. The property is in reasonable condition, but it could benefit from some modernisation. The property has a garden. The property is listed at £215,000, which is below the average price for the area.
Therefore, we give this property 6 / 10. *Disclaimer: This is our option and does constitute a recommendation or financial advice. Do your own research. *
- Price
- 7
- Condition
- 5
- Location
- 7
- Land
- 6
- Bedrooms
- 2
- Bathrooms
- 1
- Sqft (est)
- 628.61
The heatmap indicates the level of crime in the area. The color of the heatmap indicates the crime severity and recency.
Metrics Year-on-Year
- Average area value
- 269,625.00 £Decreased by 6.52 %
- Est sale value
- 221,899.33 £Increased by 13.50 %
- Average area rental value
- 1,216.00 £/moDecreased by 16.14 %
- Est letting value
- 628.61 £/moUnchanged by 0.00 %
- Est rental Yield
- 5.41 %Decreased by 10.28 %
- Crime Rate
- 3.00 %Unchanged by 0.00 %
Agent Activity
Pearsons created the listing.
Nearby Schools
| Name | Type | Ofsted | Distance |
|---|---|---|---|
| Bramble Infant School And Nursery | Community School | Good | 0.12 KM |
| The Brambles Children'S Centre And Nursery School | Children's Centre Linked Site | 0.19 KM | |
| Devonshire Infant School | Community School | Good | 0.38 KM |
| Fernhurst Junior School | Community School | Good | 0.43 KM |
| Southsea And Brambles Children'S Centre | Children's Centre | 0.49 KM |
Images
Nearby Streets
| Name | Average Price | Average Sqft | Distance |
|---|---|---|---|
| Boulton Road | £ 0 | 0 | 0.00 KM |
| Beatrice Road | £ 270,000 | 0 | 0.00 KM |
| Campbell Road | £ 0 | 0 | 0.00 KM |
| Fratton Way | £ 162,500 | 0 | 0.00 KM |
| Proctor Lane | £ 0 | 0 | 0.00 KM |
Nearby Transport
| Name | NLC | TLC | Distance |
|---|---|---|---|
| Fratton | 5509 | FTN | 0.54 KM |
| Portsmouth And Southsea | 5537 | PMS | 2.09 KM |
| Portsmouth Harbour | 5540 | PMH | 3.87 KM |
| Hilsea | 5539 | HLS | 4.39 KM |
| Cosham | 5896 | CSA | 5.65 KM |
Nearby Listings
| Address | Price | Type | Score | Distance |
|---|---|---|---|---|
| Sutherland Road, Southsea | £ 230,000 | BUY | Unknown | 0.00 KM |
| Sutherland Road, Southsea | £ 230,000 | BUY | 7 / 10 | 0.00 KM |
| Sutherland Road, Southsea | £ 225,000 | BUY | 6 / 10 | 0.00 KM |
| Sutherland Road, Southsea | £ 215,000 | BUY | 6 / 10 | 0.00 KM |
| Sutherland Road, Southsea | £ 30,000 | BUY | 5 / 10 | 0.02 KM |
Nearby Properties
| Address | Price | Distance |
|---|---|---|
| 29 Sutherland Road | £ 104,000 | 0.01 KM |
| 35 Sutherland Road | £ 195,500 | 0.01 KM |
| 97 Sutherland Road | £ 255,000 | 0.01 KM |
| 19 Sutherland Road | £ 146,000 | 0.01 KM |
| 89 Sutherland Road | £ 144,995 | 0.01 KM |