Freya Lodge, Loughton
By Elliott James - Prime Residential
£ 595,000
Reviews
3 out of 5 stars
Elliott James - Prime Residential says ..
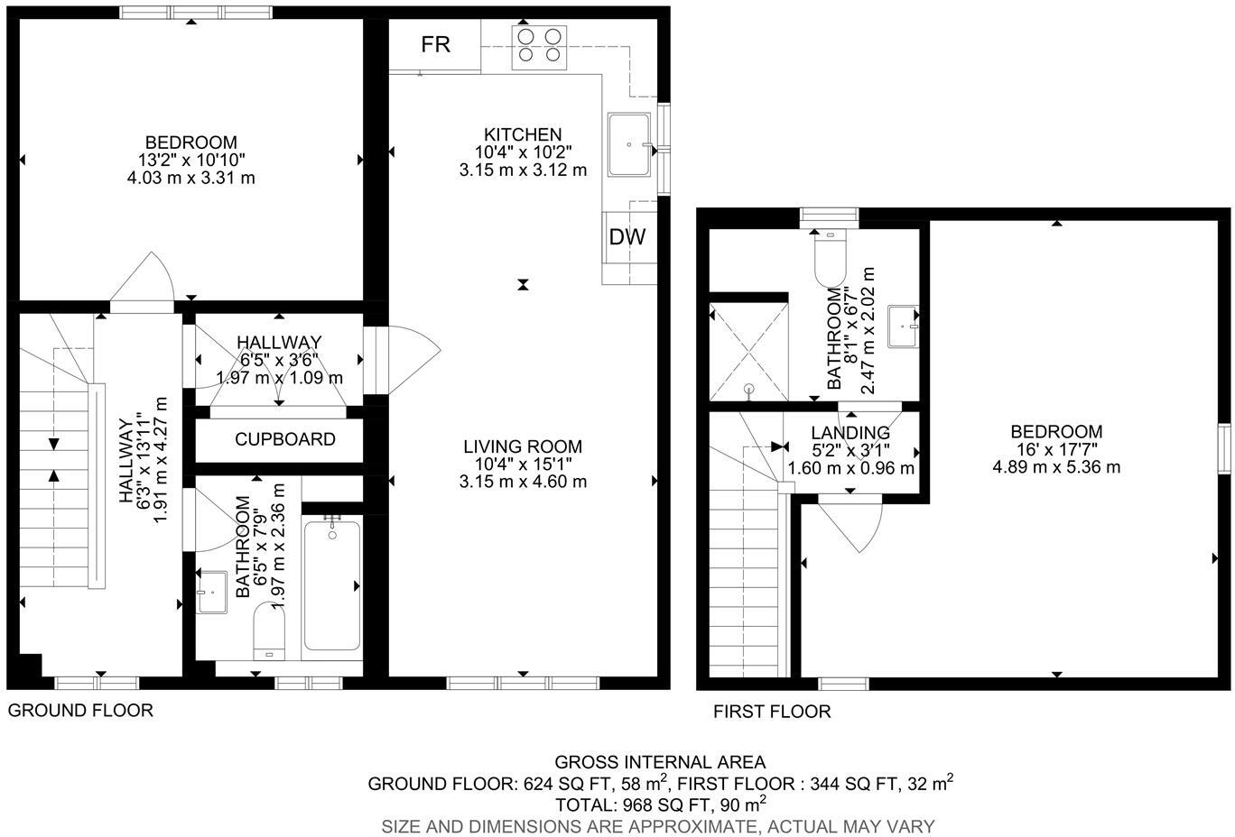
Nestled on Algers Road in the heart of Loughton, this newly built two-bedroom duplex apartment perfectly balances modern style with everyday convenience. Spanning an impressive 968 square feet, the property features a bright and spacious reception room, bathed in natural light to create a warm an...
Property Oracle says ..
Freya Lodge is a new build apartment located in Loughton, Essex. The property benefits from a modern design and finish, with two bedrooms and two bathrooms. The apartment is situated in the Loughton Forest area, which is known for its attractive surroundings and proximity to local amenities. The nearby transportation links include several train stations providing access to London and other parts of the UK. There are also a number of schools in the area, including Roding Valley High School and Oaklands School. The property has a small garden. While the list price of £595,000 is above the average price per square foot for the area, it is comparable to other new-build apartments in the same location. The property is in excellent condition.
Therefore, we give this property 7 / 10. *Disclaimer: This is our option and does constitute a recommendation or financial advice. Do your own research. *
- Price
- 7
- Condition
- 10
- Location
- 8
- Land
- 3
- Bedrooms
- 2
- Bathrooms
- 2
- Sqft (est)
- 968.00
The heatmap indicates the level of crime in the area. The color of the heatmap indicates the crime severity and recency.
Metrics Year-on-Year
- Average area value
- 1,275,000.00 £Increased by 59.80 %
- Est sale value
- 706,640.00 £Increased by 3.11 %
- Average area rental value
- 1,850.00 £/moDecreased by 28.93 %
- Est letting value
- 968.00 £/moDecreased by 50.00 %
- Est rental Yield
- 1.74 %Decreased by 55.61 %
- Crime Rate
- 2.00 %Unchanged by 0.00 %
Agent Activity
Elliott James - Prime Residential created the listing.
Nearby Schools
| Name | Type | Ofsted | Distance |
|---|---|---|---|
| Roding Valley High School | Academy Converter | 0.48 KM | |
| Oaklands School | Other Independent School | 0.83 KM | |
| White Bridge Primary School | Academy Converter | 0.88 KM | |
| Staples Road Primary School | Academy Converter | 1.22 KM | |
| The Alderton Infant School | Academy Converter | 1.60 KM |
Images
Nearby Streets
| Name | Average Price | Average Sqft | Distance |
|---|---|---|---|
| Smart's Lane Mews | £ 0 | 0 | 0.00 KM |
| Catherine Close | £ 0 | 0 | 0.00 KM |
| Loughton Way | £ 0 | 0 | 0.00 KM |
| Warren Hill | £ 0 | 0 | 0.00 KM |
| Oakwood Hill | £ 0 | 0 | 0.00 KM |
Nearby Transport
| Name | NLC | TLC | Distance |
|---|---|---|---|
| Chingford | 6914 | CHI | 4.81 KM |
| Highams Park | 6919 | HIP | 6.87 KM |
| Wood Street | 6954 | WST | 8.56 KM |
| Ilford | 6881 | IFD | 9.26 KM |
| Brimsdown | 6810 | BMD | 9.39 KM |
Nearby Listings
| Address | Price | Type | Score | Distance |
|---|---|---|---|---|
| Freya Lodge, Loughton | £ 595,000 | BUY | 7 / 10 | 0.00 KM |
| Freya Lodge, Loughton | £ 595,000 | BUY | 7 / 10 | 0.00 KM |
| Algers Road, Loughton | £ 445,000 | BUY | 5 / 10 | 0.01 KM |
| Freya Lodge, Loughton | £ 445,000 | BUY | 6 / 10 | 0.01 KM |
| Freya Lodge, Loughton | £ 445,000 | BUY | 7 / 10 | 0.01 KM |
Nearby Properties
| Address | Price | Distance |
|---|---|---|
| 53 Algers Road | £ 1,200,000 | 0.04 KM |
| 72 Algers Road | £ 530,000 | 0.04 KM |
| 51 Algers Road | £ 1,070,000 | 0.04 KM |
| 63 Algers Road | £ 342,000 | 0.07 KM |
| 78 Algers Road | £ 912,500 | 0.07 KM |