Ribble Road, Liverpool, Merseyside, L25
By Venmore
£ 205,000
Reviews
3 out of 5 stars
Venmore says ..
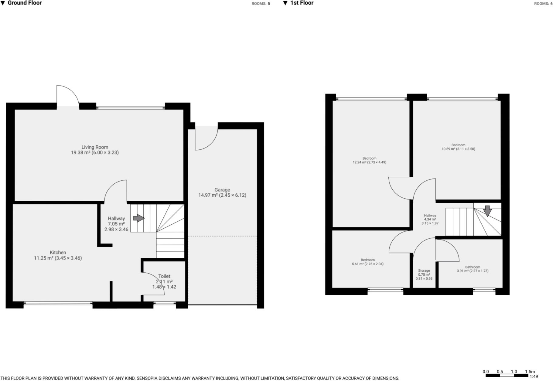
Beautifully Renovated 3-Bedroom Semi-Detached Home – Ideal for First-Time Buyers Step into this stunning, newly renovated three-bedroom semi-detached home, perfectly suited for first-time buyers or growing families. Boasting a sleek, contemporary design throughout, this property ...
Property Oracle says ..
Therefore, we give this property 7 / 10. *Disclaimer: This is our option and does constitute a recommendation or financial advice. Do your own research. *
- Price
- 8
- Condition
- 6
- Location
- 7
- Land
- 7
- Bedrooms
- 3
- Bathrooms
- 2
The heatmap indicates the level of crime in the area. The color of the heatmap indicates the crime severity and recency.
Metrics Year-on-Year
- Average area value
- 399,369.00 £Decreased by 3.66 %
- Average area rental value
- 1,324.00 £/moIncreased by 10.06 %
- Est rental Yield
- 3.98 %Increased by 14.37 %
- Crime Rate
- 10.00 %Unchanged by 0.00 %
from 414,526.00 £
from 1,203.00 £/mo
from 3.48 %
from 10.00 %
Agent Activity
Venmore created the listing.
Nearby Schools
| Name | Type | Ofsted | Distance |
|---|---|---|---|
| Belle Vale Community Primary School | Community School | Good | 0.87 KM |
| Woolton Primary School | Community School | Good | 0.90 KM |
| Much Woolton Catholic Primary School | Voluntary Aided School | Good | 0.98 KM |
| Our Lady Of The Assumption Catholic Primary School | Voluntary Aided School | Good | 1.28 KM |
| Gateacre School | Community School | Requires improvement | 1.33 KM |
Images
Nearby Streets
| Name | Average Price | Average Sqft | Distance |
|---|---|---|---|
| Turner's Court | £ 132,813 | 0 | 0.00 KM |
| The Nook | £ 83,500 | 0 | 0.00 KM |
| Meadow Court | £ 0 | 0 | 0.00 KM |
| Anzio Row | £ 0 | 0 | 0.00 KM |
| Lee Vale Road | £ 0 | 0 | 0.00 KM |
Nearby Transport
| Name | NLC | TLC | Distance |
|---|---|---|---|
| Hunts Cross | 2235 | HNX | 2.23 KM |
| Roby | 2261 | ROB | 3.26 KM |
| Halewood | 2295 | HED | 3.33 KM |
| Huyton | 2160 | HUY | 3.50 KM |
| Liverpool South Parkway | 9709 | LPY | 4.53 KM |
Nearby Listings
| Address | Price | Type | Score | Distance |
|---|---|---|---|---|
| Ribble Road, Liverpool, Merseyside, L25 | £ 205,000 | BUY | 7 / 10 | 0.00 KM |
| Ribble Road, Liverpool, L25 | £ 90,000 | BUY | 7 / 10 | 0.05 KM |
| Ribble Road, Liverpool, Merseyside, L25 | £ 95,000 | BUY | 6 / 10 | 0.05 KM |
| Dee Court, Liverpool, L25 | £ 165,000 | BUY | 6 / 10 | 0.06 KM |
| Ribble Road, Liverpool, L25 | £ 190,000 | BUY | 7 / 10 | 0.11 KM |
Nearby Properties
| Address | Price | Distance |
|---|---|---|
| 28 Dee Court | £ 99,950 | 0.06 KM |
| 25 Dee Court | £ 85,000 | 0.06 KM |
| 19 Dee Court | £ 57,950 | 0.06 KM |
| 17 Dee Court | £ 81,000 | 0.06 KM |
| 15 Ribble Road | £ 34,000 | 0.14 KM |