Molesey Road, Walton On Thames, KT12
By Seymours Estate Agents
£ 695,000
Reviews
3 out of 5 stars
Seymours Estate Agents says ..
* Detached Residence * Deceptively Spacious * Generous Private Garden * Mainline Station and Village Nearby *
Property Oracle says ..
The property is located in a convenient location, close to good schools and transport links. The house itself appears to be in good condition, with well-maintained kitchen and bathrooms, although some minor updates might enhance its appeal. The list price seems reasonable considering the area averages, although more information on comparable properties would allow for a more comprehensive price analysis.
Therefore, we give this property 7 / 10. *Disclaimer: This is our option and does constitute a recommendation or financial advice. Do your own research. *
- Price
- 7
- Condition
- 8
- Location
- 8
- Land
- 7
- Bedrooms
- 4
- Bathrooms
- 3
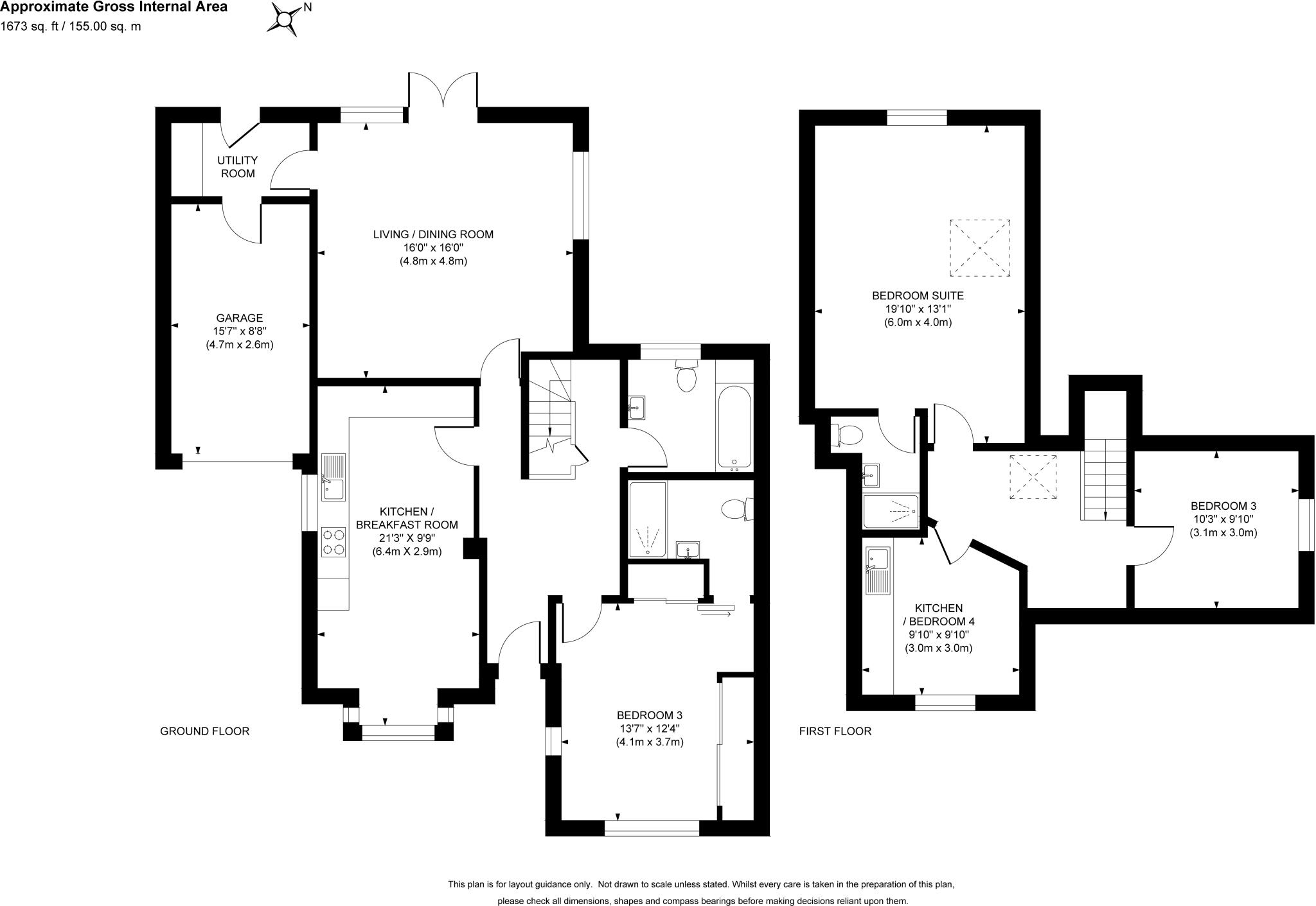
- Sqft (est)
- 1,180.00
The heatmap indicates the level of crime in the area. The color of the heatmap indicates the crime severity and recency.
Metrics Year-on-Year
- Average area value
- 1,532,000.00 £Increased by 47.20 %
- Est sale value
- 1,880,920.00 £Increased by 112.53 %
- Average area rental value
- 4,103.00 £/moIncreased by 15.06 %
- Est letting value
- 4,720.00 £/moIncreased by 100.00 %
- Est rental Yield
- 3.21 %Decreased by 21.90 %
- Crime Rate
- 13.00 %Unchanged by 0.00 %
Agent Activity
Seymours Estate Agents created the listing.
Nearby Schools
| Name | Type | Ofsted | Distance |
|---|---|---|---|
| North East Surrey Secondary Short Stay School | Pupil Referral Unit | Good | 0.12 KM |
| Cardinal Newman Catholic Primary School | Academy Converter | Good | 0.34 KM |
| Bell Farm Primary School | Community School | Good | 0.73 KM |
| Burhill Sure Start Children'S Centre | Children's Centre | 0.88 KM | |
| Burhill Primary School | Foundation School | Good | 0.97 KM |
Images
Nearby Streets
| Name | Average Price | Average Sqft | Distance |
|---|---|---|---|
| Heathfield Road | £ 0 | 0 | 0.00 KM |
| Faulkner's Road | £ 0 | 0 | 0.00 KM |
| Tudor Drive | £ 0 | 0 | 0.00 KM |
| Willow House | £ 2,495,000 | 0 | 0.00 KM |
| Cleveland Close | £ 0 | 0 | 0.00 KM |
Nearby Transport
| Name | NLC | TLC | Distance |
|---|---|---|---|
| Hersham | 5590 | HER | 0.74 KM |
| Walton-On-Thames | 5575 | WAL | 2.27 KM |
| Esher | 5558 | ESH | 4.60 KM |
| Claygate | 5556 | CLG | 5.20 KM |
| Oxshott | 5602 | OXS | 5.26 KM |
Nearby Listings
| Address | Price | Type | Score | Distance |
|---|---|---|---|---|
| Molesey Road, Walton On Thames, KT12 | £ 695,000 | BUY | 7 / 10 | 0.00 KM |
| Molesey Road, Hersham, Walton On Thames, KT12 | £ 500,000 | BUY | 6 / 10 | 0.00 KM |
| Molesey Road, Hersham, Walton-on-Thames, KT12 | £ 575,000 | BUY | 6 / 10 | 0.03 KM |
| Molesey Road, Hersham, KT12 | £ 250,000 | BUY | Unknown | 0.06 KM |
| Claremont Avenue, Hersham, Walton-on-Thames, KT12 | £ 389,950 | BUY | 7 / 10 | 0.09 KM |
Nearby Properties
| Address | Price | Distance |
|---|---|---|
| 121 Molesey Road | £ 329,950 | 0.01 KM |
| 177 Molesey Road | £ 422,500 | 0.01 KM |
| 169 Molesey Road | £ 507,000 | 0.01 KM |
| 149 Molesey Road | £ 300,000 | 0.01 KM |
| 147 Molesey Road | £ 179,950 | 0.01 KM |