Acorn says ..
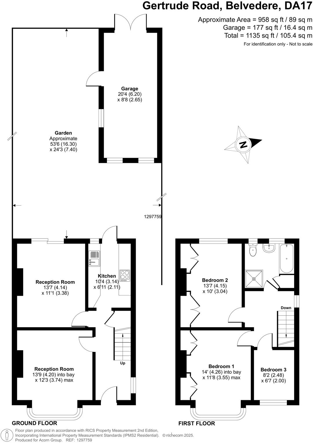
This family home is located within a quiet residential road in between Belvedere Station & Nuxley Village, the accommodation offers an impressive 958sqft of floorspace with tons of potential to add value. As you enter the broad hallway, you’ll find the front reception room on the left w...
Property Oracle says ..
The property is located in Belvedere, Bexley, Greater London. It is within 0.47km of Belvedere train station, providing convenient access to transport links. The proximity to several primary schools with good Ofsted ratings is a positive aspect for families. The presence of local amenities like shops adds to the convenience of the location. Based on the provided images, the property appears to be in need of some modernisation and updating. The carpets, wallpaper, and some fixtures and fittings look dated. The garden also requires attention and landscaping. While structurally sound, cosmetic improvements are necessary throughout. The property includes a garden of approximately 958 square feet. While not expansive, it offers outdoor space, which is a desirable feature in a residential property. The garden appears to be in need of landscaping and maintenance. The list price is £425,000. Considering the property’s size (2,085.50 sqft), the average price per sqft in the area (£448), and the condition requiring modernisation, the price seems slightly higher than the average. However, the larger than average plot size and the desirable location near transport and schools could justify a premium. Nearby comparable properties on Gertrude Road have sold for between £280,000 and £400,000, with significant variation in size and condition. Therefore, a more detailed comparison with similar properties in terms of size, condition, and features would be needed to definitively assess the value.
Therefore, we give this property 6 / 10. *Disclaimer: This is our option and does constitute a recommendation or financial advice. Do your own research. *
- Price
- 6
- Condition
- 6
- Location
- 7
- Land
- 6
- Bedrooms
- 3
- Bathrooms
- 1
- Sqft (est)
- 2,085.50
- Lot (est)
- 958.00
The heatmap indicates the level of crime in the area. The color of the heatmap indicates the crime severity and recency.
Metrics Year-on-Year
- Average area value
- 395,833.00 £Increased by 7.53 %
- Est sale value
- 1,153,281.50 £Increased by 34.55 %
- Average area rental value
- 1,588.00 £/moDecreased by 8.68 %
- Est letting value
- 4,171.00 £/moIncreased by 100.00 %
- Est rental Yield
- 4.81 %Decreased by 15.17 %
- Crime Rate
- 22.00 %Unchanged by 0.00 %
Agent Activity
Acorn created the listing.
Nearby Schools
| Name | Type | Ofsted | Distance |
|---|---|---|---|
| St Augustine Of Canterbury Cofe Primary School | Academy Sponsor Led | Good | 0.57 KM |
| St Augustine'S Children'S Centre | Children's Centre | 0.57 KM | |
| Lessness Heath Primary School | Academy Sponsor Led | Good | 0.73 KM |
| Cornerstone School | Free Schools Special | 0.79 KM | |
| Belvedere Junior School | Academy Sponsor Led | Good | 0.94 KM |
Images
Nearby Streets
| Name | Average Price | Average Sqft | Distance |
|---|---|---|---|
| Orchard Road | £ 175,000 | 0 | 0.00 KM |
| Hailey Road | £ 0 | 0 | 0.00 KM |
| Brook Street | £ 230,000 | 0 | 0.00 KM |
| Chapman Road | £ 0 | 0 | 0.00 KM |
| Baltimore Close | £ 0 | 0 | 0.00 KM |
Nearby Transport
| Name | NLC | TLC | Distance |
|---|---|---|---|
| Belvedere | 5092 | BVD | 0.47 KM |
| Barnehurst | 5089 | BNH | 3.01 KM |
| Abbey Wood | 5131 | ABW | 3.03 KM |
| Erith | 5104 | ERH | 3.04 KM |
| Bexleyheath | 5094 | BXH | 3.36 KM |
Nearby Listings
| Address | Price | Type | Score | Distance |
|---|---|---|---|---|
| Gertrude Road, Belvedere, DA17 | £ 325,000 | BUY | 6 / 10 | 0.00 KM |
| Gertrude Road, Belvedere | £ 425,000 | BUY | 6 / 10 | 0.00 KM |
| Gertrude Road, Belvedere, DA17 | £ 425,000 | BUY | 7 / 10 | 0.02 KM |
| Upper Abbey Road, Belvedere, DA17 | £ 450,000 | BUY | 7 / 10 | 0.11 KM |
| Lyndon Road, Belvedere, DA17 | £ 385,000 | BUY | 6 / 10 | 0.14 KM |
Nearby Properties
| Address | Price | Distance |
|---|---|---|
| 57 Gertrude Road | £ 280,000 | 0.01 KM |
| 81 Gertrude Road | £ 167,500 | 0.01 KM |
| 63 Gertrude Road | £ 187,500 | 0.01 KM |
| 61a Gertrude Road | £ 154,000 | 0.01 KM |
| 101 Gertrude Road | £ 160,000 | 0.01 KM |