BL
Victoria Street, Eccles
By Bluebell Estates
£ 250,000
Bluebell Estates says ..
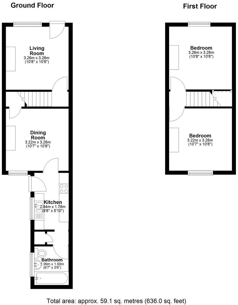
GUIDE PRICE OF £250,000-£260,000 Nestled on the charming Victoria Street in Eccles, this delightful Victorian terraced house presents an excellent opportunity for first-time buyers. With two spacious double bedrooms, this cottage is both inviting and practical, making it an ideal choice ...
- Bedrooms
- 2
- Bathrooms
- 1
- Sqft (est)
- 636.15
The heatmap indicates the level of crime in the area. The color of the heatmap indicates the crime severity and recency.
Metrics Year-on-Year
- Average area value
- 259,821.00 £Increased by 8.05 %
- Est sale value
- 201,659.55 £Increased by 23.83 %
- Average area rental value
- 1,011.00 £/moIncreased by 5.53 %
- Est letting value
- 636.15 £/moUnchanged by 0.00 %
- Est rental Yield
- 4.67 %Decreased by 2.30 %
- Crime Rate
- 73.00 %Unchanged by 0.00 %
from 240,470.00 £
from 162,854.40 £
from 958.00 £/mo
from 636.15 £/mo
from 4.78 %
from 73.00 %
Agent Activity
Bluebell Estates created the listing.
Nearby Schools
| Name | Type | Ofsted | Distance |
|---|---|---|---|
| St Mark'S Church Of England Primary School, Eccles | Academy Converter | 0.38 KM | |
| Burham Church Of England Primary School | Voluntary Controlled School | Good | 1.30 KM |
| Burham Children'S Centre | Children's Centre | 1.36 KM | |
| St Peter'S Church Of England Primary School | Voluntary Controlled School | Good | 1.64 KM |
| Valley Invicta Primary School At Aylesford | Academy Sponsor Led | Good | 2.58 KM |
Images
Nearby Streets
| Name | Average Price | Average Sqft | Distance |
|---|---|---|---|
| Bell Lane | £ 0 | 0 | 0.00 KM |
| Old Church Road | £ 737,571 | 0 | 0.00 KM |
Nearby Transport
| Name | NLC | TLC | Distance |
|---|---|---|---|
| Aylesford | 5162 | AYL | 2.25 KM |
| New Hythe | 5238 | NHE | 2.52 KM |
| Snodland | 5189 | SDA | 3.45 KM |
| Barming | 5133 | BMG | 3.74 KM |
| Halling | 5173 | HAI | 5.20 KM |
Nearby Listings
| Address | Price | Type | Score | Distance |
|---|---|---|---|---|
| Victoria Street, Eccles | £ 250,000 | BUY | Unknown | 0.00 KM |
| Victoria Street, Eccles | £ 275,000 | BUY | Unknown | 0.01 KM |
| Victoria Street, Eccles, Aylesford, Kent. ME20 | £ 250,000 | BUY | Unknown | 0.02 KM |
| Victoria Street, Eccles, Aylesford | £ 270,000 | BUY | 7 / 10 | 0.04 KM |
| Cork Street, Eccles | £ 425,000 | BUY | 6 / 10 | 0.05 KM |
Nearby Properties
| Address | Price | Distance |
|---|---|---|
| 14 Victoria Street | £ 237,000 | 0.01 KM |
| 17 Victoria Street | £ 125,000 | 0.01 KM |
| 9 Victoria Street | £ 145,000 | 0.01 KM |
| 28 Victoria Street | £ 210,000 | 0.01 KM |
| 12 Victoria Street | £ 142,500 | 0.01 KM |