Foxtons says ..
A bright 3 bedroom house featuring a stylish kitchen, spacious private garden, 3 well proportioned bedrooms and a modern kitchen design.
Property Oracle says ..
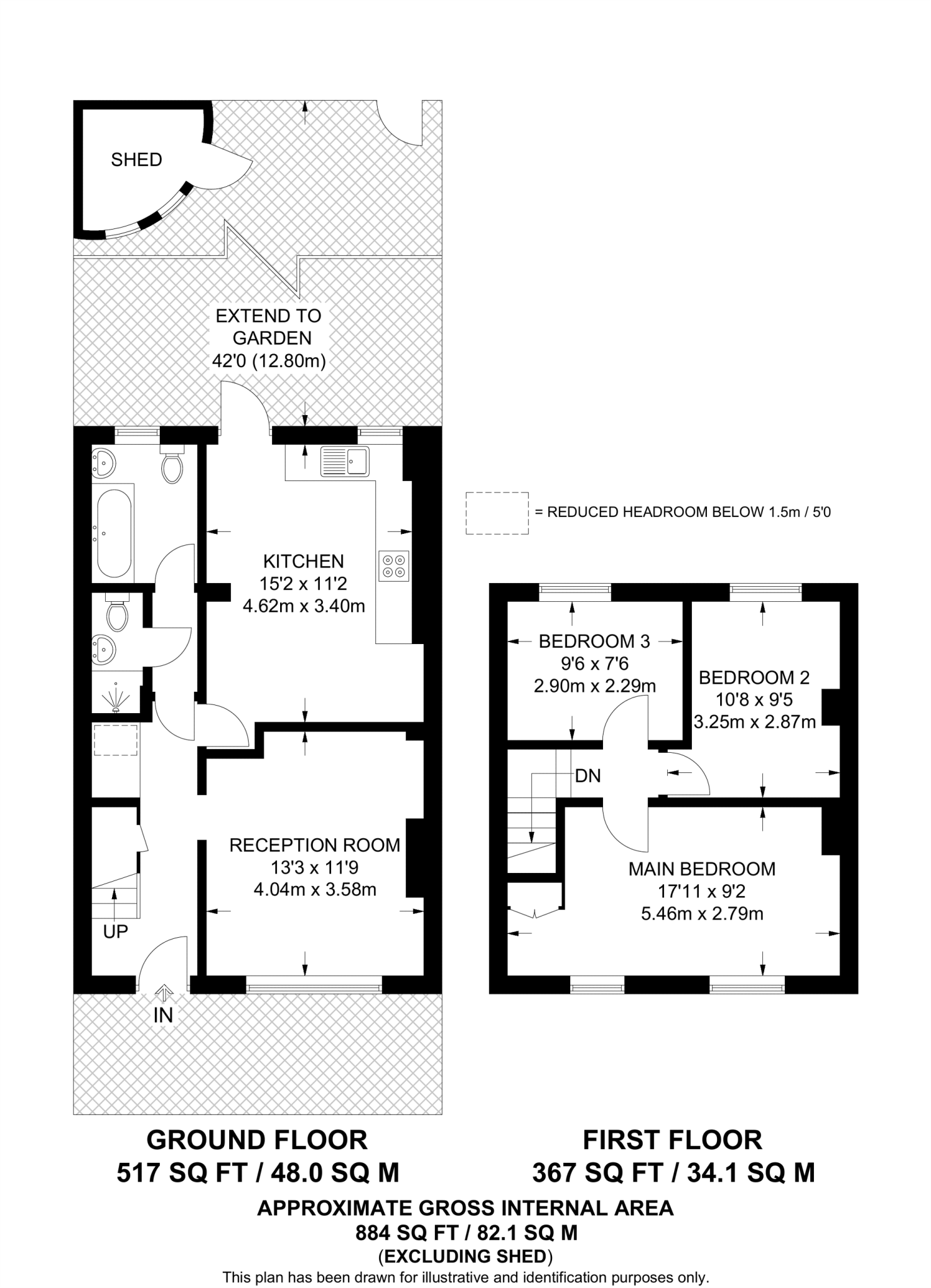
This property is a three-bedroom house located in Catford, London. The asking price of £450,000 is slightly above the average price for the area (£448,603), but the property is larger than average at 884 sqft compared to the average of 867 sqft. The property benefits from a garden, which is a desirable feature in London. The condition of the property appears to be good, based on the provided photos. The location is in Catford, which is a reasonably convenient location with access to transport links and local amenities. However, more specific information on the proximity to schools, shops, and transport would be needed for a more detailed assessment of the location score.
Therefore, we give this property 7 / 10. *Disclaimer: This is our option and does constitute a recommendation or financial advice. Do your own research. *
- Price
- 7
- Condition
- 8
- Location
- 7
- Land
- 7
- Bedrooms
- 3
- Bathrooms
- 1
- Sqft (est)
- 884.00
The heatmap indicates the level of crime in the area. The color of the heatmap indicates the crime severity and recency.
Metrics Year-on-Year
- Average area value
- 323,750.00 £Decreased by 24.60 %
- Est sale value
- 383,656.00 £Decreased by 11.43 %
- Average area rental value
- 1,700.00 £/moDecreased by 5.97 %
- Est letting value
- 1,768.00 £/moUnchanged by 0.00 %
- Est rental Yield
- 6.30 %Increased by 24.75 %
- Crime Rate
- 6.00 %Unchanged by 0.00 %
Agent Activity
Foxtons created the listing.
Nearby Schools
| Name | Type | Ofsted | Distance |
|---|---|---|---|
| New Woodlands School | Community Special School | Good | 0.38 KM |
| Downderry Children'S Centre | Children's Centre | 0.41 KM | |
| Downderry Primary School | Community School | Outstanding | 0.43 KM |
| Forster Park Primary School | Community School | Good | 0.54 KM |
| Torridon Primary School | Community School | Outstanding | 0.56 KM |
Images
Nearby Streets
| Name | Average Price | Average Sqft | Distance |
|---|---|---|---|
| Excalibur Drive | £ 380,000 | 0 | 0.00 KM |
| Greenside Close | £ 450,000 | 0 | 0.00 KM |
| Oakridge Lane | £ 0 | 0 | 0.00 KM |
| Connisborough Crescent | £ 0 | 0 | 0.00 KM |
| Merlinmead | £ 0 | 0 | 0.00 KM |
Nearby Transport
| Name | NLC | TLC | Distance |
|---|---|---|---|
| Beckenham Hill | 5076 | BEC | 1.88 KM |
| Bellingham | 5062 | BGM | 2.06 KM |
| Ravensbourne | 5083 | RVB | 2.12 KM |
| Hither Green | 5107 | HGR | 2.23 KM |
| Grove Park | 5139 | GRP | 2.48 KM |
Nearby Listings
| Address | Price | Type | Score | Distance |
|---|---|---|---|---|
| Waters Road, Catford, London, SE6 | £ 450,000 | BUY | 7 / 10 | 0.00 KM |
| Waters Road, London, SE6 | £ 375,000 | BUY | Unknown | 0.04 KM |
| Whitefoot Lane, Bromley | £ 475,000 | BUY | 6 / 10 | 0.04 KM |
| Whitefoot Lane, BROMLEY, Kent, BR1 | £ 550,000 | BUY | 6 / 10 | 0.05 KM |
| Whitefoot Lane, Bromley, BR1 | £ 450,000 | BUY | 6 / 10 | 0.05 KM |
Nearby Properties
| Address | Price | Distance |
|---|---|---|
| 2a Waters Road | £ 250,000 | 0.03 KM |
| 1a Waters Road | £ 226,000 | 0.03 KM |
| 34 Waters Road | £ 292,600 | 0.03 KM |
| 2d Waters Road | £ 218,000 | 0.03 KM |
| 38 Waters Road | £ 350,000 | 0.03 KM |