Woodville Court, Broxburn, EH52
By KnightBain Estate Agents
£ 210,000
Reviews
3 out of 5 stars
KnightBain Estate Agents says ..
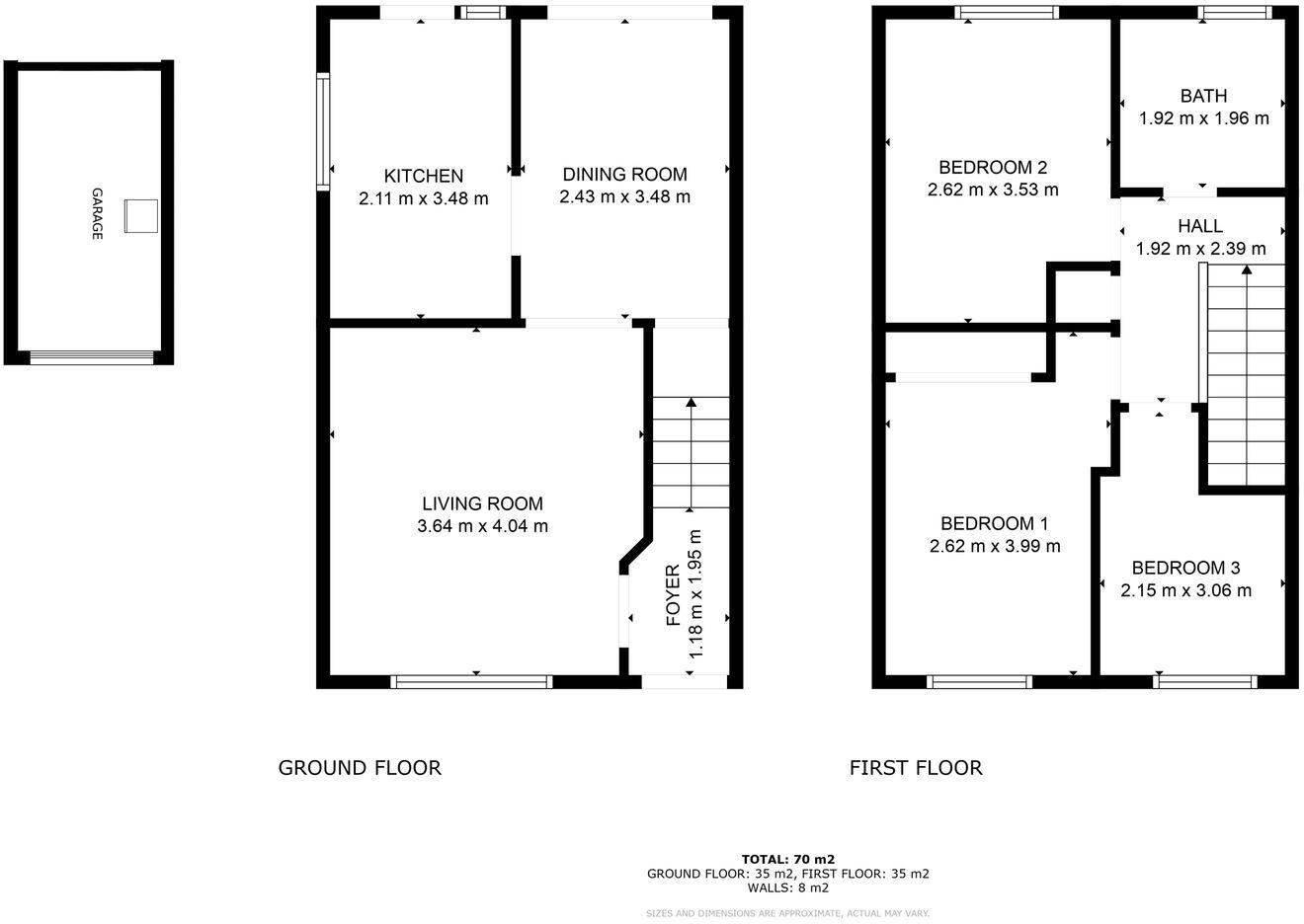
Immaculately presented 3-bed semi-detached house in sought-after area. Three double bedrooms, modern kitchen, bright living room, garage, driveway, spacious garden. Convenient location with easy access to transport links and town centre. Ideal for family living and outdoor enjoyment.
Property Oracle says ..
Therefore, we give this property 7 / 10. *Disclaimer: This is our option and does constitute a recommendation or financial advice. Do your own research. *
- Price
- 8
- Condition
- 8
- Location
- 7
- Land
- 7
- Bedrooms
- 3
- Bathrooms
- 1
The heatmap indicates the level of crime in the area. The color of the heatmap indicates the crime severity and recency.
Metrics Year-on-Year
- Average area value
- 294,275.00 £Increased by 4.32 %
- Average area rental value
- 1,350.00 £/moIncreased by 9.49 %
- Est rental Yield
- 5.51 %Increased by 5.15 %
- Crime Rate
- 0.00 %
from 282,099.00 £
from 1,233.00 £/mo
from 5.24 %
from 0.00 %
Agent Activity
KnightBain Estate Agents created the listing.
Images
Nearby Streets
| Name | Average Price | Average Sqft | Distance |
|---|---|---|---|
| Kirkhill Court | £ 0 | 0 | 0.00 KM |
| Mcintosh Court | £ 0 | 0 | 0.00 KM |
| Mauldeth Road | £ 0 | 0 | 0.00 KM |
| Galmeilen | £ 0 | 0 | 0.00 KM |
| Holmes Holdings | £ 0 | 0 | 0.00 KM |
Nearby Transport
| Name | NLC | TLC | Distance |
|---|---|---|---|
| Uphall | 9373 | UHA | 2.72 KM |
| Livingston South | 9372 | LVG | 7.06 KM |
| Kirknewton | 9230 | KKN | 7.22 KM |
| Livingston North | 9371 | LSN | 7.76 KM |
Nearby Listings
| Address | Price | Type | Score | Distance |
|---|---|---|---|---|
| Woodville Court, Broxburn, EH52 | £ 210,000 | BUY | 7 / 10 | 0.00 KM |
| Woodville Court, Broxburn, EH52 | £ 185,000 | BUY | 7 / 10 | 0.03 KM |
| Woodville Court, Broxburn, EH52 | £ 185,000 | BUY | 7 / 10 | 0.08 KM |
| Woodville Court, Broxburn, EH52 | £ 185,000 | BUY | Unknown | 0.14 KM |
| Woodville Court, Broxburn, EH52 | £ 194,999 | BUY | 7 / 10 | 0.15 KM |