EL
Hazelwood Lane, London, N13
By Element Properties & Co
£ 475,000
Reviews
4 out of 5 stars
Element Properties & Co says ..
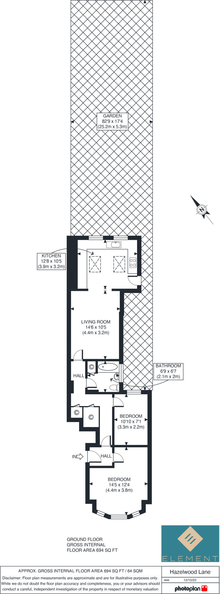
Element Properties & Co are pleased to present a wonderfully presented, two bedroom garden flat located on the ground floor of a period conversion. Boasting approx. 694 square feet of gross internal space, this property is immaculately presented and offers two good sized bedrooms,...
Property Oracle says ..
Therefore, we give this property 8 / 10. *Disclaimer: This is our option and does constitute a recommendation or financial advice. Do your own research. *
- Price
- 9
- Condition
- 8
- Location
- 8
- Land
- 7
- Bedrooms
- 2
- Bathrooms
- 1
- Sqft (est)
- 2,026.84
The heatmap indicates the level of crime in the area. The color of the heatmap indicates the crime severity and recency.
Metrics Year-on-Year
- Average area value
- 567,499.00 £Increased by 3.12 %
- Est sale value
- 861,407.00 £Decreased by 14.31 %
- Average area rental value
- 1,781.00 £/moIncreased by 0.91 %
- Est letting value
- 2,026.84 £/moUnchanged by 0.00 %
- Est rental Yield
- 3.77 %Decreased by 2.08 %
- Crime Rate
- 4.00 %Unchanged by 0.00 %
from 550,327.00 £
from 1,005,312.64 £
from 1,765.00 £/mo
from 2,026.84 £/mo
from 3.85 %
from 4.00 %
Agent Activity
Element Properties & Co created the listing.
Nearby Schools
| Name | Type | Ofsted | Distance |
|---|---|---|---|
| Hazelwood Junior School | Community School | Good | 0.20 KM |
| Hazelwood Infant School | Community School | Good | 0.20 KM |
| Hazelwood Children'S Centre | Children's Centre | 0.24 KM | |
| St Anne'S Catholic High School For Girls | Voluntary Aided School | Outstanding | 0.57 KM |
| Palmers Green High School | Other Independent School | 0.77 KM |
Images
Nearby Streets
| Name | Average Price | Average Sqft | Distance |
|---|---|---|---|
| Bourne Hill | £ 0 | 0 | 0.00 KM |
| The Triangle | £ 0 | 0 | 0.00 KM |
| Mia Mews | £ 0 | 0 | 0.00 KM |
| Bridge Drive | £ 0 | 0 | 0.00 KM |
| Chequers Way | £ 0 | 0 | 0.00 KM |
Nearby Transport
| Name | NLC | TLC | Distance |
|---|---|---|---|
| Palmers Green | 6021 | PAL | 0.75 KM |
| Winchmore Hill | 6024 | WIH | 1.67 KM |
| Bowes Park | 6027 | BOP | 2.31 KM |
| Grange Park | 6029 | GPK | 2.70 KM |
| Alexandra Palace | 6025 | AAP | 2.99 KM |
Nearby Listings
| Address | Price | Type | Score | Distance |
|---|---|---|---|---|
| Hazelwood Lane, London, N13 | £ 475,000 | BUY | 8 / 10 | 0.00 KM |
| Hazelwood Lane, Palmers Green, N13 | £ 475,000 | BUY | 8 / 10 | 0.01 KM |
| Lightcliffe Road, London, N13 | £ 395,000 | BUY | Unknown | 0.06 KM |
| Hazelwood Lane, Palmers Green, London, N13 | £ 850,000 | BUY | 6 / 10 | 0.07 KM |
| Hazelwood Lane, Palmers Green, London, N13 | £ 435,000 | BUY | 6 / 10 | 0.07 KM |
Nearby Properties
| Address | Price | Distance |
|---|---|---|
| 94 Hazelwood Lane | £ 406,000 | 0.06 KM |
| 92 Hazelwood Lane | £ 266,500 | 0.06 KM |
| 56b Hazelwood Lane | £ 89,995 | 0.06 KM |
| 60 Hazelwood Lane | £ 400,000 | 0.06 KM |
| 86 Hazelwood Lane | £ 65,000 | 0.06 KM |