Bond Oxborough Phillips says ..
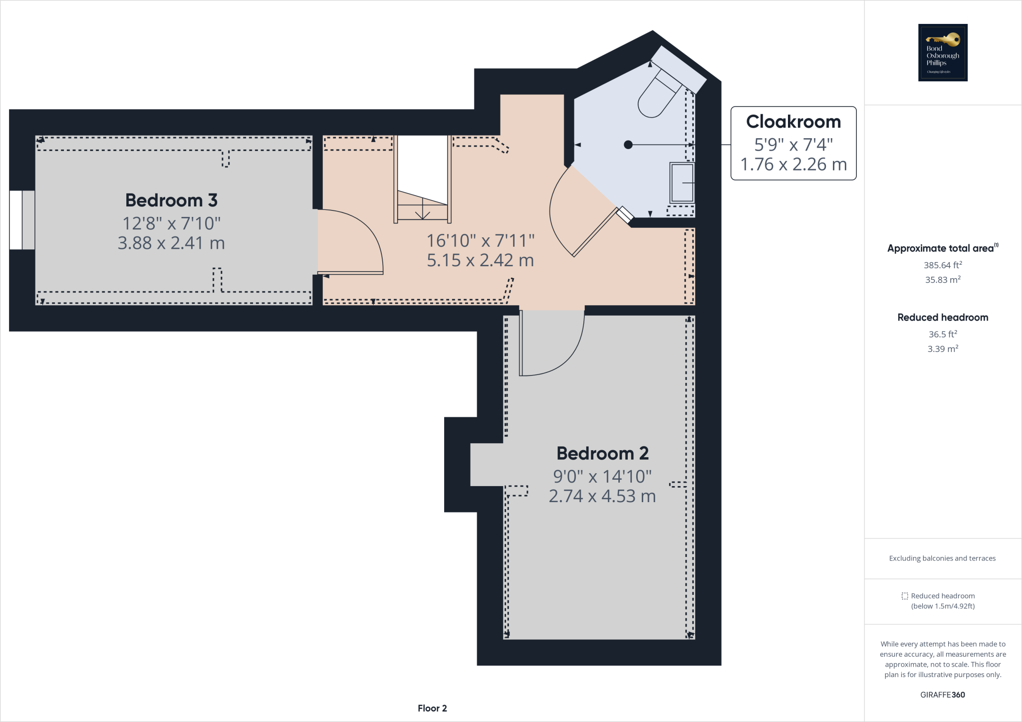
Surprisingly spacious and set over two floors, this 3-bedroom maisonette features its own private entrance, bright living/dining space, and a flexible layout—including a large landing and handy cloakroom upstairs. Just a short walk to town, shops, and amenities, with one allocated parking s...
Property Oracle says ..
Therefore, we give this property 4 / 10. *Disclaimer: This is our option and does constitute a recommendation or financial advice. Do your own research. *
- Price
- 5
- Condition
- 6
- Location
- 7
- Land
- 1
- Bedrooms
- 3
- Bathrooms
- 1
- Sqft (est)
- 45.21
The heatmap indicates the level of crime in the area. The color of the heatmap indicates the crime severity and recency.
Metrics Year-on-Year
- Average area value
- 319,000.00 £Increased by 2.65 %
- Est sale value
- 16,275.60 £Increased by 3.75 %
- Average area rental value
- 833.00 £/moIncreased by 0.48 %
- Est letting value
- 0.00 £/mo
- Est rental Yield
- 3.13 %Decreased by 2.19 %
- Crime Rate
- 37.00 %Unchanged by 0.00 %
from 310,773.00 £
from 15,687.87 £
from 829.00 £/mo
from 0.00 £/mo
from 3.20 %
from 37.00 %
Agent Activity
Bond Oxborough Phillips created the listing.
Nearby Schools
| Name | Type | Ofsted | Distance |
|---|---|---|---|
| Okehampton College | Academy Converter | 0.34 KM | |
| Okehampton Area Children'S Centre | Children's Centre | 0.34 KM | |
| Okehampton Primary School And Foundation Unit | Academy Converter | 0.76 KM | |
| St James Church Of England Primary And Nursery School | Free Schools | 1.39 KM | |
| Exbourne Church Of England Primary School | Academy Converter | 6.89 KM |
Images
Nearby Streets
| Name | Average Price | Average Sqft | Distance |
|---|---|---|---|
| Mill Road | £ 0 | 0 | 0.00 KM |
| Ashley Road | £ 0 | 0 | 0.00 KM |
| Courtenay Road | £ 0 | 0 | 0.00 KM |
| West View Road | £ 0 | 0 | 0.00 KM |
| Market Street | £ 0 | 0 | 0.00 KM |
Nearby Transport
| Name | NLC | TLC | Distance |
|---|---|---|---|
| Okehampton | 5786 | OKE | 0.89 KM |
| Sampford Courtenay | 8724 | SMC | 6.55 KM |
Nearby Listings
| Address | Price | Type | Score | Distance |
|---|---|---|---|---|
| Okehampton, Devon | £ 165,000 | BUY | 4 / 10 | 0.00 KM |
| East Street, Okehampton, Devon, EX20 | £ 119,950 | BUY | 7 / 10 | 0.04 KM |
| Okehampton, Devon, EX20 | £ 118,000 | BUY | 5 / 10 | 0.04 KM |
| East Street, Okehampton, Devon, EX20 | £ 125,000 | BUY | 5 / 10 | 0.04 KM |
| The Chantry, East Street, Okehampton, Devon | £ 129,950 | BUY | 6 / 10 | 0.04 KM |
Nearby Properties
| Address | Price | Distance |
|---|---|---|
| 54 Northfield Road | £ 86,000 | 0.08 KM |
| 83 Northfield Road | £ 145,000 | 0.08 KM |
| 73a Northfield Road | £ 169,950 | 0.08 KM |
| 66 Northfield Road | £ 165,000 | 0.08 KM |
| 97 Northfield Road | £ 128,000 | 0.08 KM |