Joseph Scott says ..
Joseph Scott - A Chain Free!
Property Oracle says ..
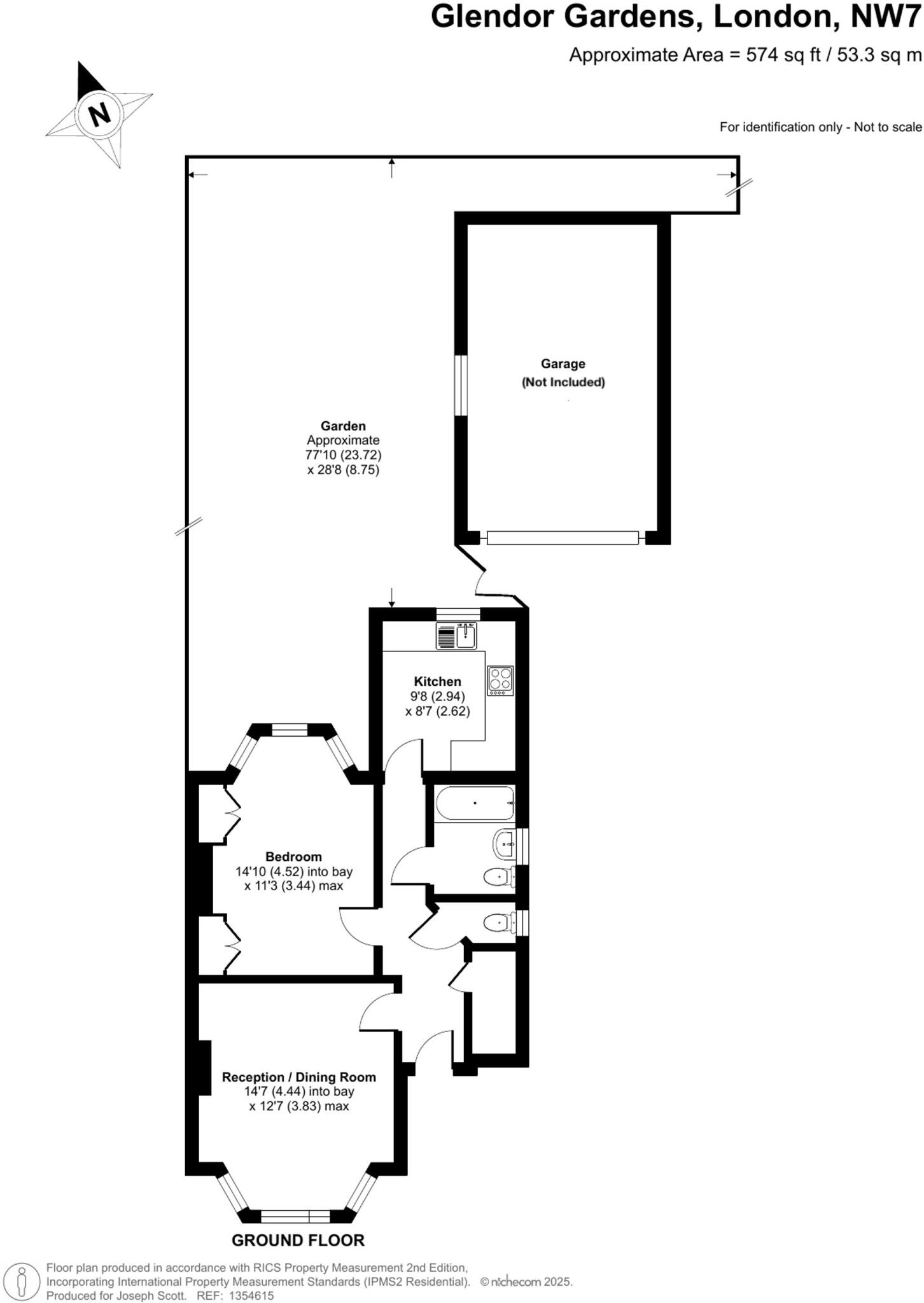
This is a one-bedroom maisonette located in Mill Hill, London. The property is in fair condition, but could benefit from some modernisation. The property has a decent sized garden. The property is located close to schools and transport links. The property is listed for £345,000, which seems reasonable given the condition of the property and the location.
Therefore, we give this property 6 / 10. *Disclaimer: This is our option and does constitute a recommendation or financial advice. Do your own research. *
- Price
- 7
- Condition
- 5
- Location
- 7
- Land
- 7
- Bedrooms
- 1
- Bathrooms
- 1
The heatmap indicates the level of crime in the area. The color of the heatmap indicates the crime severity and recency.
Metrics Year-on-Year
- Average area value
- 696,062.00 £Decreased by 2.02 %
- Average area rental value
- 2,443.00 £/moDecreased by 15.35 %
- Est rental Yield
- 4.21 %Decreased by 13.55 %
- Crime Rate
- 9.00 %Unchanged by 0.00 %
from 710,410.00 £
from 2,886.00 £/mo
from 4.87 %
from 9.00 %
Agent Activity
Joseph Scott created the listing.
Nearby Schools
| Name | Type | Ofsted | Distance |
|---|---|---|---|
| Mathilda Marks-Kennedy Jewish Primary School | Voluntary Aided School | Outstanding | 0.47 KM |
| Courtland School | Community School | Outstanding | 0.86 KM |
| St Martin'S School | Other Independent School | Good | 0.88 KM |
| Fairway Primary School And Children'S Centre | Community School | Good | 0.88 KM |
| Fairway Primary School And Children'S Centre | Children's Centre | 0.91 KM |
Images
Nearby Streets
| Name | Average Price | Average Sqft | Distance |
|---|---|---|---|
| Manor Drive | £ 925,000 | 0 | 0.00 KM |
| Limes Avenue | £ 999,000 | 0 | 0.00 KM |
| Station Road | £ 0 | 0 | 0.00 KM |
| Marsh Lane | £ 2,044,158 | 0 | 0.00 KM |
| Mill Hill Circus | £ 0 | 0 | 0.00 KM |
Nearby Transport
| Name | NLC | TLC | Distance |
|---|---|---|---|
| Mill Hill Broadway | 1527 | MIL | 0.94 KM |
| Elstree And Borehamwood | 1542 | ELS | 4.66 KM |
| Hendon | 1522 | HEN | 4.75 KM |
| Wembley Stadium | 1509 | WCX | 8.05 KM |
| Kenton | 1399 | KNT | 8.11 KM |
Nearby Listings
| Address | Price | Type | Score | Distance |
|---|---|---|---|---|
| Glendor Gardens, London, NW7 | £ 345,000 | BUY | 6 / 10 | 0.00 KM |
| Glendor Gardens, Mill Hill, NW7 | £ 425,000 | BUY | 7 / 10 | 0.01 KM |
| Scout Way, Mill Hill, London, NW7 | £ 315,000 | BUY | 5 / 10 | 0.08 KM |
| Scout Way, Mill Hill, London, NW7 | £ 310,000 | BUY | 6 / 10 | 0.08 KM |
| Watford Way, Mill Hill, NW7 | £ 435,000 | BUY | 7 / 10 | 0.14 KM |
Nearby Properties
| Address | Price | Distance |
|---|---|---|
| 25 Glendor Gardens | £ 350,000 | 0.01 KM |
| 7 Glendor Gardens | £ 105,000 | 0.01 KM |
| 1a Glendor Gardens | £ 270,000 | 0.01 KM |
| 1c Glendor Gardens | £ 207,000 | 0.01 KM |
| 31 Glendor Gardens | £ 615,000 | 0.01 KM |