Twinnies Road, Wilmslow, SK9
By The Good Estate Agent
£ 299,000
Reviews
3 out of 5 stars
The Good Estate Agent says ..
The Good Estate Agent are pleased to bring to the market this f...
Property Oracle says ..
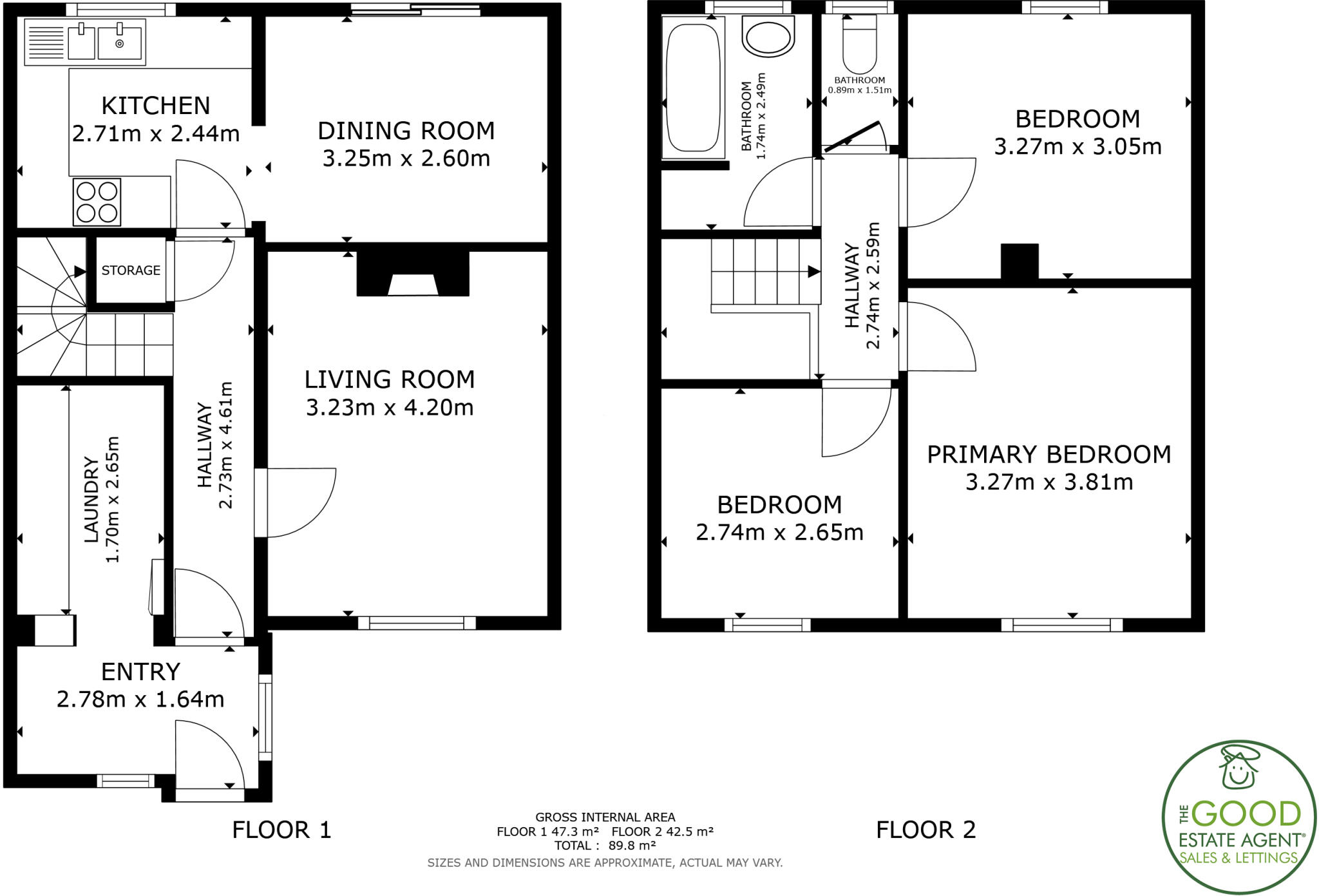
This is a three-bedroom terraced property located on Twinnies Road in Wilmslow, Cheshire. The property benefits from a garden and is situated in a convenient location with access to nearby schools and transportation links. While the property is in reasonable condition, some areas may benefit from modernisation. The asking price of £299,000 appears to be in line with similar properties in the area. The property is located 1.36 KM from Wilmslow train station. The property is also located close to Lacey Green Primary Academy.
Therefore, we give this property 7 / 10. *Disclaimer: This is our option and does constitute a recommendation or financial advice. Do your own research. *
- Price
- 8
- Condition
- 6
- Location
- 7
- Land
- 7
- Bedrooms
- 3
- Bathrooms
- 1
- Sqft (est)
- 334.22
The heatmap indicates the level of crime in the area. The color of the heatmap indicates the crime severity and recency.
Metrics Year-on-Year
- Average area value
- 674,983.00 £Increased by 4.16 %
- Est sale value
- 221,587.86 £Increased by 78.71 %
- Average area rental value
- 2,332.00 £/moIncreased by 16.72 %
- Est letting value
- 668.44 £/moIncreased by 100.00 %
- Est rental Yield
- 4.15 %Increased by 12.16 %
- Crime Rate
- 26.00 %Unchanged by 0.00 %
Agent Activity
The Good Estate Agent created the listing.
Nearby Schools
| Name | Type | Ofsted | Distance |
|---|---|---|---|
| Lacey Green Primary Academy | Academy Converter | 0.54 KM | |
| Wilmslow Preparatory School | Other Independent School | 1.38 KM | |
| Handforth Grange Primary School | Academy Converter | 1.82 KM | |
| Wilmslow High School | Community School | Good | 1.83 KM |
| Oakenclough & Poynyon Children'S Centre | Children's Centre | 1.84 KM |
Images
Nearby Streets
| Name | Average Price | Average Sqft | Distance |
|---|---|---|---|
| Prescott Road | £ 325,000 | 0 | 0.00 KM |
| Orchid Close | £ 0 | 0 | 0.00 KM |
| Honeysuckle Close | £ 0 | 0 | 0.00 KM |
| Poppy Road | £ 704,983 | 0 | 0.00 KM |
| Bramble Road | £ 850,000 | 0 | 0.00 KM |
Nearby Transport
| Name | NLC | TLC | Distance |
|---|---|---|---|
| Wilmslow | 2774 | WML | 1.36 KM |
| Styal | 2868 | SYA | 1.61 KM |
| Handforth | 2767 | HTH | 1.99 KM |
| Heald Green | 2860 | HDG | 3.52 KM |
| Alderley Edge | 2760 | ALD | 3.95 KM |
Nearby Listings
| Address | Price | Type | Score | Distance |
|---|---|---|---|---|
| Twinnies Road, WILMSLOW, Cheshire, SK9 | £ 320,000 | BUY | 6 / 10 | 0.00 KM |
| Twinnies Road, Wilmslow, SK9 | £ 299,000 | BUY | 7 / 10 | 0.00 KM |
| Twinnies Road, Wilmslow, SK9 | £ 300,000 | BUY | 7 / 10 | 0.06 KM |
| Clough avenue, wilmslow, sk9 | £ 300,000 | BUY | 7 / 10 | 0.11 KM |
| Sycamore Close, Wilmslow | £ 295,000 | BUY | 8 / 10 | 0.12 KM |
Nearby Properties
| Address | Price | Distance |
|---|---|---|
| 66 Twinnies Road | £ 275,000 | 0.00 KM |
| 46 Twinnies Road | £ 314,500 | 0.00 KM |
| 36 Twinnies Road | £ 333,500 | 0.00 KM |
| 65 Twinnies Road | £ 133,500 | 0.00 KM |
| 60 Twinnies Road | £ 259,950 | 0.00 KM |