AB
Badwell Road, Wyverstone, Stowmarket, Suffolk, IP14
By Abbotts
£ 500,000
Reviews
3 out of 5 stars
Abbotts says ..
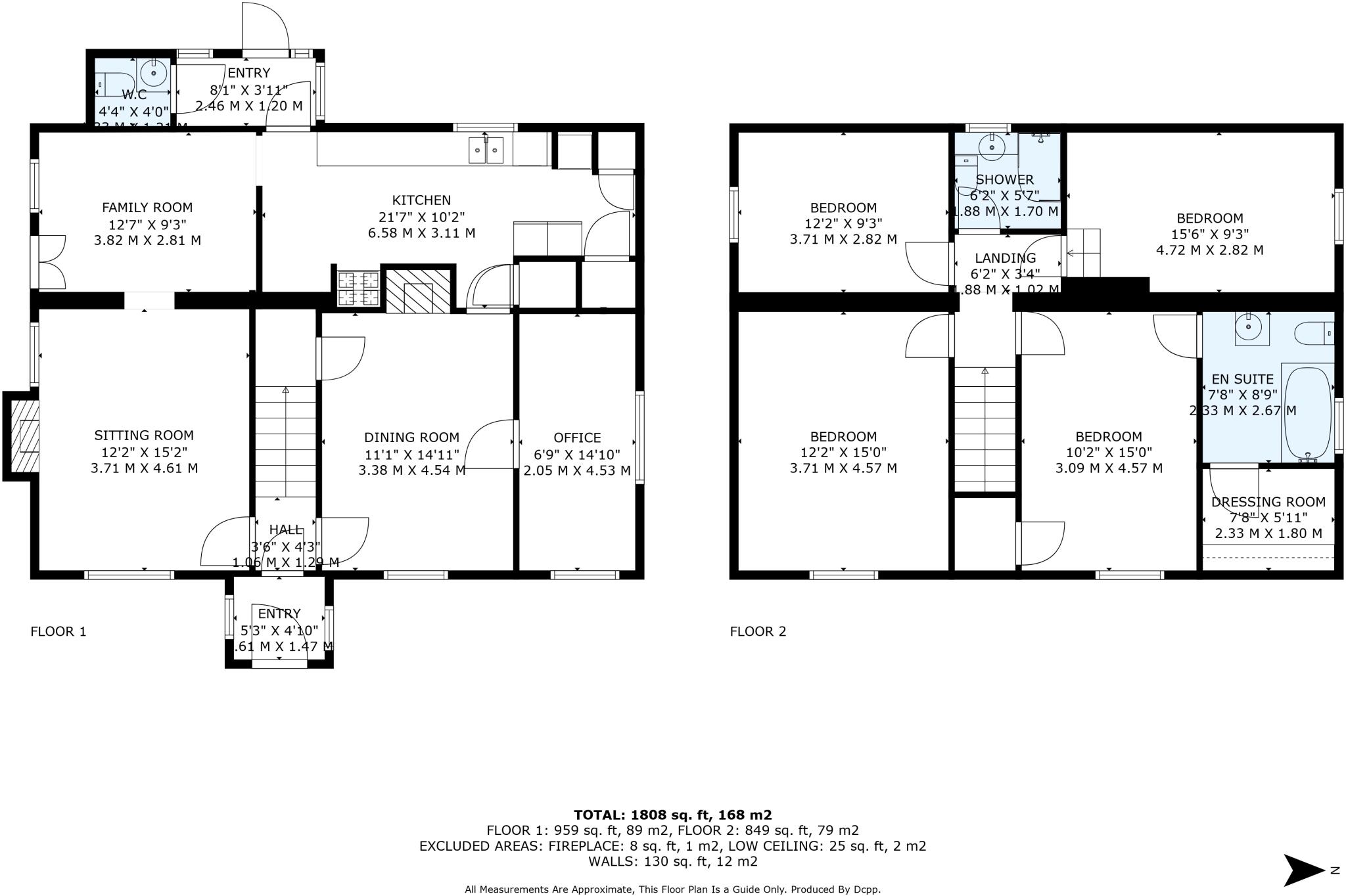
***WHAT A BEAUTIFUL FLINT COTTAGE*** Charming 19th Century Flint Cottage in Idyllic Countryside Setting – Wyverstone Nestled in the heart of the sought-after Suffolk village of Wyverstone, this enchanting four-bedroom flint cottage, dating back to circa 1820, effortles...
Property Oracle says ..
Therefore, we give this property 7 / 10. *Disclaimer: This is our option and does constitute a recommendation or financial advice. Do your own research. *
- Price
- 7
- Condition
- 8
- Location
- 7
- Land
- 7
- Bedrooms
- 4
- Bathrooms
- 2
The heatmap indicates the level of crime in the area. The color of the heatmap indicates the crime severity and recency.
Metrics Year-on-Year
- Average area value
- 396,111.00 £Decreased by 1.72 %
- Average area rental value
- 1,217.00 £/moIncreased by 20.26 %
- Est rental Yield
- 3.69 %Increased by 22.59 %
- Crime Rate
- 3.00 %Unchanged by 0.00 %
from 403,045.00 £
from 1,012.00 £/mo
from 3.01 %
from 3.00 %
Agent Activity
Abbotts created the listing.
Nearby Schools
| Name | Type | Ofsted | Distance |
|---|---|---|---|
| Bacton Primary School | Academy Converter | Requires improvement | 3.68 KM |
| Crawford'S Church Of England Primary School | Academy Converter | 5.44 KM | |
| Walsham-Le-Willows Church Of England Voluntary Controlled Primary School | Voluntary Controlled School | Good | 5.57 KM |
| Old Newton Church Of England Primary School | Academy Converter | Good | 7.10 KM |
| Elmswell Community Primary School | Community School | Good | 7.37 KM |
Images
Nearby Streets
| Name | Average Price | Average Sqft | Distance |
|---|---|---|---|
| College Lane | £ 0 | 0 | 0.00 KM |
| Church View | £ 0 | 0 | 0.00 KM |
Nearby Transport
| Name | NLC | TLC | Distance |
|---|---|---|---|
| Elmswell | 7349 | ESW | 7.69 KM |
| Stowmarket | 7355 | SMK | 9.39 KM |
Nearby Listings
| Address | Price | Type | Score | Distance |
|---|---|---|---|---|
| Badwell Road, Wyverstone, Stowmarket, Suffolk, IP14 | £ 500,000 | BUY | 7 / 10 | 0.00 KM |
| Badwell Road, Wyverstone, Stowmarket, IP14 | £ 500,000 | BUY | 6 / 10 | 0.13 KM |
| The Street, Wyverstone, Stowmarket, Suffolk, IP14 | £ 450,000 | BUY | 7 / 10 | 0.44 KM |
| Wyverstone, Stowmarket | £ 700,000 | BUY | 7 / 10 | 0.63 KM |
| Rectory Road, Wyverstone | £ 325,000 | BUY | 7 / 10 | 0.80 KM |
Nearby Properties
| Address | Price | Distance |
|---|---|---|
| Flint Cottage | £ 465,000 | 0.03 KM |
| Richmond House | £ 465,000 | 0.03 KM |
| Autumn Lodge | £ 242,500 | 0.38 KM |
| Brambles | £ 189,500 | 0.38 KM |
| The Cottage | £ 400,000 | 0.39 KM |