Foxtons says ..
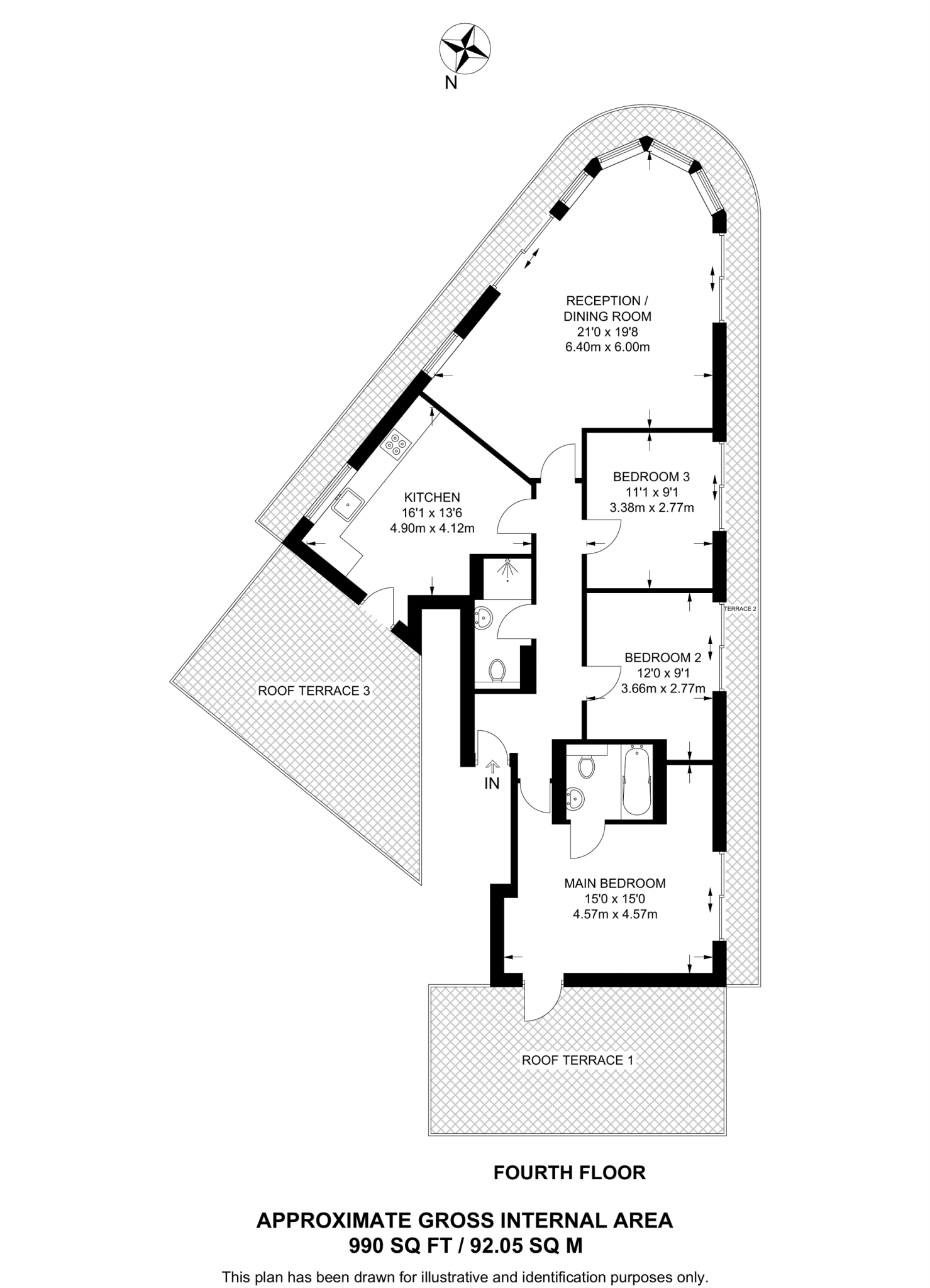
Boasting three fantastic roof terraces providing impressive panoramic views over London, this stunning three bedroom flat is set on the top floor of a modern development and also offers stylish contemporary interiors.
Property Oracle says ..
Therefore, we give this property 6 / 10. *Disclaimer: This is our option and does constitute a recommendation or financial advice. Do your own research. *
- Price
- 4
- Condition
- 8
- Location
- 8
- Land
- 7
- Bedrooms
- 3
- Bathrooms
- 2
The heatmap indicates the level of crime in the area. The color of the heatmap indicates the crime severity and recency.
Metrics Year-on-Year
- Average area value
- 375,000.00 £Decreased by 58.01 %
- Average area rental value
- 2,232.00 £/moDecreased by 0.49 %
- Est rental Yield
- 7.14 %Increased by 137.21 %
- Crime Rate
- 4.00 %Unchanged by 0.00 %
from 893,046.00 £
from 2,243.00 £/mo
from 3.01 %
from 4.00 %
Agent Activity
Foxtons created the listing.
Nearby Schools
| Name | Type | Ofsted | Distance |
|---|---|---|---|
| Brecknock Primary School | Community School | Good | 0.20 KM |
| The Bridge School | Academy Special Converter | Outstanding | 0.26 KM |
| The Bridge Satellite Provision | Free Schools Special | 0.26 KM | |
| Hungerford Children'S Centre | Children's Centre | 0.27 KM | |
| Hungerford School | Academy Sponsor Led | 0.33 KM |
Images
Nearby Streets
| Name | Average Price | Average Sqft | Distance |
|---|---|---|---|
| Camden Mews | £ 1,802,857 | 0 | 0.00 KM |
| Northpoint Square | £ 725,000 | 0 | 0.00 KM |
| Freight Lane | £ 0 | 0 | 0.00 KM |
| Brewery Road | £ 0 | 0 | 0.00 KM |
| Milburn Lane | £ 0 | 0 | 0.00 KM |
Nearby Transport
| Name | NLC | TLC | Distance |
|---|---|---|---|
| Caledonian Road And Barnsbury | 1439 | CIR | 1.19 KM |
| Camden Road | 1440 | CMD | 1.36 KM |
| St Pancras | 1555 | STP | 1.49 KM |
| Kentish Town | 1553 | KTN | 1.56 KM |
| King'S Cross | 6121 | KGX | 1.72 KM |
Nearby Listings
| Address | Price | Type | Score | Distance |
|---|---|---|---|---|
| York Way, Camden, London, N7 | £ 1,000,000 | BUY | 6 / 10 | 0.00 KM |
| Marquis Road, London | £ 565,000 | BUY | Unknown | 0.03 KM |
| York Way, N7 | £ 475,000 | BUY | Unknown | 0.03 KM |
| City Point, 107 York Way, Camden, N7 | £ 300,000 | BUY | Unknown | 0.04 KM |
| City of London Point, 107 York Way, N7 | £ 375,000 | BUY | 6 / 10 | 0.04 KM |
Nearby Properties
| Address | Price | Distance |
|---|---|---|
| 60 Marquis Road | £ 1,600,000 | 0.08 KM |
| 98a Marquis Road | £ 340,000 | 0.08 KM |
| 56b Marquis Road | £ 245,000 | 0.08 KM |
| 30a Marquis Road | £ 805,000 | 0.08 KM |
| 34 Marquis Road | £ 890,000 | 0.08 KM |