Bychoice says ..
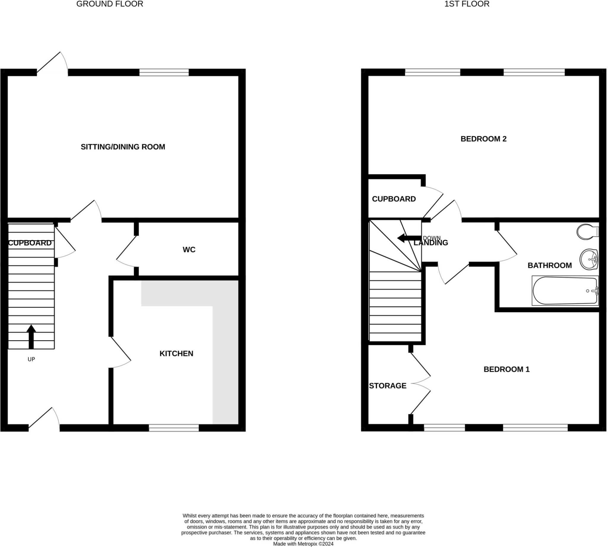
New Build Shared Ownership Plots with Havebury Housing Partnership, Located In Brightwell Lakes, Martlesham, Built by Popular Taylor Wimpey Developers. This property boasts two spacious bedrooms, modern fitted kitchen with spaces for appliances, ground floor cloakroom, allocated parking and carpe...
Property Oracle says ..
This property is a 2 bedroom, 1 bathroom semi-detached house located in Brightwell Lakes, Martlesham, Ipswich. The property is newly built and appears to be in excellent condition. It benefits from a small rear garden and is conveniently located near to transport links and schools. Whilst the average house price in the area is significantly higher, this property is priced competitively for its size and condition. However, the plot size is very small.
Therefore, we give this property 7 / 10. *Disclaimer: This is our option and does constitute a recommendation or financial advice. Do your own research. *
- Price
- 8
- Condition
- 10
- Location
- 7
- Land
- 3
- Bedrooms
- 2
- Bathrooms
- 1
- Sqft (est)
- 730.00
The heatmap indicates the level of crime in the area. The color of the heatmap indicates the crime severity and recency.
Metrics Year-on-Year
- Average area value
- 570,435.00 £Increased by 16.78 %
- Est sale value
- 419,020.00 £Increased by 21.35 %
- Average area rental value
- 1,562.00 £/moIncreased by 10.39 %
- Est letting value
- 730.00 £/moUnchanged by 0.00 %
- Est rental Yield
- 3.29 %Decreased by 5.46 %
- Crime Rate
- 1.00 %Unchanged by 0.00 %
Agent Activity
Bychoice created the listing.
Nearby Schools
| Name | Type | Ofsted | Distance |
|---|---|---|---|
| Clifford Road Primary School & Nursery | Community School | Good | 0.36 KM |
| Rose Hill Primary | Academy Converter | 0.60 KM | |
| St Mary'S Catholic Primary School, Ipswich | Academy Converter | 0.89 KM | |
| Parkside Academy | Academy Alternative Provision Converter | Requires improvement | 1.19 KM |
| St John'S Church Of England Voluntary Aided Primary School, Ipswich | Voluntary Aided School | Good | 1.27 KM |
Images
Nearby Streets
| Name | Average Price | Average Sqft | Distance |
|---|---|---|---|
| Tolworth Road | £ 0 | 0 | 0.00 KM |
| Gladstone Road | £ 190,000 | 0 | 0.00 KM |
| Derby Close | £ 0 | 0 | 0.00 KM |
| The Drift | £ 0 | 0 | 0.00 KM |
| Harrow Close | £ 280,000 | 0 | 0.00 KM |
Nearby Transport
| Name | NLC | TLC | Distance |
|---|---|---|---|
| Derby Road (Ipswich) | 7212 | DBR | 0.59 KM |
| Westerfield | 7226 | WFI | 3.35 KM |
| Ipswich | 7217 | IPS | 3.75 KM |
Nearby Listings
| Address | Price | Type | Score | Distance |
|---|---|---|---|---|
| Brightwell Lakes, Martlesham | £ 126,000 | BUY | 7 / 10 | 0.00 KM |
| Faraday Road, Ipswich | £ 235,000 | BUY | 7 / 10 | 0.04 KM |
| Faraday Road, Ipswich | £ 215,000 | BUY | Unknown | 0.04 KM |
| Faraday Road, Ipswich | £ 245,000 | BUY | 7 / 10 | 0.05 KM |
| Foxhall Road, Ipswich, IP3 | £ 230,000 | BUY | 7 / 10 | 0.07 KM |
Nearby Properties
| Address | Price | Distance |
|---|---|---|
| 135 Foxhall Road | £ 79,995 | 0.08 KM |
| 157 Foxhall Road | £ 182,500 | 0.08 KM |
| 149 Foxhall Road | £ 169,000 | 0.08 KM |
| 147 Foxhall Road | £ 117,000 | 0.08 KM |
| 151 Foxhall Road | £ 200,000 | 0.08 KM |